北京世园凯悦酒店 | BIAD
其他来源:BIAD投稿 2021-07-07
北京世园凯悦酒店由北京世园投资发展有限公司投资建设。项目总建筑面积为7.9 万㎡,坐落于北京世园会2 号门东侧。项目定位为突出园艺特色的生态主题商务度假型酒店,肩负着“2019 北京世界园艺博览会”的重要会时会后的接待保障使命,同时也是“2022年北京冬季奥运会”的签约酒店。
项目于2016年开始方案设计,2017年8月开工,经过近两年的紧张建设,在2019年4月完成各项建设验收手续,并于北京世园会开幕前顺利开业。较之常规酒店的设计建设周期,北京市建筑设计研究院有限公司作为项目的建筑设计和设计总协调方,在建筑设计、设备机电设计、室内精装设计、景观园林设计、幕墙设计、范光照明设计及施工配合等方面和环节协调推进,依托多年以来在酒店设计领域的深耕,充分发挥在项目设计统筹与协调中的优势,并在细节上精雕细琢,深度参与了从方案设计到项目验收的全过程,保障了项目的有效推进和顺利完工。
1 东方智慧,中国情结
北京世园凯悦酒店将中式元素与现代手法巧妙兼柔,相互辉映,给酒店文化注入了禅意东方的新气息,融入东方的沉稳、灵性之美。在整体规划构思设计之初,酒店的功能定位和形象风格便已经明确:作为会议接待和休闲度假多重功能综合体,酒店在建筑设计、室内设计及景观设计中大胆创新,呼应世园主题
酒店建筑在文化符号上注重对传统建筑文化和园艺风情的表达,让体验者立体地感知中国传统文化的传承和自然园林的趣味。在空间规划设计中,建筑群体呈围合院落式轴线对称布局,中央围合园林庭院,配以中式景观亭台楼榭,汲取了中国传统建筑空间的精髓。在外观设计中,将传统建筑语言加以抽象和演化——依据传统建筑比例打造三段式石材墙身、典雅大气的传统缓坡大屋顶、疏密变化且光影斑驳的仿木格栅、富有韵律排列的檩椽造型、镂空雕花且低调奢华的宫灯造型等,其灵感均来源于中国传统建筑的“礼乐”思想,古为今用,传承延续,同时也成为酒店本身的价值所在。
2 雕刻细节,匠心工笔
“上帝存于细节”,细节决定了设计质量。对建筑师而言,每一个设计的环节都应该是严谨的。在酒店的设计和施工配合过程中,建筑师秉承着 “工匠精神”,从建筑每个细节的设计入手,从外观到内部系统,以高完成度的标准严格要求。
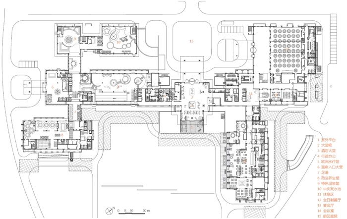
规划布局精心而严谨。由于西侧世园会园区是该项目的视觉焦点,整体布局采用大“U”字形布局,开口朝向西侧世园会,沿地块西侧布置主要的酒店客房,东侧设置世园公寓,地块中央则围合出具有中国古典韵味的中央庭院,使整个规划形态呈现东高西低的形态,在使酒店客房拥有良好的景观的同时,减少了对西侧道路的压迫感,形成空间的自然过渡。
细节雕刻勤于思,敏于行。从墙身分段比例的计算、整体建筑材料颜色的搭配、石材接缝处理、栏杆扶手的设计、格栅疏密的安排、排水节点的推敲及装饰灯具的选用等等,无数用心雕刻的细节构成了最终的建筑成品,也最终成为酒店给人带来舒适享感受的必要条件。
3 感官盛宴,同心世园
作为世园会专属配套接待设施,世园凯悦酒店以其完备、高端的各项功能为客人提供独特的入住体验。酒店主入口垂直开向西侧延康路,形成比较大的礼仪广场,并沿轴线连接大堂,空间延续至中央庭院,突出了酒店地位。多功能宴会厅置于北端,设有宴会厅独立入口,便于会时及会后的多功能使用。客房楼沿延康路、阜康路依次展开,保证50%以上客房拥有世园会景区景观,其余客房均拥有院落园林景观。餐厅、温泉配套、泳池等配套设施围绕庭院错落设置。
纵观整体,从历史职责和未来发展的角度来看,世园酒店作为世园会文化元素的重要组成部分,不仅承担着接待服务功能,更重要的是承载着传承中国传统文化、服务社会和组成城市记忆的重要使命。设计情怀引领创意构思,设计手法雕琢建筑精品,服务态度铸就企业精神。
项目概况
项目名称 | 北京世园凯悦酒店
业 主 | 北京世园投资发展有限公司
建设地点 | 北京世园会2号门东侧
设计单位 | 北京市建筑设计研究院有限公司
方案主创 | 金卫钧,刘志鹏,张伟
建筑专业 | 刘志鹏,张伟,赵晨,王笑竹
结构专业 | 王轶,甄伟,何水涛,慕晨曦
设备专业 | 段钧,周小虹,张志强,李昕
电气专业 | 刘倩,郝晨思,张争,孙晟浩
设计时间 | 2016年
建成时间 | 2019年
图纸版权 | 北京市建筑设计研究院有限公司
摄 影 | 杨超英
.jpg)
.jpg)
.jpg)
.jpg)
.jpg)
.jpg)
.jpg)
.jpg)
.jpg)
发表评论
最新评论
投稿
.jpg)

