海口西海岸金海湾酒店 | BIAD
其他来源:BIAD投稿 2021-03-02
项目类型:公共建筑
项目地点:海南省 海口市
建筑设计:北京市建筑设计研究院有限公司第一建筑设计院
设计团队:杜松 刘志鹏 谭川 赵晨 陈妤 范迪龙
方案完成/交付时间:2019.08
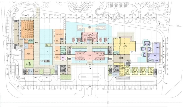
本项目总建筑面积约33500平方米,设计师利用潮位线退线范围,在基地上布置了40000平方米的开放空间和园林水景。其间流水潺潺、步道曲径通幽、林木间鸟语花香,使客人宛若置身于天堂。酒店以现代的简约姿态融合于其依山傍海的美妙自然环境之中。
.jpg)
.jpg)
景观设计作为风格的展示和自然环境的延伸,旨在通过设计的独具匠心,为酒店客人营造最适宜的私密度假胜地,景观根据建筑体量形成了三个不同主题的景观庭院,使客人同时能领略酒店内不同风格景观的完美配搭。
.jpg)
.jpg)
本项目建筑风格的灵感源于海南气候条件下的遮阳元素,设计师将遮阳构件加以分型和组合,将优雅简洁的白色遮阳板,仿木质的装饰板,石材基座等元素融合,以功能性的语言表达了设计师对于当地气候及景观条件的理解,同时也极力展现了光影的相互作用。
.jpg)
.jpg)
设计评述
本方案作为高端休闲度假酒店,在设计上以创造独特的顾客体验为核心原则。通过充分挖掘地域文化的特征、充分利用独特的自然环境资源等设计手段,体现酒店建筑的核心价值。方案从热带建筑的遮阳构件入手,将遮阳构件作为建筑造型,空间,立面的元素,同西海岸的其他酒店进行一定的差异化处理,体现了海南热带气候的滨海建筑特征。整体第一印象具有强烈的地域性和度假性,很好的突出了建筑的自身性质与在地特征。
发表评论
最新评论
投稿
.jpg)

