北京青棠湾公共租赁住房 | 中国建筑标准设计研究院有限公司
其他来源:中国建筑标准设计研究院投稿 2021-03-02
北京实创青棠湾百年住宅公共租赁住房项目秉承可持续建设理念,从系统实施到设计、生产、施工、维护等产业链各个环节均做了开创性探索和技术创新性实践,力求在北京新总体规划和控制性详细规划要求下建设出开放街区、可持续住区、百年住宅示范性项目,成为具有国际水准、国内一流的新型公共租赁住房。项目以国际先进的可持续发展建设模式,在全国公共租赁住房建设上,研发实现了新型建筑支撑体与填充体建筑工业化通用体系,并系统落地了建筑主体装配和建筑内装修装配的集成技术等。对当前我国大力推进装配式建筑,以及在建筑产业化发展背景下保障性住房建筑主体和内装产业化建设的全面实施,具有重要的示范和借鉴作用。
.jpg)
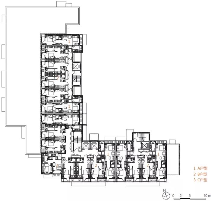
北京实创青棠湾项目位于北京市海淀区西北旺镇永丰产业基地,总用地约11 h㎡,总建筑面积约32万 ㎡,共计25栋住宅楼,容积率为2.0,绿地率为30%,居住套数3 790套。
.jpg)
项目在进行整体规划时,注重提升城市品质,强化城市公共性与开放性,营造更便利、更具活力的城镇住区生活空间。通过建立与城市互动的开放式住区,实现住区与城市的和谐共融,并带动整个区域发展。在交通规划和建设方面围绕方便市民出行来考虑,提升城市环境质量,建设宜居且富有活力的现代化城市住区。同时,项目按照高标准的城市形态规划建设,从设计到设施建设都以提高居民生活品质为核心:沿城市道路依次布置街区广场,作为辐射周边区域重要的公共节点;住区内形成4个开放式街区居住单元,通过纵横两条开放与休闲景观轴,组织多层次、全天候的公共活动空间。
.jpg)
绿色住区
项目以绿色建筑、海绵城市、低能耗建筑和智慧建筑技术打造公共租赁住房的可持续住区。项目涵盖绿色住区七大质量体系,在场地与生态、能源与资源、城市区域、绿色出行、宜居规划、建筑可持续、管理与生活方面,着力于打造与自然和谐共生的、健康宜居的居住生活环境,实现经济效益、社会效益和环境效益的统一。此外项目设置了人脸识别、综合管理平台、智慧停车、社区App和智能垃圾回收装置,实现了社区的智慧管理和运营。
.jpg)
.jpg)
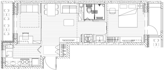
高于传统项目以绿色技术作为单一指标,青棠湾绿色住区积极关注人的需求和居住生活方式的变化,多元化地涵盖人文创新和绿色生活,为住户提供环境优雅、生态平衡和生活便利三效合一的居住区,使住区有机融入城市之中。对于租赁住房来说,租赁者家庭通常都是老人在家带孩子的生活模式,在套型面积有限的情况下,尽可能地打造灵活可变的居住空间,以适应不同的家庭结构和需求;同时为老人和孩子创造更为丰富、有趣的室外公共空间和休闲场地。
.jpg)
.jpg)
.jpg)
可持续住宅
由于公共租赁住房的套型建筑面积较小,基本功能空间欠缺,适应性与居住者的需求相脱节的问题较突出。而传统的设计方法对于部品设备、管线的标准化、集成化考虑较少,无法实现居住品质的优良化。本项目整体解决方案引进并落地国际SI(skeleton and infill)支撑体与填充体分离体系,增强主体结构的耐久性,尽可能取消室内承重墙体,为填充体及套内空间的灵活、可变创造条件,以适应建筑全寿命周期内各阶段所需。主体结构、内装部品和设备管线三者完全分离,通过前期设计阶段对结整体建筑体系的综合考虑,有效提高后期施工效率,合理控制建设成本,保证施工质量与内装模数的对接,并方便今后检修、更新及增加新设备。作为公共租赁住房,为后期便捷更换装修部品,甚至政策性住房之间的调整提供了便利和可能,也为租赁者创造了灵活可变、适应性强的居住空间。
.jpg)
.jpg)
.jpg)
项目名称 | 青棠湾公共租赁住房
业 主 | 北京实创高科技发展有限责任公司
建设地点 | 北京市海淀区西北旺永丰产业基地
项目统筹 | 中国房地产业协会,中国建设科技集团股份有限公司
设计单位 | 中国建筑标准设计研究院有限公司
用地面积 | 10.9 h㎡
建筑面积 | 323 376 ㎡
结构形式 | 装配式剪力墙
主要材料 | 钢筋混凝土
建筑层数 | 地上12层,地下2层
设计总负责 | 刘东卫
建筑专业 | 郝学,俞羿,刘志伟,冯凡,林硕,温静,卓石峰
结构专业 | 许文杰,蒋安维,卜凡杰,蒋伟,刘国友,王燕,彭玉斌,许晶
给排水专业 | 王岩,李彬,杨帆
暖通专业 | 卫军锋,董巧慧,王平,井洁
电气专业 | 黄凌洁,何晗,李子安
室内设计 | 五感纳得(上海)建筑设计有限公司
建设施工 | 北京市第三建筑工程有限公司,中国建筑第七工程局有限公司
内装饰工 | 北京国标建筑科技有限责任公司,北京宏美特艺建筑装饰工程有限公司,苏州科逸住宅设备股份有限公司
部品集成 | 苏州科逸住宅设备股份有限公司,长沙远大住宅工业集团股份有限公司,广东松下环境系统有限公司,北京建工茵莱玻璃钢制品有限公司,仁创生态环保科技股份有限公司,大连金桥木业有限公司
设计时间 | 2014年
建成时间 | 2019年
摄 影 | 张广源
发表评论
最新评论
投稿



