开化县1101工程及城市档案馆
来源:网友MissBella投稿 2019-08-14
.jpg)
东南向航拍© 周轶凡
该项目是受开化县城市建设发展有限公司委托,在景区入口处设计一处城市档案馆和人防指挥中心及住建局三大功能要求的综合办公楼。
项目地理位置优越,南侧现状为多层排屋,北侧为植被丰富的低矮山体,东侧山谷腹地幽静而深远,西侧距离钱江源头芹江江畔仅几步之遥,登上山头便可远观江水。
在如同陶渊明的《桃花源记》中记载一般的青山绿水之间建造一座兼具开放的参观功能和私密的隐蔽工程的较大体量的多功能多流线的多层建筑,并充分尊重原有地形地貌,是这一项目的挑战之处。
.jpg)
构思草图
设计首先将人流密集的城市档案馆置于底层与半地下室;其次将食堂置于二层靠近西侧道路处,将人防指挥中心布置在二层靠近山谷腹地处,利用折板将下两层体量隐于山体之中;最后,将住建局办公置于折板之上,通过悬挑等手法使建筑有一种于山体之上的视觉效果,最大程度利用景观资源。
建筑主要的办公部分功能采用一个漂浮在折板平台上三层高的长方体盒子,纯粹而简洁的形体顺应南侧折板平台走势,并与北侧山体等高线平行布置;同时,盒子在东侧悬挑于三层以外约12米,使盒子与下部折板平台形成了在错动中取得平衡的一种形体组合。
.jpg)
形体生成
基地内有一条小路连通北侧山体做为人们日常上下山的通道,设计为了充分尊重现状场地和诸多外围的景观资源,提出了不同标高平台的解决方案。即将人流量较为密集的城市档案馆分布在底部一层,通过坡道与楼梯等连接不同标高的平台,犹如北侧山体等高线的延续,使下部建筑与山体自然融为一体。这不仅恢复了原有上下山通道,同时多标高平台又成为当地市民和使用者驻足观赏周边风景的理想场所。
.jpg)
西南向航拍 ©周轶凡
.jpg)
下山通道通过楼梯连接到各层平台 ©赵强
.jpg)
一层平台处建筑形体关系 ©赵强
.jpg)
二层平台处建筑与山体的关系 ©赵强
东西端的框景窗洞是典型又非常有效地取景手段,上部三层盒子灰白色的仿石材拉毛多彩真石漆墙壁中嵌着极细的深灰色窗框,透明度极好的玻璃窗户如同取景框一般,把山谷入口最美的部分作为一副永不褪色的画卷,嵌入了建筑之中。
至此之后,冬去春来,云卷云舒,草木凋零又葱葱。人们身处稳定舒适的建筑物内部,却又无距离感地享受外部的自然美景,形成了一种建筑内外的空间连续性。
.jpg)
东南侧建筑与山体的关系 ©赵强
.jpg)
西侧望向建筑与东侧山体的高低错落关系 ©赵强
.jpg)
悬挑 ©赵强
.jpg)
依山就势 ©赵强
建筑采用黑白灰色系以体现开化山水城市及中国山水画卷中的具有人文意境的建筑色调,待山中云雾缭绕时,建筑的基座消隐在山中,上部灰白色的盒子犹如漂浮在山中,同时站在不同的平台上观远处山景和江景,形成了一幅建筑与周边山体和天空融为一体的感觉。
极简洁的建筑形体线条融合着虚与实,光与影的变换,设计既成功地解决了包括城市档案馆、人防指挥中心、办公等诸多功能空间,又和谐地呼应着周围的山势,体现了人与自然和谐共处的建筑设计思想。
.jpg)
黑白灰色系 ©赵强
.jpg)
力量 ©赵强
.jpg)
连接 ©赵强
项目使用至今已经两年有余,每次回到基地现场置身在建筑的每个平台和外围的山体小路上,越发的能感受到建筑与环境已渐渐的融为了一体,人们越来越喜欢在这里工作和交流,这也许是我们最初设计理念最有意义的价值体现。
.jpg)
仰望 ©樊明明
.jpg)
建筑主入口水平舒展的折板基座 ©赵强
.jpg)
模型照片
.jpg)
一层平面图
.jpg)
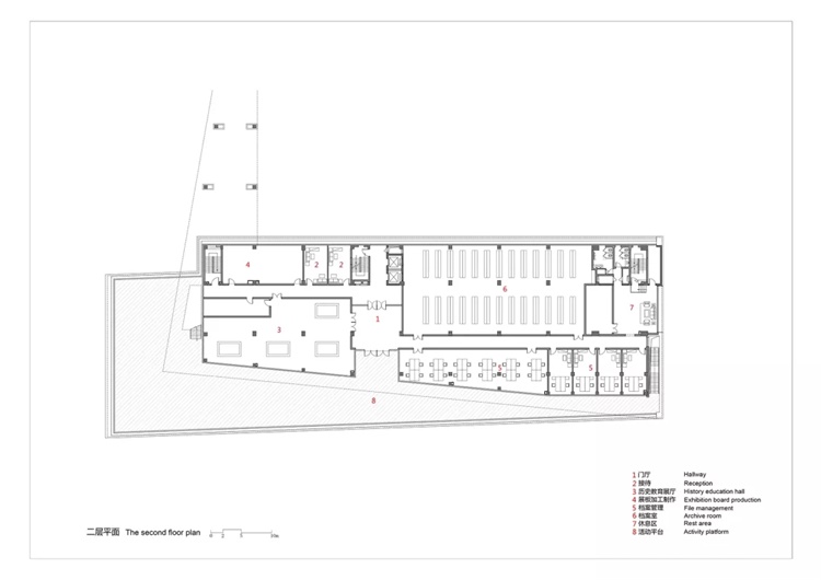
二层平面图
.jpg)
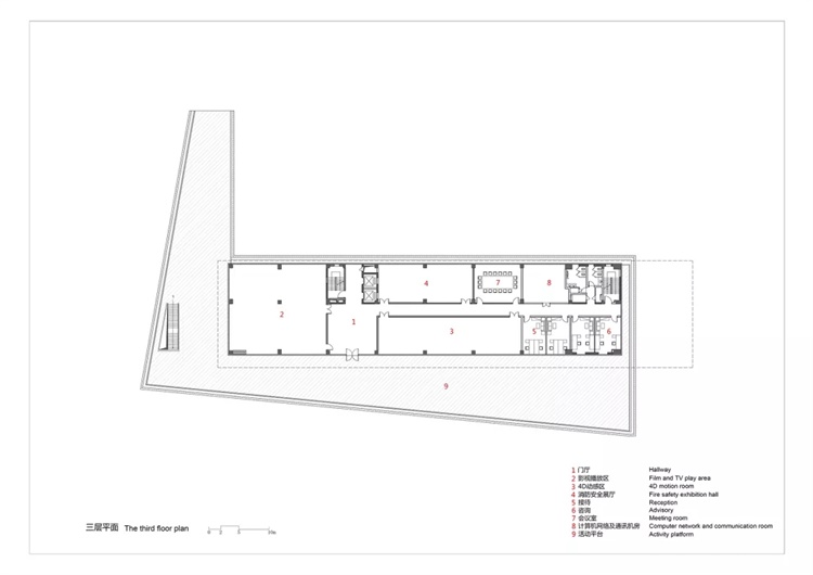
三层平面图
.jpg)
四、五层平面图
.jpg)
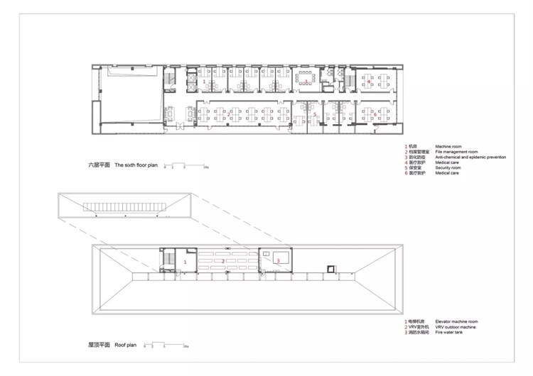
六层及屋顶平面图
.jpg)
立面图
.jpg)
立面、剖面
.jpg)
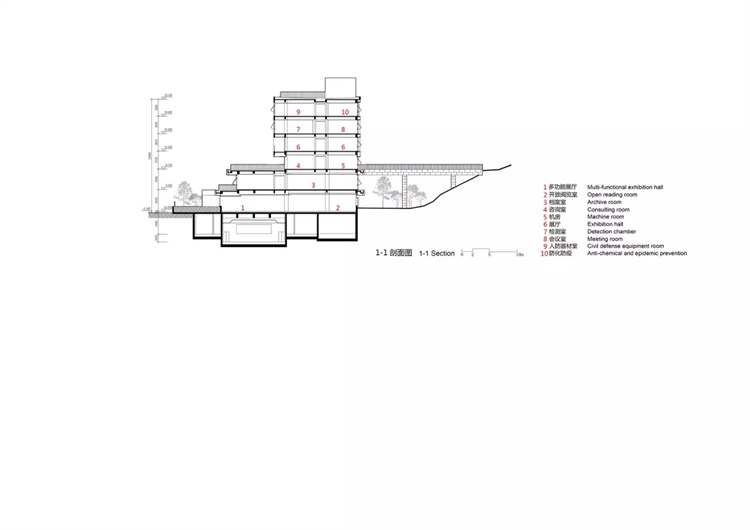
剖面图
项目名称:开化县1101工程及城市档案馆
设计单位:浙江大学建筑设计研究院有限公司
公司网站:http://www.zuadr.com/
设计师:范须壮、朱恺、施明化
结构设计:沈金、金振奋、丁磊
机电设计:陈周杰、杨文征、邵春廷、江兵
幕墙设计:白启安
项目业主:开化县人民防空办公室
项目地点:浙江省衢州市开化县凤凰中路
项目类型:档案馆、办公
用地面积:7118平方米
项目面积:12206平方米
主要材料:花岗岩、多彩真石漆、玻璃、铝材
摄影师:赵强、周轶凡、樊明明
发表评论
最新评论
投稿