灞河生态企业总部
来源:匿名网友投稿 转载自:博德西奥(BDCL) 2015-01-08
开发商:西安新兴
用地面积:5,650 平方米
建筑面积:25,000 平方米
建成时间:2013 年

模型图(一)
项目位置:西安市我们一直在探索,试图寻找到一条通往绿色、生态而非仅仅依赖高新科技的建筑设计之路。被动式设计(Passive Design:用被动的手法节能或运用天然能源)一直以来成为我们重点运用的方式。本案的设计即是一次有益的尝试。

模型图(二)
妙笔生花——S型建筑布局
节约能源,让建筑获得充分的日照至关重要。三条办公功能的体块组合成S型,包容在呈三角形的屋顶平面之下,并获得充分的日照。另外,S型建筑体块,形成两大庭院空间,更利于创造良好的办公环境和绿色生态设计,并形成丰富的立面形态。

模型图(三)
融合共生——景观与建筑
开放的办公空间打破了传统的分级办公环境,并有利于生态节能;每一个开放办公空间都有共享空间,如屋顶花园,庭院,中庭等,这些空间为不同部门员工,及不同级别员工提供了良好的交流环境。

模型图(四)
阳光空间——自然光线的互动
办公平面采用较小进深,可以给室内办公空间带来更多的自然光线及室外景观,促进了人与自然的交流。

平面图
雨水收集——暴雨收集池
雨水可通过屋面、庭院和屋顶花园收集到地面的圆形水池中,经过净化处理后可循环利用,也能持续对小环境增加湿度平衡温度,同时还起到了很好的景观效果。

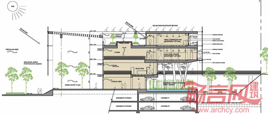
立面图
主次分明——配比主动式设计
除以上被动式节能之外,我们还适当应用了一些主动式的环保技术,如三角形屋顶结合太阳能集热板;利用主导风向的风力涡轮发电机;高效节能的外窗与通风系统;节约一体化的管线夹层楼板体系等。
发表评论
最新评论
投稿