江西建院图文信息综合楼 | 华工设计院陶郅工作室
来源:网友咖啡牛奶投稿 2022-07-05
设计单位 华南理工大学建筑设计研究院有限公司 陶郅工作室
项目位置 江西南昌
建成时间 2020年6月
建筑面积 31266平方米
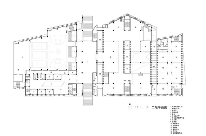
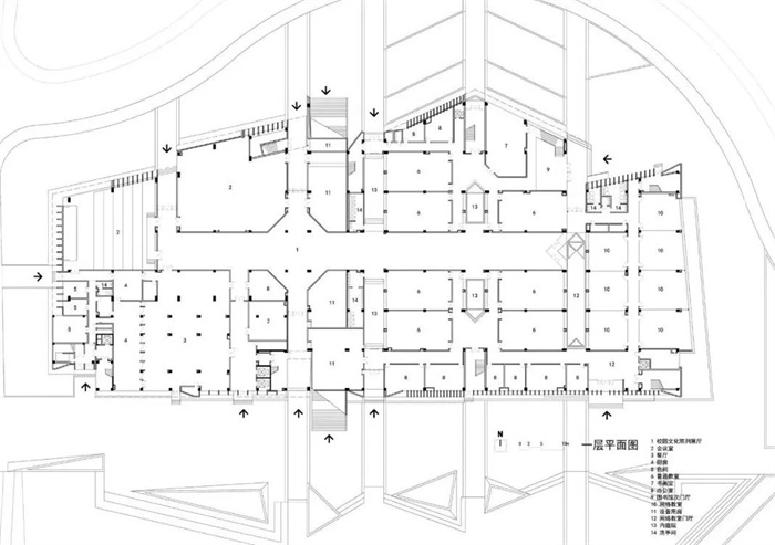
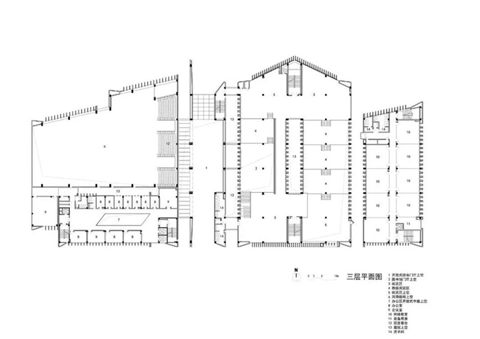
江西建设职业技术学院图书信息综合楼总建筑面积31266平方米,是包含图书馆、行政楼、风雨操场、网络教室、餐厅等多功能的校园综合体。基地位于校园核心区域,处在校园中心景观轴线之上,南侧为校园中心景观湖,北侧为山体公园。
用地十分紧张且不规则,建筑则需容纳图书馆、办公、风雨操场等多种功能,人员流线复杂,这是本项目最大的挑战。如何弱化大体量的建筑对于南侧中心湖与北侧山体公园的空间阻断和隔离,来保持校园南北景观的延续和视线的贯通,也是亟需解决的问题。
设计借鉴传统“冷巷”的智慧,引入五个南北向的夹缝天井,将建筑体量化整为零,划分为六个条状建筑,不同的条块对应不同的功能。纵向院落也将南北向景观和视线联系起来,使建筑成为南北校园空间对话的重要媒介。同时不同功能块通过相互之间的天井院落促进自然通风采光,摒弃空调,实现低造价下的被动式环保理念。
为解决图书馆、行政楼、风雨球场三大功能块的交通和动静分区问题,建筑师在三者之间设置了一个中心共享交通体,通过这个开放式综合门厅进行分流来解决复杂流线的问题,同时将“动”的风雨球场和“静”的图书馆严格分隔开,避免相互之间的噪音干扰。
纵向条块在南侧保持齐平,北侧平面根据路型进行斜切和转折的变化,屋顶则通过高低起伏的折顶将几大功能体块组合成一个整体,南北立面再覆以间距、进深不等的混凝土竖向百叶,强调建筑的整体性和标志性。
完整项目信息
项目名称:江西建设职业技术学院图文信息综合楼
项目类型:建筑
项目地点:江西省南昌市小蓝经济开发区
设计单位:华南理工大学建筑设计研究院有限公司 陶郅工作室
主创建筑师:陶郅、郭钦恩、陈子坚
设计团队完整名单
建筑:练文誉、陈弢、何岸咏
结构:赖洪涛、何智威、林斯嘉、熊勇
电气:黄晓峰、陈涛
给排水:肖静芳、颜正慧、余小龙
暖通:陈祖铭、谌杰、黄志详
景观:艾扬、黄承杰
室内:谌珂、艾扬、黄承杰、练文誉
业主:江西建设职业技术学院
造价:约1.2亿
设计时间:2014年1月—2018年12月
建设时间:2015年6月—2020年6月
用地面积:16517平方米
建筑面积:31266平方米
施工:江西省衡三建筑工程有限责任公司
摄影:榫卯建筑摄影 SFAP
.jpg)
.jpg)
.jpg)
.jpg)
.jpg)
.jpg)
.jpg)
.jpg)
.jpg)
.jpg)
.jpg)
.jpg)
.jpg)
.jpg)
.jpg)

发表评论
最新评论
投稿