榆林市第三医院 | 中联西北工程设计研究院有限公司
来源 2022-04-26
本次设计方案榆林第三医院服务范围覆盖全市362.46万常驻人口,是榆林市目前唯一一个规划中的市专科传染病医院。本项目经市政府专题会议研究,决定按照“平战结合”原则和三级甲等传染专科医院规模标准立项建设市第三医院(市传染病医院),新院区拟建传染病300床,综合院区200床。
.jpg)
.jpg)
.jpg)
规划布局
项目包括传染病院区及综合医院区两部分,共计12个单体及一个地下车库。传染病院与综合医院入口分开设置,各自洁污分流、医患分流,相对独立。
.jpg)
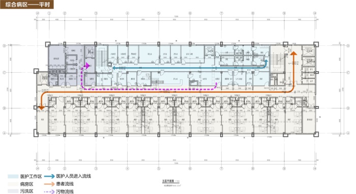
平时传染病院区与普通综合园区以中心绿化广场相隔,A楼为普通传染病门诊、医技、住院专科楼,E、F为综合医院门诊及住院部,D楼为共用医技楼,医技楼内的传染病患与普通病患以物理隔离完全分开。
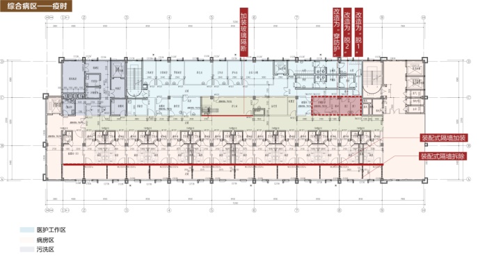
疫情时期前区的门诊楼、医技楼整体关闭,南侧与东侧入口关闭,停止收治普通患者以及普通传染病患者,且分时段管理污物运送流线;B、C、F楼及发热门诊在前期均已新冠收治定点医院的要求预留土建及通风设备条件,在疫情爆发时可依次进行快速转换。
在传染病住院楼内部,平时医生查房后原路返回进行一脱、二脱回到清洁区。疫情时期,方案将原本的污物暂存与脱一置换,医生采取“不走回头路”的方式进行查房工作。
F楼住院楼在初期建设时均按照呼吸类传染病住院楼要求预留风井及设备用房,当疫情来临时,在护士站加装玻璃隔断,原本的库房改造为穿脱防护的缓冲间,病房区域取消一张病床,将原本南北向的隔墙拆除留出病人通道,在南侧加装装配式隔墙,形成标准传染病区“三区两通道”组织形式。
立面设计
榆林是1986年国务院批复的第二批国家历史文化名城,拥有着悠久的历史和灿烂的文化。方案采用中轴对称的形制,立面体块上主次分明,整体庄重大气,方案选择土黄色真石漆为基底,粗糙的肌理更能体现出医院古朴素雅的气质。
项目信息
项目名称 | 榆林市第三医院项目方案设计
业 主 | 榆林市第三医院
建设地点 | 陕西省榆林市
用地面积 | 80 000㎡
建筑面积 | 77 752.12㎡
设计单位 | 中联西北工程设计研究院有限公司医疗与康养建筑设计研究院
床位数 | 300床(传染医院)、200床(综合医院)
发表评论
最新评论
投稿