上海临港新城限价房 | 高目建筑设计
其他来源:高目建筑设计投稿 2020-05-21
.jpg)
设计单位 / 上海高目建筑设计咨询有限公司
建筑师 / 张佳晶
地点 / 上海浦东
设计/ 2015-2018年/ 竣工/ 2020年
业主 / 上海海港新城房地产有限公司
代建 / 上海万科房地产有限公司
设计团队
徐文斌、易博文、张启成、林扬
合作设计 / 上海天华建筑设计公司
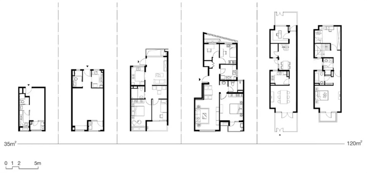
基地面积 8.93 hm²
建筑面积 26.06 万m²(含地下室)
住宅建筑面积14.04万m²
结构形式 混凝土框架剪力墙结构
摄影 清筑影像
.jpg)
.jpg)
.jpg)
.jpg)
人群
论语云:“里仁为美”。“人”是住区第一要义,“仁”则是营造的态度。按照传统的房地产开发及设计模式,人际的、人与街道的、人与城市的关系,被单一化的价值驱使营造的住区统一范式所限制。而本案这种营造多样化、社群化、私密性与公共性合理并存的、多元化价值导向的住区,是当下上海乃至中国最重要的城市特效药。住区为人群服务,而非只为个体服务,而本案的服务人群也比较明确,即在本地工作并享受政府双限房待遇的临港企业固有工作社群,规划中的每一个组团都精确地对应于一类人群。
.jpg)
.jpg)
.jpg)
.jpg)
.jpg)
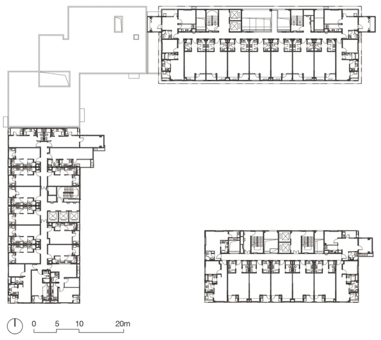
形态
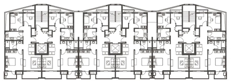
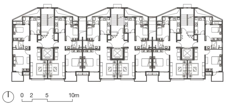
如果改一下《老子》的名言为“围宅以为庭院,当其无,有庭院之用”,则可以阐述围合式住宅对于居住的意义。虽然国人自古便崇尚苑囿之乐,但行列式是近几十年来中国住宅的一尊教条,并几乎成为唯一。这是基于居住个体本身以及房地产利益最大化的结果,是一种较为简单低级的算法。而都市的利益计算以及群体反向对个体利益的促进是一种复杂参数,将一些没有必要的以及服务于少数人的个体利益,让渡于其他的更重要的群体利益,就可以导出一些别的形态,诸如围合住宅、塔式住宅等非单元板式的形态。这在全世界屡见不鲜,而在中国这个边界明显的地理区域出现了唯一性,在全球化生态里是不正常的。
.jpg)
.jpg)
.jpg)
.jpg)
.jpg)
.jpg)
方法
传统行列式住宅的外因是基于房地产利益最大化,内因则是规范中对于日照和朝向的严苛规定。而仅就规范的内因来讲,建筑师并没有真正挖掘其中的设计潜力。在本案的围合住宅和塔式住宅中,摒弃了传统住宅日照先行的先入为主,先通过容积率参数和控规参数进行住区建筑整体营造后,再充分利用日照的精确计算进一步挖掘建筑局部,从而产生了前所未有的住宅形态。这在手工计算日照的时代是不可想象的,在不假思索直接排排座的习惯设计中也无法触及。所以,未来的住宅设计乃至其他类建筑设计,从整体到局部、算法的深层挖掘似乎可以导出很多设计的“新手”,从而改变建筑师们僵化的思维,打破桎梏。
.jpg)
.jpg)
.jpg)
.jpg)
价值
这个项目提供了一种专业先导、挖掘规范、城市营造的范例,而且也在市场定位与专业诉求的碰撞中跟业主港城及代建万科做了妥协。设计过程是一种良性互动,为住区设计提供一个类型学的小小贡献。从实施结果来看本案并不算完美,而后面张峰的理论文章中也提出了集合住宅在中国建筑创作领域的“作品荒漠”现象,所以,每一个想改良的微小努力都弥足珍贵,尤其是这种规模庞大的政府保障住宅。项目的实施可以让建筑师、开发商、政府及居民有以此为鉴的评价载体,力争能够打破住宅设计的禁区,消除不良的设计习惯,并可以延伸促进规范的科学化,也为学界的进步抛砖引玉。
.jpg)
.jpg)
.jpg)
.jpg)
.jpg)
.jpg)
发表评论
最新评论
投稿