泰康同济(武汉)医院 | HKS
其他来源:HKS投稿 2021-05-13
地点:中国,武汉
客户:泰康健康产业投资控股有限公司
总建筑面积:271,011平方米
建筑层数:地上17层,地下2层
总住院床位数:1,328张
服务范围:总体规划、空间任务书、建筑设计、医疗流程策划、室内设计
01 项目背景
2020年2月,新冠肺炎疫情暴发时,泰康同济(武汉)医院刚刚竣工,正在筹备开业。为缓解武汉救治床位紧缺的状况,泰康同济(武汉)医院主动请缨,提前开业,投入抗疫,短短一周内就完成了改造,使医院符合传染病医院规范标准,为武汉的新冠肺炎患者提供床位1060张。解放军医疗队进驻支援,军地民三方协作,累计收治确诊患者2060人。同时,参战全体医护人员实现“零感染”,胜利完成新冠肺炎患者收治任务。
泰康同济(武汉)医院是泰康集团开发新建的第一家医院。本项目落座于武汉市,服务地区、辐射全国、面向全球。医院将建设成为以“多层次医疗服务”为主体的综合多样化服务型院区,拟包含为大众服务的综合医疗区,为高端人群服务的国际医疗区,教育培训区,商业配套区等功能设施。泰康同济(武汉)医院是泰康医险结合大健康体系中关键的一步。医院将采用“综合医院+专科中心集群”的模式,建设为达到三级综合医院标准的充满人性光辉的新型医疗机构。
.jpg)
本项目位于武汉市汉阳区四新北路与连通港路的交汇处。规划用地性质为医院用地,规划净用地面积为90089平方米。HKS在项目总体规划、方案设计、室内设计、施工图审查、施工配合过程中提供了全方位的深度服务,包括方案设计阶段水电暖通等全工种的配合;以及在施工阶段中,设计师赴现场负责解决现场施工中所涉及到的设计相关问题。
.jpg)
02 设计理念
本案设计聚焦于武汉市的地理文脉,城市特色与重点景观元素。设计灵感来自于武汉最富盛名的地标—武汉长江大桥(一桥)。武汉长江大桥(一桥)不仅是城市形象的名片,也是城市文化传统的积淀。毛泽东主席曾在横渡长江时,看到江中初现轮廓的长江大桥,欣然写下“风樯动,龟蛇静,起宏图。一桥飞架南北,天堑变通途”的名句。
.jpg)
不同体量之间,塔楼与裙房之间以及建筑塔楼之间,均用“桥”连接在一起,并且通过形状和材料的动势平衡来形成一个三度空间的立体几何派空间造型。桥梁的结构构件与悬挑等力学元素应用在建筑造型中展示出桥梁建构的艺术之美,科技之美,同时暗喻着历史与当代,现在与未来的沟通与交流。
.jpg)
开放医院、服务社区:本项目对东侧城市河道和南侧公共绿地进行了景观优化设计,使之成为患者康复场地和市民活动空间。周边社区的群众可以无障碍的进入医院下沉庭院并联通至沿河景观带。公共区域内设置商店、餐厅、广场等公共服务设施。本项目的建立不仅为周边民众提供医疗服务,同时为提高社区生活品质,打造社区文化做出贡献。
03 建筑设计
本案在平面布局上采用集中和分散相结合的方式,以医技为核心,一条中央医疗街既连接日间各个功能空间,又便于夜间独立运营管理。住院楼位于医技楼上部,通过内部竖向交通核及内部通道,和医技各个部门紧密连接。门诊区位于地块南侧,以连廊和医技相连接,又以下沉广场和医技相分割,巨大的室外步行空间是给门诊医技人流提供了天然的休息场所,同时给底层商业提供商机,更加增强了周边社区和医院互动的可能。
立面设计的创作灵感来自叠加泰康精神和武汉多水的双重特征,运用生命和保护的双重要素,泰康以保险公司提供保障的理念,打造其自身特有的医疗服务方式。我们通过一定的设计手法,将过去、现在和未来在同一建筑中深刻的表达。由建筑体量的“实”与建筑围合的“虚”形成的图底关系,来强调该设计理念。这个协同作用的双重性编织在一起,共同创建了泰康同济(武汉)医院。
.jpg)
为了尽可能地形成朝南的景观视角,获取更多获取直接日照的病房,以及便于明确分期,整体平面布局呈风车形,由内核向外扩散。门诊面向内广场,便于广大公众识别,疏散与就医;从主要交通流线看去,急诊科及其抵达广场易于识别,便于到达。妇幼中心(一期住院楼)临河而建,这样的布局有利于月子中心面向景观优雅的疗愈区。VIP住院塔楼(一期住院楼)可俯瞰门诊大楼及其内庭院,二期的住院塔楼也因独特的平面布局可获得良好的河景视角。
.jpg)
本项目分区明确,妇幼中心、康复中心、肿瘤中心等不同中心内部流线紧密,门诊、治疗区与住院区上下层设置,缩短病人就医流线,减少不同病重之间的交叉感染。每一个诊区都设置三级候诊体系,引入自然采光和通风,建立健康舒适医疗环境,细致推敲VIP病房、康复治疗的特殊要求,满足无障碍等人性化要求。门诊和住院患者之间、不同中心的病人之间、VIP和普通患者之间流线相对隔离,尊重病人隐私。病房设置以单人间、双人间为主,减少病人之间的相互打扰。每间病房均有良好的景观视野。每个护理单元超过2000平米,设置了充足的休息、活动空间,分别设置病人、探视、医护、洁污、污物电梯,流线明确,交通高效。本案按照国家发布的节能标准进行设计。利用屋顶和下沉空间做绿化花园,美化环境,有利于患者的修养及康复,建立包括护理单元内部活动空间、空中屋顶花园、下沉广场、沿河景观带的立体康复体系。
立面实体材质使用浅黄色石材,通过规整、简洁的石材分割方式突显材料品质,形成大气、简洁的建筑形象。
04 功能布局
地下二层为汽车库、设备机房、医疗垃圾间、太平间,汽车库:地下一层布置汽车库、自行车库、商业、库房、设备机房。另外在地下一层西侧设置放疗模拟区,放疗区为全院共享,在地下一层通过通道或电梯等与地上核医学、门诊楼及各病房楼连通。设置大小不等的下沉广场,使放疗区及其它功能房间的候诊、医务人员能享受自然采光与通风,同时保留了可靠的放疗设备吊装路径。在门诊楼和A楼之间的大的下沉广场布置了商业、餐饮等满足陪护家属、探视人员、医务人员的购物、就餐问题,巨大的室外空间也给院内人员提供了天然的休息场所,并兼作消防扑救场地。
.jpg)
放疗科照片
一层平面设置门诊、感染门诊、急诊、影像中心、癌症中心、儿科门急诊、体检中心、康复中心、高压氧等。
.jpg)
1层平面图
.jpg)
门厅照片
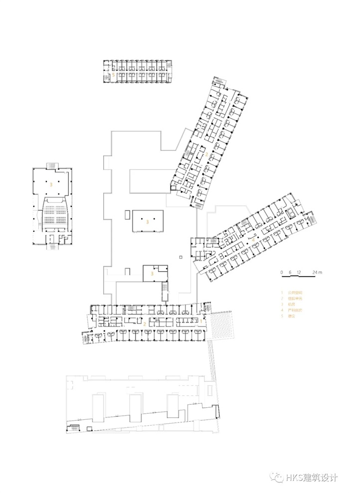
二层平面设置门诊、功能检查、检验中心、内镜中心、中央供应消毒中心、血透中心、妇科门诊、产科门诊、体检等。
.jpg)
2层平面图
.jpg)
产科门诊照片
三层平面设置门诊、ICU、住院手术部和日间手术部、血库、产房、生殖中心。
.jpg)
3层平面图
.jpg)
手术室照片
四层平面设置机房空间、病理科、药房、门诊、病案室、C楼的病房、D楼四层为报告厅
.jpg)
4层平面图
.jpg)
标准门诊
五层-十七层为病房层平面(其中A楼14层为会议室;B楼13层为IT机房、空调机房等)
.jpg)
5层平面图
.jpg)
单人病房
设计负责人:Alex Wang(王翔)
项目经理:Dan Luhrs
设计团队成员:Preston Bennett, 徐林昊,Richard Gomez,叶庆亚,宋海珍、Younghui Han, Ana Pinto-Alexander, 林佳佳,李骥
摄影 :BLACKSTATION
发表评论
最新评论
投稿
.jpg)