陕西佳县枣园小学改造 | 原本营造
其他来源:原本营造投稿 2020-03-06
.jpg)
枣园小学改造后 摄影:张思露
在近年乡村青年外出务工及撤点并校的大势下,村小学关闭空置成为普遍现象,位于偏远的陕北佳县古枣园的泥河沟村小学亦未幸免。作为村里最大的公共建筑,这座嵌入窑洞聚落、造型特殊的大白楼在低技低造价的限制中该如何改造与利用?在此,原本营造试图避开常规的风格统一,引入社会学观念,在集体记忆的延续与新功能空间的植入中,营造其与村落共生的新方式。
.jpg)
远望枣园小学 摄影:杨秉鑫
差异与记忆
由佳县城往北,沿新修的沿黄公路在陡峻壮阔的秦晋大峡谷间驱车十余公里,一片断崖下方枣林郁郁葱葱,山地窑洞聚落隐现于后,犹如绝壁环抱中的翡翠。再往里到达村委会大院,一幢三层框架结构大白楼横立眼前,红砖抹水泥,正面贴瓷砖,蓝色女儿墙,顶立四个金色大字:“开章小学”。这座典型的城市小学建筑在窑洞聚落的尺度与色彩里算得上异物,硬生生嵌入这片依山而建的传统聚落中,与山顶现存的十一孔窑老小学形成鲜明的对比。
.jpg)
入口改造前 摄影:候玉峰
.jpg)
小学改造前 摄影:贾玥
从常规的保护规划角度来看,此楼通常被定性为风貌冲突,必须拆除或彻底改造,使之协调统一。但在与村里长期进行村史调研的农大社会学系孙庆忠教授和村民的沟通中,得知此楼对于村里的重要性,她饱含了数十年来村民们兴办小学的巨大努力与集体记忆:
2000年以前,泥河沟这个佳县最偏远的村落,一直保存着完整的山地箍窑聚落群。在村民们的记忆中,不论是建国前的私塾学堂,或是五十年代租用的四孔窑办学,到六十年代新建的六孔窑和七十年代山顶的十一孔窑,均属传统窑洞并用作教学。而窑洞空间狭小,坡陡石滑,村民们一直想盖一座像外面一样的“真正”的小学。
经过多年的努力,这座村民们期盼已久的“希望小学”在2003年终于建成并投入使用,成为村里最大最现代的建筑,也是村子在建筑类型上与现代城市的首次触碰。为纪念武开章老人及其后人的贡献,取名“开章小学”。小学建成后被定位为中心校,周围村子里的小孩儿都到这上学,多时近200人,那是村里教育最兴盛的时候。然而,在年青村民外出务工和撤点并校的大环境下,学生数量逐年减少,直到2012年最后一个学生也离开。
.jpg)
分析图 绘制:孔祥麟
开章小学关闭后被用于村委办公、仓库、临时住宿,楼前操场则用于村民集会议事、秧歌庆典、红白喜事等,三年有余。小学建造碑记、旗杆、松树、黑板依在。愈是了解这段历史,愈发觉得小学与周边窑洞的形式差异在弱化,消融其中的是村落延续的集体记忆与新功能空间植入的未来。
.jpg)
小学入口 - 改造前
.jpg)
小学入口 - 改造后
延续与纳新
小学是村里除了庙宇、戏台以外仅有的集体产权建筑,改造后在沿用作村里的办公、活动空间之外,其使用对象也将包含进入村子的志愿者、画家、游客等城市人群,多样化的功能需求与植入如同一个“乡村综合体”,在延续村集体原使用功能的基础上增强其开放性与可持续运营能力。通过三层空间及屋顶平台的垂直差异性组织,形成由公共活动空间到办公、住宿、观景的纵向分层。
.jpg)
分析图 绘制:孔祥麟
.jpg)
分析图 绘制:唐勇
功能所对应的空间改造策略以小学特有的外廊式框架承重墙结构为基础,利用原教室与办公两种面宽尺度(5.1米、3.5米)的差别,植入枣园餐厅、老年人活动中心、公共卫生间、大通铺、标准间等新功能空间。以小学公共外廊空间为枢纽,在楼层上下扩展、延伸。通过深、浅空间的再造,与日常行为、景观视野的连结与强化,触发新空间的诞生。
.jpg)
改造前后对比图 绘制:杨秉鑫
.jpg)
开章小学空间分析 绘制:杨秉鑫
一层楼前院子是村里主要的集体活动空间,由一堵刷成粉红的砖墙围合,每次开会或举办集体活动,村民们都需要搬来很多凳子,或者站立着围聚在一起。针对这一现象需求,改造倚着原来的院落围墙,向内扩展成石阶坐台,尽端设置伸入建筑内部的公共卫生间,并在石阶退台中预留出错落的树池,希望在方便村民活动的同时,增加坐望的休闲体验。
.jpg)
院落改造前
.jpg)
院落改造后
.jpg)
.jpg)
.jpg)
院落石阶使用:秧歌、晾晒
同时,石墙从建筑外廊扩展出来,包裹住小学的旗杆、松树,形成门前浅院,“开章小学”几个大字顺势从楼顶移下,镶入庭园石墙中,原来的小学纪念碑记也从角落里搬出来,嵌入楼梯入口石墙内。在一层院落的石头空间中保存着小学的记忆片段。
.jpg)
公厕石墙 摄影:唐勇
.jpg)
小学碑记 摄影:唐勇
由于经费有限,二层保留原村委办公空间,未做过多室内改造,改造主要集中在公共外廊与三层接待中心。
原小学外廊狭长单调,改造利用窗墙厚度与柱间宽度,置入长凳、倚台或茶室凹间、洗手池等家具空间,并压低走廊高度与外廊视野,让其更贴近人体尺度。通过浅空间的再造,为外来客人提供更丰富的交流和休闲空间。
.jpg)
走廊改造前
.jpg)
走廊改造后 摄影:杨秉鑫
.jpg)
凹间茶室,枣园客栈女主人美玲 摄影:林艺苹
.jpg)
凹间茶室 摄影:杨秉鑫
外廊内侧新植入的枣园客栈依据原教室与办公室大小空间的差别,分别设置了大通铺与标准间,在原本较高的空间内运用当地特色的柳编枣框工艺制成吊顶。大通铺可接待画家、学生等集体游客,延续集体生活的记忆;标准间则主要面向个人和家庭。小学新的运营功能吸引了村里外出务工的年轻夫妻回乡管理、创业,成为泥河沟村第一个有较大接待能力的客栈。
.jpg)
客栈 - 大通铺
.jpg)
客栈 - 标准间 摄影:林艺苹
.jpg)
客栈 - 大通铺卫生间 摄影:杨秉鑫
风景的借望
在三层差异的空间中,连接其间的室外楼梯与外廊景观有着重要的意义,它们与风景的对话将由内而外地消解建筑本身的复杂与“异样”,勾连复合的功能与多样的人群。
.jpg)
三个楼梯
改造依据楼梯间在各层的视野与行为差异,由一层石墙的遮蔽到二层格柵的间隔再至三层的开敞,并在三层踏步一侧设置小坐台,可行,可坐,可小观。
.jpg)
框山 摄影:唐勇
.jpg)
框河 摄影:林艺苹
.jpg)
框树 摄影:唐勇
.jpg)
框窑 摄影:唐勇
小学层叠的外廊空间,在空间的游走或坐倚靠立中,调节内部与周边山水聚落的视野层次,框山纳河,俗屏佳收。人们亦可在客房落地窗前坐望后山的窑洞聚落,享受风景和慢时光。
.jpg)
新增屋顶钢梯
再往上通过增设的侧墙柳编钢梯,折入屋顶长廊,直至老槐树边的坐台,曲折尽致,空间豁然开朗,古枣林与黄河崖壁胜景尽入眼底。
.jpg)
屋顶折廊
.jpg)
屋顶平台 摄影:林艺苹
.jpg)
屋顶航拍 摄影:杨秉鑫
待到夜晚,周边色彩退却,在屋顶平台感受古枣园的静谧与璀璨星空,伴着秦腔知天长。它凝聚着一个独立纯粹的小世界,淡化了过去与未来。这是原本营造团队一直在追寻的“实境”呈现,如唐代司空图《二十四诗品》所言:
取语甚直,计思匪深。忽逢幽人,如见道心。
清涧之曲,碧松之阴。一客荷樵,一客听琴。
情性所至,妙不自寻。遇之自天,泠然希音。
.jpg)
改造后夜景
.jpg)
枣园星空 摄影:计云
.jpg)
总平面图
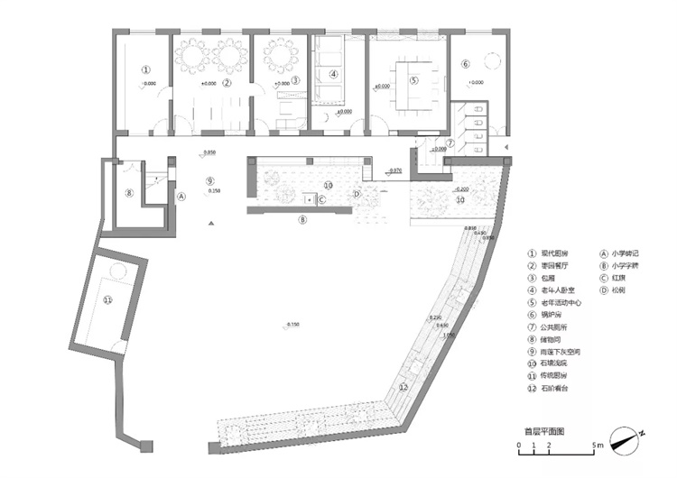
.jpg)
首层平面 ©原本营造工作室
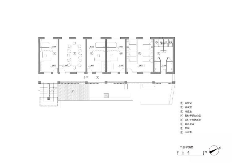
.jpg)
二层平面 ©原本营造工作室
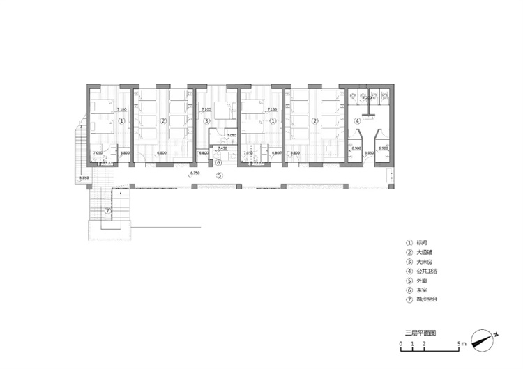
.jpg)
三层平面 ©原本营造工作室
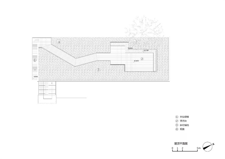
.jpg)
屋顶平面 ©原本营造工作室
完整项目信息
项目名称:枣园小学改造
项目地点:陕西佳县泥河沟村
业主单位:陕西佳县人民政府
设计单位:原本营造工作室
主持建筑师:唐勇
艺术总监:何颂飞
设计团队:林艺苹、杨秉鑫、孔祥麟、张思露
驻场建筑师:杨秉鑫、林艺苹
电气工程师:沈晋
施工单位:佳县信德建筑工程有限责任公司
设计时间:2016.9-2017.5
建设时间:2017.6-2017.10
用地面积:700平方米
建筑面积:750平方米
项目状态:竣工
发表评论
最新评论
投稿