山水秀建筑事务所 | 上海云锦路活动之家
来源:网友Caroline投稿 2019-12-31
本文来源:时代建筑2019年第6期
.jpg)
南向鸟瞰
项目概况
项目名称:云锦路活动之家
项目地点:上海市徐汇区云锦路280号
项目功能:公共设施
建筑面积:502.9 m²(法南餐厅),539.20 m²(社区之家),72.62 m²(咖啡小屋)
设计/建成:2014/2018
建筑设计:山水秀建筑事务所
设计小组:祝晓峰、庄鑫嘉(项目经理)、江萌(项目建筑师)、Pablo Gonzalez Riera、石延安、杜士刚、盛泰
业主:徐汇滨江开发投资建设有限公司
结构顾问:张准/和作结构建筑研究所
合作设计院:上海市政工程设计研究总院(集团)有限公司
建设单位:宏润建设
景观设计:Sasaki Associates
结构系统:混凝土剪力墙+钢桁架折板屋顶
主要用材:青灰色钛锌板、素水泥质感涂料、深灰色铝板、木纹铝合金窗框、超白中空内置百页LOW-E玻璃、橡木复合地板
1 线性建筑
莫内欧(Rafael Moneo)曾在哈佛大学设计研究生院开设一门“建筑设计理论”①课,其中有一堂专讲“线性”(Linearity)。1998年,我在课堂笔记中记下了他对设计线性建筑的两点归纳:一是将剖面作为形式的发动机,二是运用线性的思考方法。五年前,山水秀建筑事务所接到了云锦路跑道公园活动之家的设计委托,看着地形图上一条条细长的建筑基地,我下意识地感觉这会是一组线性建筑。当年的课让我认识了建筑的线性秩序,而这次的实践不仅是一次对类型学规律的印证,更是一次在特定场地和当代语境中寻找新可能的契机。
.jpg)
历史照片
.jpg)
区位图
.jpg)
手绘草图
.jpg)
总平面图
.jpg)
社区之家东北向外观
在设计开始之前,“线性”的概念仅仅是对场地几何特征的描述,或者说是一种“条件反射”:在线性场地上无论如何设计,都必然要对其线性几何做出回应。为了把握这一普适性的本质,我们有必要对线性建筑的演化做一个简要回顾。
在莫内欧的归纳中,用剖面延伸出一座线性建筑是建筑师的自觉动作,而“线性”这一模糊的几何特征则早已存在于大自然中。比如绵延的山脉、汇入大海的河流、树的枝干、动物迁徙的路线等等,都可以被理解为某种主体在某个方向上的延伸,这些延伸都携带着自持的、特有的剖面特征,而延伸中的种种变化,则来自于这些主体自身的发展或积累,以及它们所遭遇的外部环境——可以说,这两重“线性”的特质来源于自然存在,相对于建筑本体而言是一种先在的规律。在自然界中,这种方向性的生长机制与森林、平原、湖泊、沙漠、海洋等非线性的自然主体有着鲜明的几何差异,两者在相互作用中共同构成了地表的自然。相应地,人类建造史中的“线性”机制也一直伴随着“网格”(Grid)这一各向蔓延式的非线性机制,共同塑造了建筑和城市。街道、走廊、桥梁、水渠、城墙等等都是基于人类生活和安全需求而产生的线形构筑物,许多宗教建筑和公共建筑也会通过结构单元的线性重复来营造纪念性的空间序列。自工业革命以来,随着工业化建构技术体系的进步,以及对大型生产及公共空间需求的日益增加,线性建筑取得了新的发展。工业厂房、火车站、仓库、大型展厅、拱廊商业街、机场、板式公寓等建筑类型应运而生,这些线性建筑大都由单一结构剖面单元延伸复制而成,在满足使用功能的同时可以给空间带来新的纪念性,但也往往导致令人窒息的单调;21世纪以来,参数化设计和建造技术进一步解放了线性建筑的形态和空间,使其可以根据需要发生连续的变化。回顾线性建筑的演化轨迹,建筑中的线性来自于人们对某种线性空间或形态的需求,线性重复中可能发生的变化取决于功能、建造或场地方面的特定条件——这两点正与自然界中的线性规律异曲同工。而一座线性建筑得体与否,则取决于建筑的“线性”在满足功能需求的同时,能否与人的身心体验产生恰当的共鸣,能否对环境做出积极的回应。
回到云锦路跑道公园这样一个从机场跑道变身而来的场地,回到“活动之家”这样一种多元混合型的功能,我们除了需要从线性建筑的普遍性中汲取养分,还需要从特定的场地和文脉、从当下特定的功能需求入手,“运用线性的思考方法”来探索新形制的可能。
2 历史与功能
上海黄浦江西岸的徐汇滨江地区曾是20世纪民族工业的发源地之一,曾聚集了包括龙华机场、上海铁路南浦站、北票煤炭码头、上海水泥厂等众多工业设施和民族企业。2008年以上海世博会即将举办为契机,上海市启动“黄浦江两岸综合开发计划”,徐汇滨江迎来地区城市更新,结合对历史遗存的保护性开发,构建公共开放空间,开启了生产岸线向生活岸线的转变。龙华寺南面有着百年历史的龙华机场始建于1917年,作为中国民航的发源地,曾一度发展为东亚最大的民航机场,飞行任务一直持续到2011年。随着西岸的贯通开发,原龙华机场的飞机跑道被改建为云锦路城市次干道和道旁的跑道公园。在这条南北纵向的城市绿化带中,我们设计的是一系列为公园和社区服务的小建筑。
云锦路及路西侧的跑道公园与原机场跑道的走向保持一致,Sasaki事务所的公园景观设计也特别凸显了对机场跑道线性元素的保留和引申。公园中的主要步行通道、漫步道、乔木、灌木绿带、雨水花园,以及广场、游戏场地均沿跑道方向布置,主要步道的硬质铺地还采用了碎块化的原跑道混凝土地坪。这一系列的景观设计语言在运用线性几何元素的同时,表达了对龙华机场历史文脉的尊重。
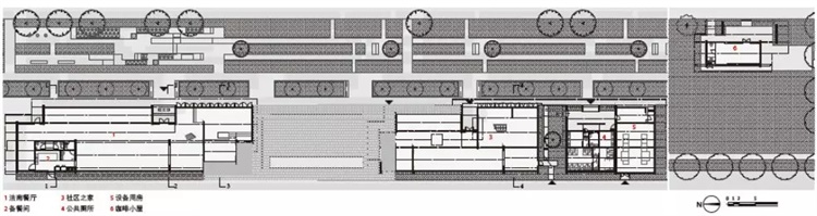
在城市环境层面,跑道公园作为城市主干道旁的公共绿地沿南北方向延绵1.6 km,串联了轨道交通11号线云锦路站、龙耀路站两个地铁站,给沿线的总部办公、城市商业和艺术设施提供了公共绿化和步行空间。公园里的五座配套建筑包括活动之家、餐厅、咖啡店、便利店、公共卫生间和配电站,其中两座中型建筑集中在云锦路站北侧,另外三座小建筑散布在云锦路站到龙耀路之间。在设计初始,除公共卫生间和配电站的功能已经确定之外,其他几项功能并没有十分具体的招商和运营策划,只模糊确定了活动、展览、轻餐饮、书吧等公共文化休闲的大方向。这就意味着建筑师需要在设计中充分考虑空间的弹性,以适应未来的不确定性。
.jpg)
法南餐厅与社区之家东南向外观
.jpg)
底层平面图
.jpg)
咖啡小屋西南向外观
.jpg)
儿童乐园看向法南餐厅
.jpg)
咖啡小屋灰空间
3 家的延伸
经过上述考察和研究,我们确立了设计构思的三个基本来源,即线性建筑的类型学规律,场地的物理环境和机场的历史文脉,以及在使用功能上作为公共活动空间的模糊愿景。从与建筑的关系来看,它们分别指向建筑本体,与环境的交互作用,以及人的身心对建筑的需求。我们的设计过程就是从这三个源头出发,在它们的交集处寻找一种能够综合空间体验和建构方式的形制,从而生成最终的建筑。
场地的前身是飞机起降的跑道——一种飞行机器高速运动所需的线性场地,是在长度上远超一般建筑尺度的动态外部空间;而公园建筑在当下的功能却是一系列容纳公共活动的容器,需要人的尺度和相对静态的、能够聚集人群的内部空间。这两者之间存在矛盾,但在空间属性和尺度上却并非不存在交集。我们找到的交集是“家的延伸”这样一个由建筑本体出发的概念。
“家屋”是建筑最基本的原型之一,一间双坡顶的家屋对外可以遮风避雨,对内可以提供安定的居所。经过各种地方性建构的诠释,家屋已经成为不同地域人居文化之间可以共享的形制特征。在中国江南地区,家屋的平面尺度一般在山墙方向为3 m~8 m,在开间方向为6 m~15 m(3 m结构开间的2至5倍),剖面尺度上檐口高度为2.4 m~3 m,屋脊根据提栈达到约3.5 m~5.5 m,一般的家屋用于日常起居,尺度适当放大即可作为会客议事、祠堂祭祀之用。作为从历史中延传下来的形制,家屋反映了人的身心与生活空间的密切关联,选取家屋作为生成线性建筑的剖面单元,能够使空间在保有近人尺度的同时获得场所的凝聚感。
.jpg)
传统屋顶
家屋的基本结构单元是由山墙或梁柱支撑的坡屋顶。在地方气候条件的制约下,传统的家屋一般都遵循山墙在东西两侧、开间为南北朝向的原则,而跑道公园里的场地则是东西向窄、南北向长。这样一个与惯常朝向相反的场地条件,反而激发我们尝试脱离传统的建构方式,寻找新的结构体系。我们将山墙布置在较短的南北朝向,将开间布置在更长的东西朝向,以获取较多的采光和公园的景观视野。这样一来,东西向剖面将由2至4个坡屋顶组合而成,由这些坡屋顶在南北方向上的延伸来完成建筑的覆盖,支撑它们的仅仅是下部的墙体。在屋顶的覆盖下,这两种尺度共同构成了新的空间秩序,我们称之为家的延伸,这是一种基于场地特质的、兼具独立性和开放性的内部空间。
经过与结构顾问的讨论,我们很快决定用混凝土剪力墙支撑钢桁架折板作为这一形制的结构体系。相较传统家屋而言,这种新的形制抛弃了原有的结构形式,仅提取了坡屋顶方向上的空间尺度,并在开间方向上加以延伸。在内部空间层面,这一形制可以被描述为一种“家屋的合集”,每个家屋单元仍由一个坡屋顶覆盖,以界定有安定感的活动空间;而支撑屋顶的剪力墙,则在划分空间的同时帮助我们获得空间整体的弹性与自由。在外部形态层面,沿跑道伸展的坡屋顶隐喻了飞机的起飞动作,并借此获得了与龙华机场的文脉关联。至此,我们为这组线性建筑找到了新的形制,它与构思的三个来源都建立了积极的关联,并给空间的使用和体验带来了新的可能。
.jpg)
结构逻辑图
.jpg)
施工过程
4 线性聚落
如果说两道山墙支撑一个坡屋面是传统家屋的基本原型,那么用4至6道剪力墙支撑的两折或三折屋面,则是“家的延伸”在横向上的基本演绎。再将这一多重家屋的组合剖面在纵向上延伸,就得到了由下部多重剪力墙和上部多折屋面构成的空间结构体系。
接下来的工作就是运用这种新的形制生成场地内的五座建筑。其中,三座小建筑的规模都在100 m²之内,由2至3道剪力墙支撑2至3个跨度10 m~15 m的折板单元就可以实现,剪力墙的位置和折板的变化则是结构系统和空间分布共同作用的结果。另外两座中型建筑各有500 m²,其系统逻辑与三座小建筑相同。在这里,功能的模糊化和不确定性反而解放了建筑的形制,使我们能够以更加灵活的姿态营造“家屋合集”式的空间聚落。
.jpg)
社区之家屋顶露台
.jpg)
社区之家庭院
.jpg)
喷泉广场看向法南餐厅
.jpg)
咖啡小屋南向外观
.jpg)
社区之家入口供人休息的洞口
我们给横向的混凝土墙赋予了更大的自由,它们长短不一,既是空间分隔,也是竖向结构,支撑着进深不同、高度不一的折板屋顶。最终,自由分布的混凝土墙支撑起一个双坡屋顶的集群,大小屋面交错嵌套,生成了高低起伏、鳞次栉比的形态,如同一个聚合的小村庄。在这个“家屋合集”里,横向剖面提供了亲切近人的尺度,纵向延伸则提供了公共活动空间的尺度。这些家屋空间延绵连通,又在各自屋顶和隔墙的界定下获得了相对的独立,仿佛一群聚集在一起的家。
传统的聚落由一群单体建筑构成,各自独立的建筑之间是庭院、街道、广场、绿化等外部空间。而这里的聚落是一个全内部的空间,聚落中的空间独立性是模糊的、可变的,介于开放和封闭之间,为未来的使用提供了更多的自由和可能。
5 折板的灵韵
从结构体系来看,活动之家是一种变异的折板体系,两折屋面间波谷的平段在同一个高度,但波峰的高度根据跨度(进深)的差异各不相同。利用折板的整体高度,建筑只需要很薄的板厚便可以获得较大的南北向跨度。我们用来实现折板屋面的钢桁架结构厚度仅为120 mm,拥有1.5 m~2.5 m矢高的折板可以轻松跨越15 m~25 m。钢桁架采用方钢管焊接而成,并与预埋在混凝土墙上的支座铰接。桁架折板上覆钛锌板轻型屋面系统,完成后的屋面整体厚度仅为240 mm。轻盈动感的屋面形态和金属质感,也是对机场历史渊源的回应。
在这个墙体位置和折板高度不断变化的体系里,两个统一的数值是墙高和折板坡度。为了控制东西向的日晒、保持近人的尺度,并增加坡顶内空间的变化,我们由此确定了较矮的檐口高度(2.8 m)和较陡的屋顶坡度(53°)。而后,我们根据折板结构跨度和空间需要来决定每个“家”的纵向长度,根据不同家屋的进深决定其屋顶高度。这样,在2.65 m高的剪力墙和坡屋顶之间就形成了大小不一的三角形高侧窗,均采用印花彩釉玻璃,供调节室内采光和通风排烟。而折板屋面轻轻放置在混凝土墙上的受力特征,也通过剪力墙和折板之间的支座直接体现出来。
为了平衡侧向推力,折板在东西两端均有不同深度的出挑,这些挑檐在完成结构任务的同时也有效遮挡了太阳高度角较高时段对东西外墙的直晒。为了更好地获得景观,剪力墙之间的东西外墙采用大面积玻璃窗,窗台高度降至45 cm,以鼓励室内外的交流。与此同时,玻璃内置可调节百叶,以控制光线的进入,为室内营造朦胧均质的光线。
为了维护折板的轻盈和整体性,建筑室内没有吊顶,空调采用地送方式,冷源由室内外风冷一体机组供应。东西向的推拉窗和南北向的高侧窗则提供了自然通风的选择和补充。
在这座“家屋合集”内,来自东西向低矮的、均匀的光线和来自南北向高处的、随坡顶高低而变化的光线都被调节为朦胧的漫射光,它们和室内流动的微风一道弥漫在空间中,成为折板之舞的灵韵。
.jpg)
法南餐厅高窗
.jpg)
法南餐厅室内看向儿童乐园
.jpg)
剖面图1-1
.jpg)
剖面图3-3
.jpg)
法南餐厅阁楼
.jpg)
法南餐厅内景
6 包容的形制
云锦路活动之家从设计伊始就面临功能不确定性的困扰。在设计过程中,除了用模糊界定的聚落空间来应对,这种不确定性也促使我们对功能决定论进行了反思。
不断细分的建筑功能类型是工业革命以来社会和技术专业分工的产物,也是现代主义建筑在20世纪中后期延绵不绝的重要特征之一。德国建筑师、建筑教育家恩斯特·诺伊费特(Ernst Neufert)在1936年编纂出版的《建筑设计手册》②一书中,以功能分类法为纲,将工厂、集合住宅、火车站、学校、医院、商场、体育馆等工业革命之后新兴的建筑功能与图书馆、博物馆、集市等经过更新的旧有功能同列。到20世纪90年代这本手册已历经三十余次增补再版,其中建筑功能的细分和新种类的更新占据了很大部分。这种功能归类法所指向的观念是:功能是建筑项目设计入手时的起点,设计任何一座建筑前必须先了解它的功能是什么。
从20世纪30年代直到今天,作为显学的建筑风格,以及围绕建筑学本体及其外延的理论和历史研讨已历经多次变迁。而功能分类的观念却在生产分工和能效价值观的统领下,在建筑技术和规范的推动下,渐渐掌控了现代建筑设计实践的核心。这一点从来不以建筑文化热点的变化为转移,而是在单一向度上越陷越深。时至今日,大部分建筑设计者都必须面对这业已庞杂的功能分类系统以及与之相应的技术规范。可以说,这种以功能为先导的能效价值观才是现代建筑运动最为根深蒂固的遗产。这种状况直到21世纪初才开始被挑战。今天,网络化、移动化的工作、生活和消费方式已经开始动摇空间使用的固定功能和模式,多功能共享空间、联合办公、快闪店、钟点客厅、季节换租等新的空间使用模式不断涌现,建筑功能的定位开始由“精准不变”向“多元可变”转变。
在当代语境中,我们不再将云锦路活动之家的模糊功能视为一种缺陷。当然,这里的模糊是具体功能层面上的。对未来的周边环境而言,公共文化休闲设施一定是运营的大方向。建筑建成前后,亚马逊线下书店、志愿者活动中心、艺术画廊等都曾是业主可能引进的业态,这也从策划的角度体现了“家屋合集”这一建筑新形制的包容性。另外,在功能策划尚不明确的设计阶段,我们还通过对这一建筑形制的灵活组织,为每座建筑赋予了一定的自身特征。比如地铁口小建筑的开放步行灰空间、南楼租用区和公共区之间的庭院,以及北楼大空间端部的下沉空间和小阁楼,都反映了这一形制的适应性和空间潜力。
使用者在入驻建筑后,也会根据其需求进行一些改造。比如法南餐厅将北楼南端单独划出来作为办公空间,北端则扩大为备餐间,中部作为自由的就餐空间,并将面向公园的窗户修改为推拉折叠窗,建立了内外交融的景观对话;南楼由一个多功能文化活动空间、一间书店和一个快闪店共享,空间中增加了灵活隔断;地铁口的咖啡屋在折板下的半户外空间里设置了外摆桌椅和自动售卖机,成为出入地铁人流必经的活跃场所。
虽然这些改动介入了原建筑的空间结构,对原有的空间秩序有顺应也有削弱,但总体而言,我们对这类局部改造保持了开放的态度,因为这个被模糊定义的空间聚落本就应该具备一定的包容性,允许不同的功能活动在这里聚集、交流,并随着时间的推移而改变。我们更加期待的,是建筑的本体秩序能够在一个更长的时间段里与未来空间的运营产生良性互动,并与使用者在潜移默化中建立起亲密的关系。对于这组线性建筑来说,以形制为核心的类型学是一种方法,“家屋合集”里的欢声笑语才是我们最终的愿景。
.jpg)
社区之家内景
.jpg)
社区之家室内看向跑道公园
.jpg)
法南餐厅内景
注释:
① [西]拉法耶·莫内欧(Rafael Moneo),建筑设计理论(Design Theories in Architecture)哈佛大学设计研究生院,1998年春季,课程编号GSD-3211。
② 编者诺伊费特(Ernst Neufert)曾经为格罗皮乌斯和迈耶工作,作为设计和施工负责人参与过大量工业与民用建筑项目,还做过魏玛建筑高等学校等建筑专业院校的建筑系主任,并担任过全德工业建筑标准化的负责人。[德]恩斯特·诺伊费特.建筑设计手册[M].朱顺之,等,译,北京:中国建筑工业出版社,2000。
发表评论
最新评论
投稿



