海淀八里庄党史党建文化中心 | 闻鹤建筑事务所
其他来源:闻鹤建筑事务所投稿 2020-03-10
这座官方建筑的主题不是关于宏大、权威、庄重,而是关于记忆、情感、自信。自信在城市生活中体现为自在。革命先辈的意志与精神,化现于街道与社区,润物细无声。建筑的立面形象也不是压倒性的或扑面而来的,而是在往来交通的动态之中,横看成岭侧成峰。
.jpg)
革命是关于勇气与创新的事业,党史与党建则是关于热血青春的记忆与传承。在与海淀八里庄街道各级领导的多次交流会议中,我用铅笔在小本子上留下了这句话。对今天的青年来说,革命精神需要与时代相应的文艺形式。市民社会,生活方式,简约美学,现代呈现。我想这是谁也无法视而不见的时代特征吧。
西郊园林与八大院校给海淀定了基调。海淀二字,一定让人觉得它水多得发愁。1997-2003年,我在海淀度过了充实美好的大学时光,假日里常常骑辆自行车在各大校园与图书城转悠。尽管在公园与大学之外很少见到大片的水面,我时常会望文生义地脑补一下白洋淀。
.jpg)
恩济东街与其说是一条城市街道,不如说是一条带状公园。一座古朴雅致的玲珑塔,点缀其间,更有河流穿越。我愿意视这条街道为海淀区域特征之代表。将要改造的这座建筑,位居恩济东街的中段,其外貌首先让我想到早年的郭林家常菜。改造类设计项目的特点就是,不论这建筑什么样子都得先接受下来,然后才有可能理性地发现其内在逻辑。
.jpg)
.jpg)
人们已经习惯通过立面来欣赏一座建筑,这也难怪;但建筑师把主要心思都花在立面设计上就很遗憾了。恩济东街上的主要建筑,多是以早期电脑效果图审美来追求立面效果之作。基于3DMAX软件的电脑效果图行成一大产业,恰恰是在海淀中关村这一带发展起来的。领导们也都觉得旧有建筑的立面需要改变,应注重思想性与文化性但又别太花钱。
.jpg)
将一座很效果图的建筑转换成反效果图的建筑,引起了我的兴趣。仅用一个与玻璃框等宽的景框标准件,上下错落排列,布满整个立面。把新立面仅做简单渲染,剪裁加工与现状照片合成。通过这样的对比,可以很清楚地知道设计的目的与价值。突出立面的建造感、概念化、装置化。至少不要只看一眼,而是要看上一会儿,琢磨一下,于是想进去转转。新立面不是供简单评判美丑与喜好,而是介于建筑内部与其外部的城市街道的剖面缓冲带,形成场景上的渗透,乃至互动。以耐候钢为材料的景框立面装置,具有交互特征的城市性,其所形成的动态多边形是八里庄图形的基本元素,其质感与韵律,更具有鲜明的革命意志与精气神。
.jpg)
1:75手工模型照片
立面的背后,其实是两家单位。北边一半,是一家企业办公,不在此次设计范围之内;南边一半,才是党建中心。除了党史展厅,其他功能还有阅读、办公、会议、咖啡等等。这当然会让人想到时下流行的联合办公空间,创业者与年轻人喜爱的共享与社交空间。
.jpg)
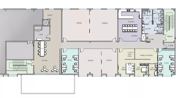
一层平面图
这座建筑还带有社区属性,更肩负落实传统文化的使命。我倒真是希望孩子们放了学愿意在这里写写作业看看书。海淀图书馆支持此项目,把所有书架布满健康书籍。如果孩子们愿意进来这里,在革命先辈精神的鼓舞之下,暂时放下抖音,捧起书本,我会很欣慰。我对融入北京城里的所谓社区生活一直很有困难。八里庄街道领导给社区落实的这个项目,让我开始羡慕这个地区的居民并有点向往社区生活了。
.jpg)
.jpg)
一层公共区的吊顶是对八角图形的演绎,搅动这个很容易中规中矩的空间。社区生活的公共性与地区文化色彩,能让居民们感受到街道领导的温暖与爱心。
.jpg)
.jpg)
几室几厅的居室之家,配上这样一个公共空间,才有点社区的意思吧。街道居民的邻里交往,区域公共生活的室内场景,基于历史与传统的精神文明与文化生活,这或许能给长于科技创新的海淀抹上一层有社区温度的人文创新色彩。
.jpg)
党史与党建展厅就在社区共享空间的背后,二者互为表里。中国传统的灯笼图形被简化为八角图形,整合了所有黑白与彩色相间的党史图片,暖色五星拼图天花点缀了党建文化的主题。这里构建一个党史党建与传统文化相结合的新场景。
.jpg)
二层平面图
二层的各种专项活动室简直就是客厅的放大与厨房的延伸。公共区域的立面被打开,引入了城市绿化景观。这一层的方案最早确定,2018年冬天工人们就开干打造出了雏形。
.jpg)
三层的百人会议室带有八里庄地区礼堂的性质。社区活动分享,重要节日庆典,党建文化讲座,传统文化课程。这里是缔造地区精神的清新殿堂。
.jpg)
三层平面图
.jpg)
.jpg)
.jpg)
.jpg)
让一座党史党建中心成为社区生活的延伸,这是我在接受设计委托之前没有想到的。在这个物质极大丰富、图像铺天盖地、信息无孔不入的时代,人的内心世界也显示出前所未有的脆弱与孤独。线下交往的新场景,城市建筑的新形象,希望能为这个地区赋予新的人文精神。
发表评论
最新评论
投稿
.jpg)
.jpg)