基隆东岸广场 | 禾磊建筑
其他来源:禾磊建筑投稿 2020-07-14
.jpg)
临港面的建筑表情 © 赵宇晨
项目名称 基隆东岸广场
设计单位 禾磊建筑
项目地点 中国台湾基隆市
竣工时间 2018
.jpg)
基隆东岸广场计划不仅是一栋旧建筑物的改造,更是都市空间的再生重塑。
项目基地位于基隆东岸码头,是重要的都市节点与门户。原建筑物长期作为公共停车场,占地下四层及地上一层。它位于高速公路进出闸道旁,量体庞大,占据了都市景观的重要位置,但其空间状态老旧、破败,阻塞都市节点,严重影响基隆的景观与活动;同时,其可视性与可及性均不佳,市民们看不到、到不了;地面层连结性亦薄弱,屋顶广场潜力难以发挥。该设计针对基隆东岸广场进行整体的再生改造,创造出一个新形态的立体都市空间。
.jpg)
项目位置
.jpg)
施工前外观
基地地面层的南侧是公车循环站,设计将原有体量退缩,在东侧创造出一个内部都市通廊,联结南北两个都市区块。利用手扶梯建立新的垂直连结,在三楼原屋顶层增建新的体量,围合出一个十字形的中庭空间,并引入各种都市活动,延伸四个面向的都市联结。
.jpg)
项目分解轴测图
.jpg)
西南向立面图 © 赵宇晨
.jpg)
项目俯视图 © 赵宇晨
.jpg)
入夜后的东岸广场 © 赵宇晨
.jpg)
供人活动的城市公共空间 © 赵宇晨
另外,在新的屋顶层创造一个空中跑道,让市民在高密度的基隆市区有更多的活动和舒展。新形态的立体化公共空间,为市民提供了不同的角度与高度,与港区都市建立新的亲密关系。
.jpg)
屋顶公共跑道与基隆市景图 © 赵宇晨
.jpg)
屋顶公共跑道与基隆市景图 © 赵宇晨
.jpg)
三楼户外中庭广场 © 赵宇晨
.jpg)
三楼挑高的半户外空间与远望的基隆 © 赵宇晨
.jpg)
屋顶平台 © 赵宇晨
.jpg)
建筑局部图 © 赵宇晨
.jpg)
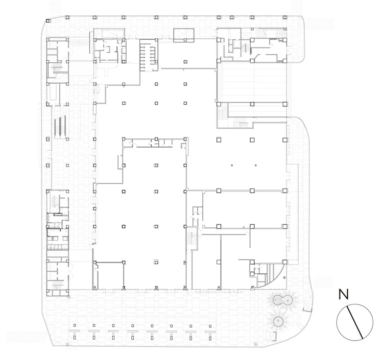
项目一层平面图
.jpg)
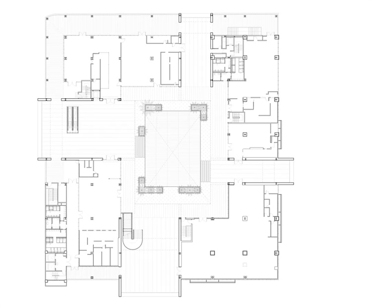
项目三层平面图
.jpg)
项目四层平面图
.jpg)
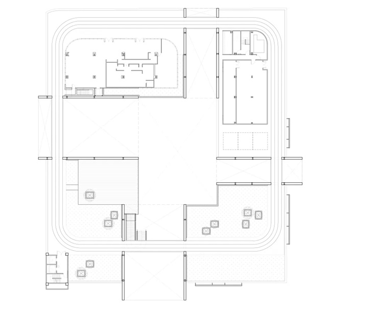
项目屋顶层平面图
.jpg)
剖面图 a-a
.jpg)
剖面图 b-b
项目名称:基隆东岸广场
项目地点:中国台湾基隆市
设计单位:禾磊建筑
主持建筑师:梁豫漳,蔡大仁,吴明杰
设计团队:罗开,赵宇晨,林尚纬
结构设计:筑远工程顾问有限公司
机电设计:虹辉开发工程有限公司
施工图单位:大地营造股份有限公司
结构形式:钢构(增改建部分)
用地面积: 7,343㎡
建筑面积: 5,354㎡
设计周期: 2016.1–2016.10
建造周期: 2016.11–2018.2
发表评论
最新评论
投稿