Tara艺术剧院
来源:网友Sneekyboo投稿 2016-11-29
项目名称:Tara艺术剧院
位置:英国伦敦
建筑设计:Aedas文化艺术团队
业主:Tara Arts
座位数目:100
竣工年份:2016
董事:Julian Middleton

2016年度项目设计大奖 – Aedas 文化艺术团队设计打造Tara艺术剧院
近期重新开业的英国伦敦Tara艺术剧院,是隶属于英国历史最为悠久、声望斐然的跨文化戏剧公司Tara Arts最新的顶级艺术剧院。由Aedas文化艺术团队设计,该项目于近日荣获今年伦敦建筑大奖“年度项目设计奖”。全新改造的Tara艺术剧院融合国际与地方风格,为英国首家跨文化剧院打造富于灵感的创意空间,成为东西方艺术的桥梁。
剧院的设计融合东方元素,致敬其在管理和产权方的亚洲渊源,并突显Tara剧院在英国剧院行业独一无二的特质。设计还融入了在印度被视为“生命之树”的菩提树图案,树木下的荫凉也象征着社区的凝聚。这一“Tara之树”围绕于建筑立面,并以英国传统工艺抹塑,巧妙呼应着印度装饰技术。菩提树图案仿佛在邀请观众走进剧院聆听并分享他们的故事,这一独特的外观亦打造出一座生动的城市地标。
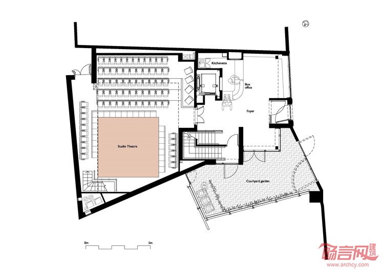
Tara艺术剧院拥有一间设备完备、灵活机动且加倍扩容至百座的剧院正厅、一间全新的隔音排练室和其他辅助设施,来满足当下时兴的表演和观众需求。剧院正厅以高适应度的泥土地板为特色,打造出原生态且富具个性的地面,在伦敦这一时尚之都活灵活现地诠释了亚洲文化。
新剧院所用的砖块中有7,500块回收自旧剧院,建筑材料也尽可能就地取材。外立面的“Tara之树”有96%的材料来自回收废料。内部空间自然光照充足通透,宽敞明亮,并装有彩色百叶窗。从高层窗户透过的光线可以为正厅提供日照,这样的设计颇为独到罕见。
“年度项目设计奖”旨在表彰充分考虑环保、周边社区、功用及创新性的设计。(图片版权01-04为Philip Vile所有,图片版权05-06为Hélène Binet所有)








发表评论
最新评论
投稿



