嘉兴高铁新城文化中心 / 清华院素朴工作室
来源 2026-01-12
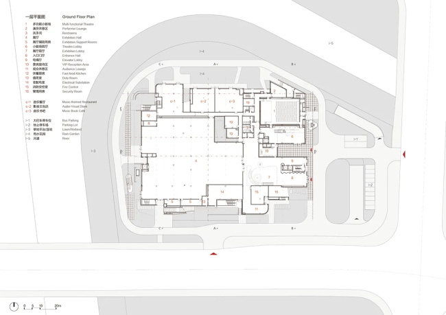
设计将外部空间塑造为可攀登的“山体台地”,以全天候开放的立体公共平台,消解体量感,避免建筑成为通往滨水的屏障。展厅、接待门厅、多功能剧场等大体量的功能空间和为滨水空间服务的餐厅、书吧设置在首层;各类沙龙论坛和独立商店叠置其上,形成“三山夹两水”的立体公共街道。市民无需进入展馆,就能沿立体街道登临平台,逛遍各文化服务单元,全方位的欣赏自然水岸和城市景观。
在“山体台地”之上,一片钢木复合、光伏一体化的大屋面,为城市撑起连续的檐下空间。在遮阳避雨,提升户外舒适度的同时,模糊室内外的界限,让文化生活走向户外,也用自然体验回馈室内。
屋架西高东低、南高北低,形似反宇向阳的传统屋檐,并通过单元化网架优化构造。实体屋面与ETFE天窗协同,将柔和的自然天光引入檐下,同时吸收设备与活动噪音。山体台地中心的“嘉兴之眼”中庭进一步引入通风与采光,使深檐之下仍能感知天空与气流,形成如林荫般舒适的公共场所。
发表评论
最新评论
投稿