曲江艺术博物馆扩建 | 如恩设计
来源:网友烟波的蓝投稿 2023-03-07
曲江艺术博物馆位于西安大唐不夜城,大雁塔的南侧。业主希望在博物馆的东入口处建造新的标志性建筑。扩建项目以“城市纪念建筑物”为设计概念的起始,不仅实现了博物馆扩建所需的文化与商业功能,也成为了城市肌理和社会历史的具象缩影。
原有的博物馆空间将此次扩建的建筑围绕于其中。如恩为了尽可能地减少对原建筑的影响与干预,仔细斟酌扩建部分的体量和细节。
扩建的建筑体量由四部分组成:下沉基座(Base)、雕塑步道(Sculptural Walk)、观景平台(Platform)和纪念建筑(Monument)。整个基座为现浇混凝土,从原广场的水平面下沉而来,延伸了公共空间。
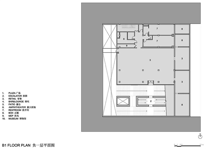
一楼入口处,如恩保留了部分原有的宽阔台阶,连接下沉基座。坚固的混凝土基座保留了博物馆的现有空间和餐厅,同时增加了新的功能空间,如零售空间和公共卫生间,旨在为相邻步行街的活动属性进行功能补充。
从地面层通往博物馆B2层的扶梯,仿佛是隐藏在物理空间中的雕塑式隧道,在压缩与扩展的剖面视角中游走。而三层楼高的采光井,为下沉广场增添了一抹戏剧性。
观景平台悬浮于下沉基座之上,表现为柱子与门楣的组合结构。网格石柱和玻璃幕墙之间的悬浮平台,将零售空间囊括其内,分隔了下沉基座的雕刻语言及圆形体量的绘制。
.jpg)
.jpg)
.jpg)
.jpg)
.jpg)
.jpg)
.jpg)
.jpg)
.jpg)
.jpg)

发表评论
最新评论
投稿



.jpg)