太原市图书馆改扩建 | 中国建筑设计研究院
来源 2020-10-19
.jpg)
从可持续发展的角度来看,拆毁并重建一座功能相同的建筑,得不偿失,太原市图书馆的改造因此遵循“新旧融合、重塑形态”的策略。通过清晰明了的空间和功能增补,形成一处聚拢市民活力的城市客厅。
太原市图书馆旧馆毗邻山西省地质博物馆、山西省博物院,三栋公共建筑沿河形成三馆并列的格局。前两馆分别为2004、2014年先后建成的标志性文化建筑。相较2004年建成的地质博物馆和2014年建成的博物院,图书馆旧馆由于建成较早,设计标准低,已不能满足现代图书馆的功能要求。
.jpg)
▲ 坐落于汾河岸边的太原市图书馆(改造后)
.jpg)
▲ 改造前的太原市图书馆
(改造前的太原市由主楼、报告厅和2栋附属用房组成)
改扩建设计保留了老馆的主体结构,拆除了报告厅和附属用房,将原先离散的形态整合为一个完整的建筑体量,在功能、布局和流线上得到提升,同时形成新完整的城市形象,与前两馆在城市尺度上的空间共鸣。
.jpg)
▲ 改扩建示意图
.jpg)
▲ 改造后的太原市图书馆
凸显了面向汾河开放的公共空间
01 收分与织补
扩建部分采用了与省博物院相反的收分形态,向中央聚拢,营造出内聚的公共活动空间,由此产生了一正一反两个“V”形的室内共享空间。
.jpg)
▲ 正“v”形与倒“V”形空间示意图
.jpg)
▲ 内部空间逻辑直接反映到建筑外观上
.jpg)
▲ 剖面图
其中新老体量之间的倒“V”形空间,对应主入口,让新建与原有结构保持了明晰的逻辑关系,也形成了面朝汾河逐级升高的休闲阅览空间。
.jpg)
.jpg)
▲ 中央大厅
.jpg)
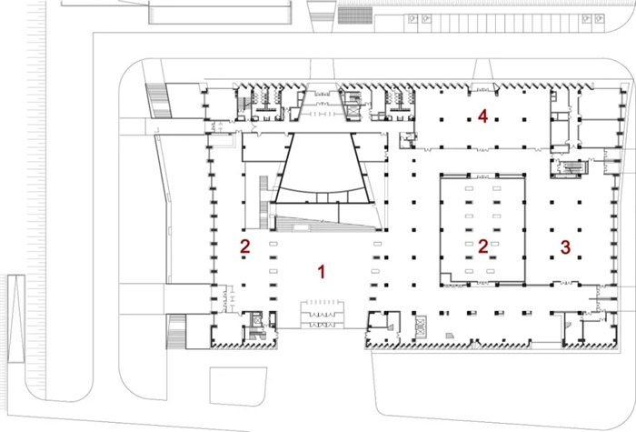
▲ 首层平面图
1 中央大厅 2 展厅 3 少儿阅览 4 少儿手工
改造对老馆“回”字形的建筑空间进行了由内而外的织补,在原有体量过大的老中庭中,继续贯彻“V”形几何母题,通过形态收分,填补出逐层退台的阅览空间,通过缩减空间尺寸,降低了能耗,也营造出更多静谧的围绕中庭的宜人阅览和观景空间。
.jpg)
▲ 老馆中庭改造示意图
.jpg)
▲ 老馆中庭改造后
02 遮阳“书页”
混凝土体量间的若干三角形“负空间”由菱形玻璃幕墙遮蔽,与实体墙面形成强烈的对比。建筑的东西立面的混凝土板遮阳构件贯穿屋面,连为一体,并在屋面的间隙内布置了太阳能光伏板。
.jpg)
▲ 混凝土遮阳构件成为主要立面语言
遮阳构件与玻璃幕墙交替成列,形成偏向南面的采光和观景形式。在立面上产生了如书页般的变化效果。南向立面设计了水平向的遮阳栅格以达到遮阳效果。
.jpg)
▲ 玻璃幕墙与遮阳构件交替组合,形成书页般的效果
.jpg)
▲ 遮阳构造节点大样
.jpg)
▲ 菱形玻璃幕墙
03 开放与服务
改扩建不仅让太原市图书馆的空间更加开放,读者与书的距离更近了,也为读者提供了满足多元需求的可能。
.jpg)
▲ 拉近人与书的距离
太原市图书馆因此广受市民欢迎
.jpg)
▲ 图书馆内外处处可见沉浸于阅读中的人们
开放空间延伸到所有楼层,在保证读者区独立管理的前提下,各个阅读区旁皆有开放空间,提供休憩、放松、咖啡茶点、打印、创客等丰富活动的可能。
.jpg)
▲ 开放空间
开放空间按照功能和尺度分为多个层次。跨度达30m的中央大厅,贯穿建筑,成为城市与汾河之间的视觉通廊,也是承载公共活动的室内“城市街道”。改造完成后,这里先后举办了三场大型交响音乐会,成了名副其实的“城市客厅”。
.jpg)
▲ 在中央大厅举办的音乐会(来源:新华网)
面向汾河的立面在原有结构外增加了一个柱跨,成为塑造了建筑新形象的景观面,其中既有视野开阔的观景空间,也提供了文化、展览活动场地,每年可举办50余场此类活动。
.jpg)
▲ 观景、展览空间
旧馆的中庭部分进行了空间的织补,形成的逐级退台的“v”字形休闲阅读空间,形成了相对独立的一片小天地。
.jpg)
▲ 阅读空间
.jpg)
▲ 贯穿室内外的阅读氛围
工程地点 山西省太原市
建筑面积 53100m2
设计时间 2013年
建成时间 2016年
方案设计 崔愷 许铁铖 李欣 李斌 崔凯
设计主持 崔愷 许铁铖
建筑 李欣 李斌 崔凯
结构 郭俊杰
给排水 潘国庆
设备 张斌
电气 王莉
建筑摄影 张广源
发表评论
最新评论
投稿

