北京夜阑星舍自宅+民宿 | 阿穆隆设计工作室
其他来源:阿穆隆设计工作室投稿 2020-10-27
.jpg)
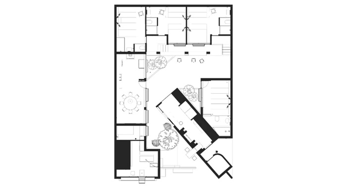
项目是自宅+民宿的建筑共同体。居住在其中的是一位年近80的老人,地道的农民老爷子。而民宿的品牌叫《夜阑星舍》,意为数星星的院子。老人的自宅和民宿之间既有抬头相见的窗口,也有各自保持隐私的空间,这种更多的可能性是乡村民宿的简单与真实。
.jpg)
自宅:业主的父亲是一位年近80的老人,地道的农民老爷子,和蔼纯朴。我们在他自宅的部分为他设计了窗边花坛、菜地、下棋的长桌还有可以晒太阳的矮凳,愿午后的阳光一直洒在老人慈祥的脸上。
.jpg)
.jpg)
.jpg)
民宿:民宿的品牌叫《夜阑星舍》,意为数星星的院子,所以我们将一个顶部开窗三角形帐篷似的建筑插入其中,以便应景。
.jpg)
.jpg)
.jpg)
自宅+民宿:做民宿最好的状态就是有主人时常陪客人一起聊聊天儿,讲讲当地的民风民俗和附近山水景观的位置。
老人的自宅和民宿之间既有抬头相见的窗口,也有各自保持隐私的空间,这种更多的可能性是乡村民宿的可贵之处,感受村民的纯朴与热情,简单与真实。
.jpg)
.jpg)
.jpg)
.jpg)
在这样的环境与氛围里会使人变得放松与感动。愿老人慈祥的笑容留在每个客人记忆里!
.jpg)
.jpg)
.jpg)
.jpg)
项目名称:乡村自宅+夜阑星舍民宿
设计公司:阿穆隆设计工作室
设计时间:2019.07
完成年份:2020.09
主创设计:阿穆隆
设计团队:宋小有、刘宠
联系邮箱:13522430436@163.com
项目地址:北京市延庆区四海镇
建筑面积:155㎡
摄影版权:金伟琦
主要材料:混凝土、水刷石、红砖、钢材、瓷砖
发表评论
最新评论
相关阅读
投稿
.jpg)