郑州普罗理想国市集 | a9a建筑设计事务所
来源:网友Andy2073投稿 2022-10-08
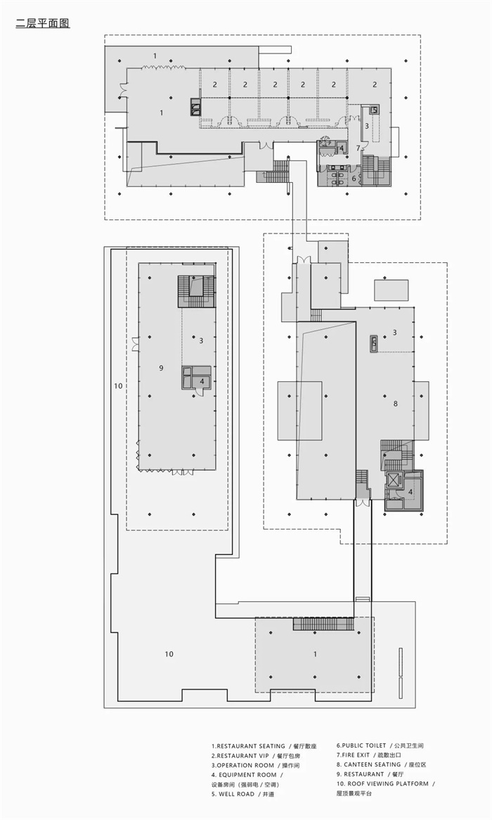
a9a和普罗理想国社区合作打造的集市是一个集生鲜菜场、生活美学零售、时尚餐饮为一体的高品质社区商业体,项目传递了普罗理想国全方位塑造理想住区样本的决心,设计打造开放、便利、共享的公共空间,使其在未来成为一个促进社区邻里互动交往的场所。
项目信息
项目名称:普罗理想国集市
项目地点:河南郑州
项目用地面积:4200m²
总建筑面积:8500m²,其中地上面积4257㎡,地下面积4243㎡
建筑&局部室内设计:a9a建筑设计事务所
委托方:普罗理想国
设计类别:商业、餐饮
建筑负责人:李岳九
设计团队:沈欣怡、王灵毓、李坤、卞永杰
结构工程:栾栌构造设计事务所
结构负责:陆洋
局部室内设计:合恣空间设计
材料:云杉实木、钢筋混凝土、玻璃
设计周期:2021.07~2021.12
施工周期:2021.11~2022.10
项目状态:建设中
工地摄影:普罗理想国
.jpg)
.jpg)
.jpg)
.jpg)
.jpg)
.jpg)
.jpg)
.jpg)
.jpg)

发表评论
最新评论
投稿