上海会馆史陈列馆
来源:网友ithinkthat投稿 转载自:同济大学建筑设计研究院原作设计工作室 2015-02-15

上海会馆史陈列馆
鉴于原有建筑三山会馆深厚的文化内涵与丰富的历史价值,新建筑必将受到其文化辐射与文脉影响。因此扩建的设计策略定位于在维持原有历史脉络与场所精神的前提下,重新改变其功能定位、文化定位的全方位改扩建模式。
鉴于原建筑三山会馆院落式与内向性的空间组织,典型的闽南建筑风格,新建建筑也相应地取外部严谨质朴内部活跃生动的原则,以现代的功能要求、构造与材质重新建构具有中国传统意韵的空间意向。它以序列化的外观元素与中国传统建筑的形象相呼应,它通过立体化的纵横交错的连续屋顶,体现传统建筑的灵动的屋面体系;同时,它又以简约明快的手法彰显了现代建筑形态生成的逻辑性与思维过程。
鉴于原有建筑采取的清水砖墙、木构与涂料相组合的表皮形式,不同性质的材质通过传统的方式相关联,形成协调一致的视觉效果。因而新建建筑的设计策略定位于以全新的现代材料重新诠释传统建筑的文化精髓,而不拘泥于对传统材料与构造方式的沿袭或搬用。采取定制陶砖(陶板)替代原有清水红砖,在维持原有肌理质感的同时更为精致,并可采取更为灵活的拼接与组合方式。采取金属板材屋顶取代原有小青瓦屋面,有利于屋面的保温节能,并有效利用顶面采光,为展厅室内提供舒适科学的自然光源。同时,采取定制半开放陶棍幕墙替代原先的封闭式围墙,既形成了空间界面与分隔又形成了朦胧的传统意境。通过形态抽象与元素提炼,传达出既现代简约,又透射传统韵味的建筑风采。










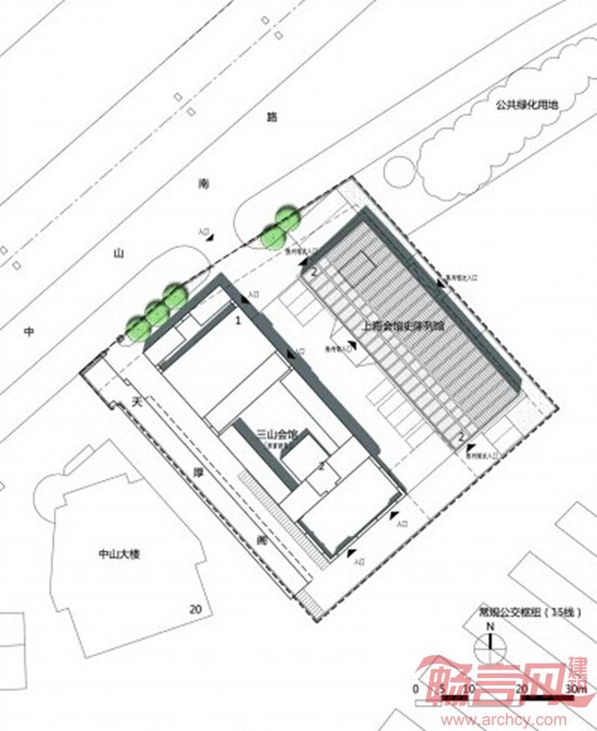
总平面图
发表评论
最新评论
投稿