山西大同美术馆 | 福斯特事务所
来源:网友Marielle投稿 2022-01-07
大同美术馆——中国重要的新文化目的地——以当地艺术家的油画为特色的特别展览向公众开放。作为大同新城文化广场内的四大建筑之一,它将成为该地区创意产业的新枢纽。
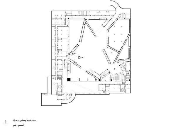
该建筑的雕塑形式被设想为一个景观地形,一系列相互连接的金字塔从地下冒出——画廊空间下沉在地下,周围环绕着景观广场。与博物馆的文化项目相辅相成的是一系列致力于教育和学习的空间,包括儿童画廊、媒体图书馆、档案馆和艺术储存设施。

Foster + Partners 工作室负责人 Luke Fox 表示:“博物馆被设想为人们的社交中心——大同的‘城市客厅’——将人们、艺术和艺术家聚集在一个可以互动的空间。在博物馆的中心,大画廊体现了这种精神,其宽敞、灵活的展览空间旨在容纳特别委托的大型艺术品以及行为艺术和其他活动。”

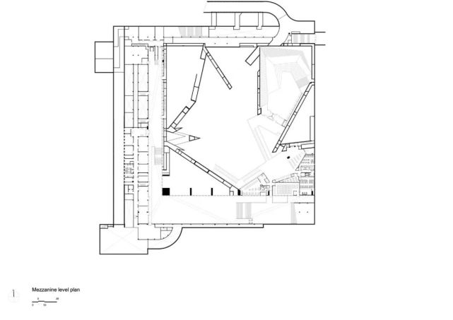
游客被景观中的强烈对角线引导到博物馆。入口通过一连串蜿蜒的坡道通向一个开放的下沉广场——这也为户外表演提供了一个圆形剧场。进入大楼,游客到达夹层,展示了博物馆的社交中心大画廊的壮观全景,该画廊高 37 米,跨度近 80 米。
进一步的气候控制展览空间位于博物馆周边的一层,便于进入。这座建筑的一个关键方面是专注于教育和学习,设有专门的儿童画廊,从朝南的高大窗户中充满阳光。

四个相互连接的屋顶金字塔高度增加,并向外扇向文化广场的四个角落。自然光通过位于每个金字塔顶点的屋顶灯流入室内。
屋顶的设计是对建筑物大结构跨度的直接回应,以及在下方创造一个巨大、灵活的无柱体量的愿望,同时将较小的画廊空间调解到边缘。屋顶覆盖着自然氧化的弯曲钢板,有助于排水并赋予表面丰富的三维质量。面板的比例适合博物馆的大尺度,它们的线性排列突出了金字塔屋顶的形式。

通过将建筑下沉到新广场,设计在规模上与邻近的文化建筑相关联,在最大化内部体积的同时平衡了地区总体规划的整体构成。每卷之间的天窗在白天创造了自然采光的室内,同时在晚上为新的文化区创造了独特的灯塔。

该建筑的高效被动设计响应了大同的气候。高层天窗利用了建筑的北向和西北向,利用自然光来辅助定向,同时最大限度地减少太阳能增益并确保为艺术作品提供最佳环境。将建筑物与高性能外壳一起沉入地下,进一步降低了能源需求。屋顶大部分是实心的,隔热性能达到建筑规范要求的两倍。

“为未来而设计,我们希望博物馆将成为城市文化生活的中心——一个充满活力的公共目的地,”福克斯补充道。

首层平面图

夹层平面图

屋顶层平面图

西立面图

南立面图

东立面图

北立面图

剖面图

地点:中国 大同市
建筑师:福斯特事务所(Foster+Partners)
面积:32000平方米
年份:2021年
照片:杨超英
总承包商:中铁机场建设集团有限公司
结构工程师:中国建筑设计研究院
机电工程师:中国建筑设计研究院
灯光顾问:Claude Engle BPI+THU
景观:AECOM
设计团队:Norman Foster David Nelson Spencer de Gray Luke Fox Michael Gentz 郑雨梦霞 Loretta Law Bartenis Siaulytis Yasuko Tarumi Ahmed Hosny Mitsunori Sano Pil-Joon Jeon Yung Kim
合作建筑师:中国建筑设计研究院
造价顾问:中国建筑设计研究院
博物馆顾问:Lord
发表评论
最新评论
投稿


.jpg)
