gad | 热河山谷天空院子
其他来源:gad投稿 2019-11-28
.jpg)
△ 冬季的热河山谷天空院子
“旅游是获得愉悦感和浪漫性的最好媒介”,度假能够让人偶尔脱离日常的轨道,在远行时再次拾得生活的新鲜感,于自然野趣中收获B面生活的体验。
度假进阶
热河山谷天空院子坐落于河北隆化县七家温泉镇,场地背山临溪,呈半月型沿峡谷铺展开来,从北京驱车而来沿途散落着多处荒废已久的长城遗址。因距北京不远,这里日渐成为人们选择度假游玩的热门场地。
.jpg)
△ 天空院子项目场地
.jpg)
△ 场地概念手绘
.jpg)
△ 整体建筑群模型
度假是对新生活方式的尝试,要创造一种怎样的新生活方式是建筑师在设计中思考的源头。“社交”是人际关系及身份建构的过程,但在当代语境下,网络“朋友圈”成为了社交的缩写,甚至家庭成员、朋友之间社交也建构于虚拟之上,现实中的社交日渐式微,成为了奢侈的“新生活方式”。能否重建人与人面对面的社交体验成为建筑师对这一项目提出的命题。“大院”这一带有年代感的名词,它本身就带有极强的社交特质。这是建筑师对本次设计的切入点。
小院大院
设计中将社交属性渗透其中,围绕“一户一院”的愿景,50平方米与75平方米的住宅单元依模数演变出4种建筑模块,4种模块相互堆叠,形成三层建筑形态,创造出丰富有趣的空间层次,如现实中的纪念碑谷。
.jpg)
.jpg)
.jpg)
△ 单体建筑模型
当抵达热河山谷,每户人家需由户外庭院或者露台进入室内。拾级而上时,经过别家院落,自然的会打个招呼,这成为关于度假社交的温和开端。在弱化度假的距离感之外,设计中并没有放弃居住的隐私性,靠近室内的院墙逐渐抬高,以庇护人们居住中所必需的安全感。
.jpg)
△ 建筑二层边院
.jpg)
△ 社区单元模型
当一群人于山谷相遇,多元场景与自然野趣已然足够激发人与人之间热络起来的话题。几栋单体建筑三面围合,一面向山景打开,形成大院;院落直面山景;院落里还设置火塘、露天影院,配合共享厨房、共享图书馆等多元社交空间,勾勒出热闹与惬意交织的场景。
此外,社区里的多个大院之间也建立了有机的联系,一条主路串联了整个地块,在道路的节点处,散落布置了户外中心、教堂等公共建筑。当人群游玩归来,沿街可见到每一个热闹的场景,并可随时参与进当中,创造度假的多种可能性。
.jpg)
△ 街道场景效果图
冲突趣味
作为一种人工的行为,建筑与自然的对话免不了带有矛盾性,而建筑师并不刻意削弱这种冲突的趣味,反倒将这种冲突恰到好处的融入,希望强调一种客观介入的态度。
北方的四季泾渭分明,建筑外观色彩与场地形成天然的反差,纯色的建筑群在热河山谷变幻的四季中皆能跳脱于前。然而建筑的一部分还是融入自然的,就地取材的采用毛石、木头、掺着稻草杆的手工土壤等原始的材料,像是对自然原始状态的现实模拟。
.jpg)
.jpg)
.jpg)
△ 烽火台元素手绘意向
同时,长城烽火台的形象概念化的嫁接于建筑屋顶设计中,屋顶阶梯的元素借以回应长城的痕迹,自然而然的产生历史的厚重深意与度假的轻松惬意的对比。
.jpg)
△ 阶梯元素
.jpg)
△ 转角开窗
另一种有趣的冲突则是窗洞设计,在符合室内功能的前提下,它并不考究严格的比例关系,自由随机,让人放松。窗户采用幕墙的处理工艺,形成墙窗齐平的效果,通透玻璃与粗粝墙体形成反差。转角处开窗的运用,减轻建筑厚重感的同时,让人们可于窗前纵观热河山谷自然景观。
.jpg)
.jpg)
△ 室内照片
居住狂想
建筑设计是通往理想栖居的必要路径,建筑师在热河山谷以模数化的方式推演出居住空间的趣味性,提供了一种不同于传统的居住方式。当然,居住的可能性还有很多,对生活这门艺术的热爱才是一切可能性的来源。
.jpg)
△ 初冬的热河山谷天空院子
.jpg)
△ 总平面图
.jpg)
△ 院落拼合平面
.jpg)
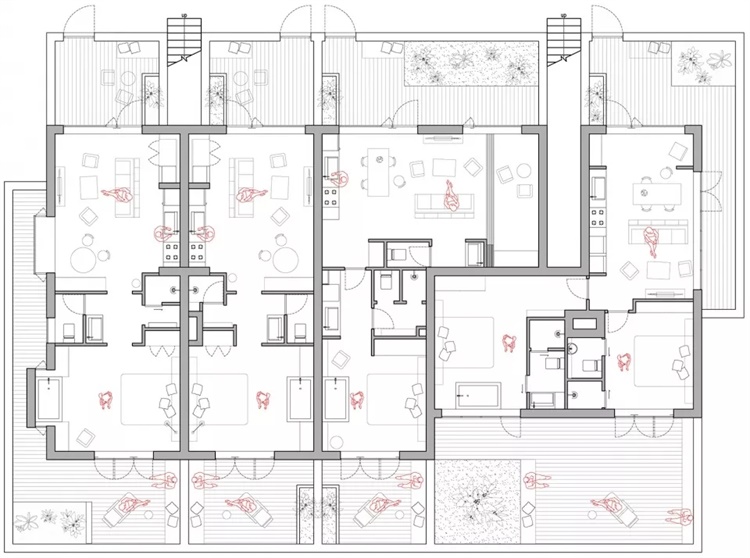
△ 一层平面图
.jpg)
△ 二层平面图
.jpg)
△ 三层平面图
.jpg)
△ 四层平面图
.jpg)
△ 院落拼合立面
.jpg)
△ 墙身节点
项目名称:河北隆化热河山谷天空院子
项目地点:河北省承德市隆化县
详细地址:七家温泉镇
项目类型:度假公寓
设计时间:2018年9月
建成时间:2019年11月
项目规模:29500平方米
设计单位:gad研创中心
项目总监:张微
项目主创:张微、程越、吕超豪
建筑:张微、程越、吕超豪、汤珺如、周霈
室内:多相工作室
景观:种地设计
摄影:杨光坤
发表评论
最新评论
投稿