深圳罗浮·天赋别墅
来源:网友yi12321投稿 2014-10-31
罗浮•天赋项目介绍
设计地点:广东省惠州市博罗县罗浮山风景区
设计用途:高端别墅
基地面积:70万㎡
建筑面积:8.7万㎡(地上)
容积率:0.12
设计单位:艾麦欧(上海)建筑设计咨询有限公司(以下简称M.A.O.)
罗浮•天赋,荣获2014年度金盘奖深圳分赛区年度最佳别墅奖。毛厚德作为该项目的首席设计师,十分荣幸的借由畅言网这个专业平台与大家一同分享罗浮在最初创作过程中的各种奇思妙想。
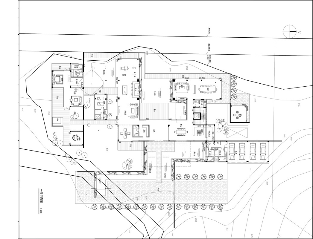
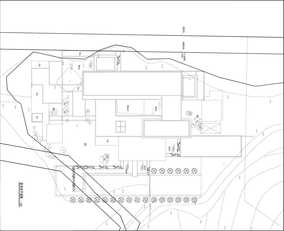
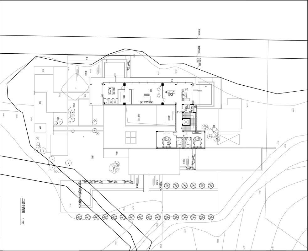
本案是名流置业近年来重点打造的一项高端个性别墅群,于2009年由毛厚德为首席设计师的M.A.O.负责规划设计。项目位于广东省惠州市罗浮山国家4A级风景区,地处岭南“旅游休闲走廊”中心。项目周边依山傍水、原生湖泊环绕。整体占地面积70万平方米,预计将建设超过100栋庄园别墅。
作为一位推崇“非定势思维”的建筑师来说,抛开条条框框的限制,找寻环境的极致特色,正是毛厚德要表达的本意,也是罗浮·天赋的本质。设计师充分利用基地的高差和狭窄,对陡坡上的植物进行了整理,保留了自然水面的天然形态,使项目中的每栋独立别墅都拥有纵深的景观视线。同时,居高、临水,竹林景观天然赋予建筑不同的性格,将环境资源发挥到极致。这里的每栋建筑都与山体自然结合,融为一体,犹如从地面生长而出,或横跨水面,或悬于山巅,满目皆是超然的气韵。
罗浮•天赋之所以打败其它高端别墅,一举夺魁,在于作了化繁为简的精心布局构思。所有单体别墅均根据所处地形度身定制,独一无二,虽然建筑面积不大,但每栋庄园都具有不可思议的开阔视野及不可复制的自然景观,让视野所及之处都成为别墅拥有者的私享花园。
在场景的营造上,建筑讲究私密性和空间节奏的过渡。不经意的入口,在幽静中保持了神秘,渲染出低调的氛围。这些都是毛厚德设计的用心之处,他用最适合使用者的设计,打造出高品质的个性化私人空间。
在建筑形态上,没有特定形式,完全源于自然,生于自然,缔造出“第二空间”,给拥有者提供了更多的室外交流场所。
罗浮·天赋,在幽静中渲染低调于氛围,在自然中消融建筑于无形;由地而生的空间,自然完美的结合,营造一个融于自然、忘记自我的“无为空间”。

设计师 毛厚德









发表评论
最新评论
投稿


