临界工作室 | 煤院新生
其他来源:临界工作室投稿 2020-01-03
水院
项目: 煤院新生
年份: 2019
地点: 中国,北京
状态: 建成
类型: 改造
功能: 办公空间
规模: 建筑 680 平米,景观 250 平米
业主: 私人
建筑设计:临界工作室
照明设计:开合工作室
结构顾问:纪立新
家具赞助:本土创造,Hay
照片版权:夏至
团队: 陈忱,Nicola Saladino, Federico Ruberto, Alexandre Braleret,刘杨洋,陈思,陈牧之,张弥,段锦童,陈鑫星,陈宇轩,李欣,王瑞婷
注:点击可查看清晰图片
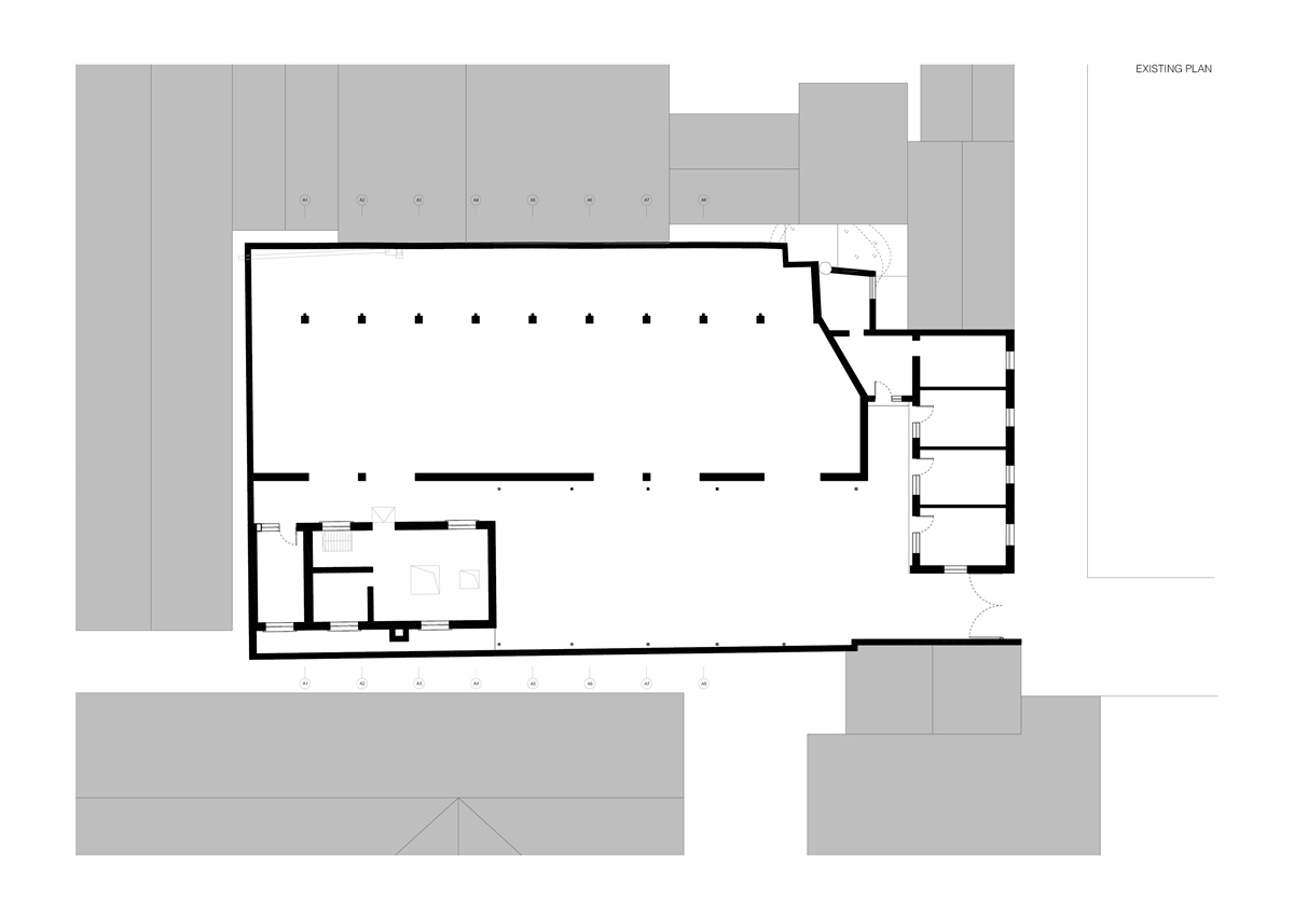
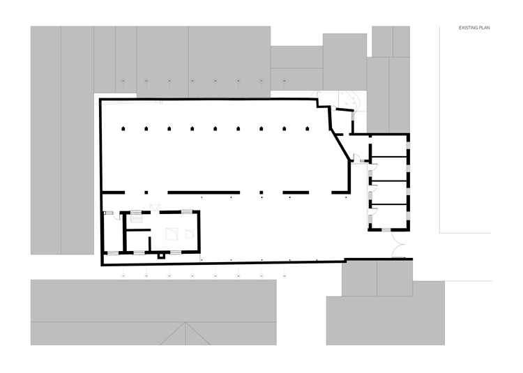
场地现状
项目场地隐匿在北京西城区宣武门历史街区内一条安静的胡同里。场地东南边紧靠小学,西侧则是著名的宣武门天主教堂,场地区位因此非常敏感。这里曾经是一处为片区内胡同居民供煤的工厂,被弃用后一直闲置至今。
改造前后
施工中
几十年的煤灰在场地内的三栋建筑上沉积了一层厚厚的黑色粉尘。光束透过残缺顶棚的缝隙,凸显出场地内各种材料尘封的质感。场地内的这三栋体现出不同时代特征的建筑。其中一栋是北侧紧临胡同的传统坡顶灰砖房,它是胡同肌理的残存。另一栋是紧靠西侧界墙横贯场地南北的开敞煤仓,青砖柱列和木桁架突出了它的秩序和纵深感,像是一处凋敝的大教堂。场地东南角还有一栋带地下室的一层红砖平房。
设计生成
剖面
我们的客户希望将这800平方米的场地改造成一处出租给年轻团队的灵活办公场所,能为他们提供从办公隔间到开放工作、会议室、餐厨和活动场地等一系列不同的功能空间。
改造前平面图
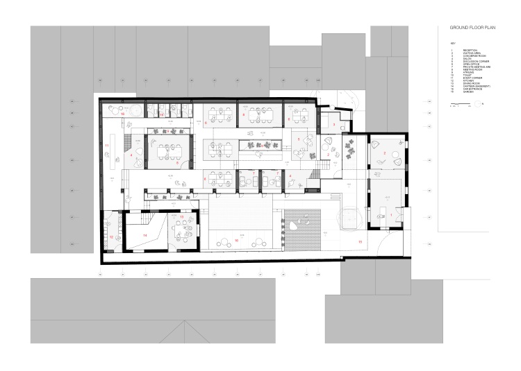
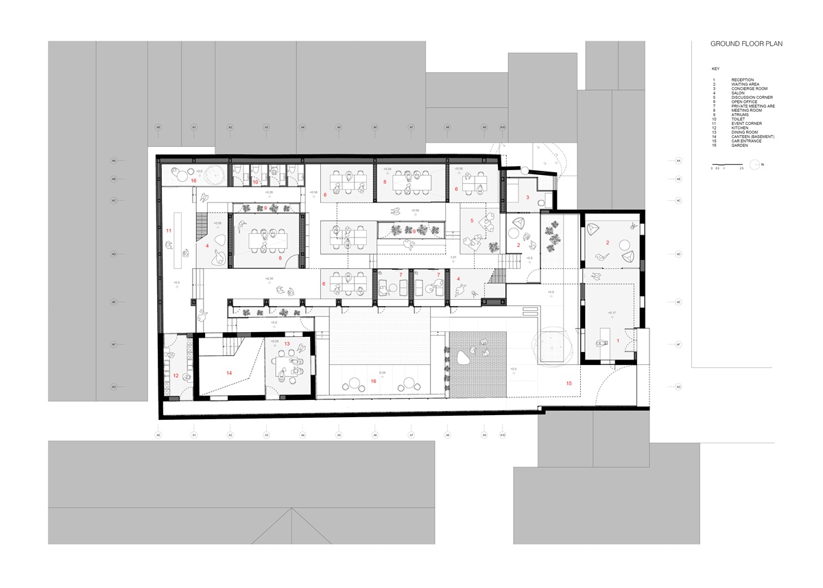
首层平面
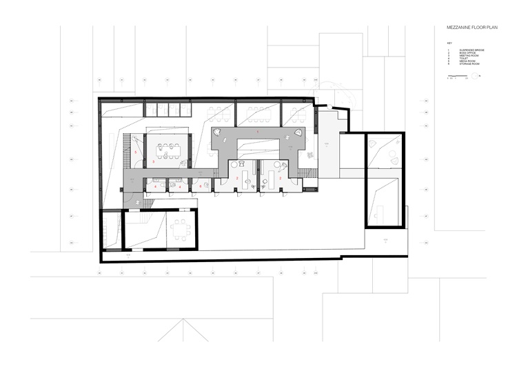
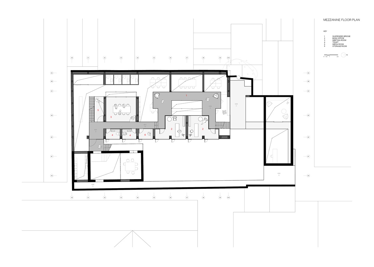
二层平面
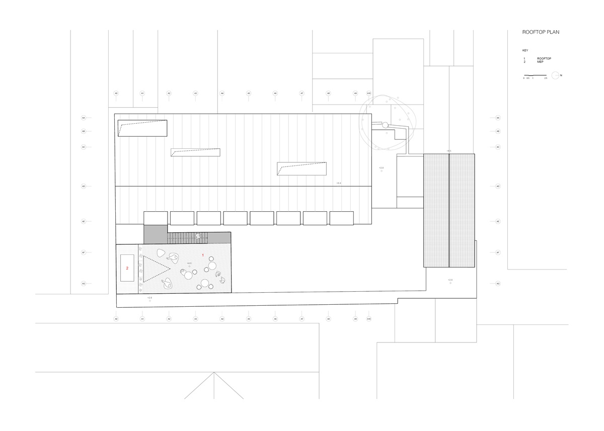
屋顶平面
在北京严格的旧城改造控制条件下,三栋建筑的体型无法做出重大的改变。因此,设计策略强调保留建筑原有的砖结构体量,并对其内部进行重新定义。
西立面
狭长的竹院
室内材质
为满足项目的需求,我们把一系列“功能盒”植入曾经的煤仓中。并根据它们的使用功能,隐私程度,以及原柱网形成的空间节奏来调整它们的尺度和位置。它们在原有的仓棚围合中形成一组功能完备的口袋办公室,中型讨论室和大会型议室。“功能盒”之外的剩余区域,即“负空间”,是未被完全定义的灵活工作区域,可用于举办各种活动。由此,原先空旷而均质的空间中产生了体验丰富,层次错落的空间序列。序列中压缩的夹层与释放到三层的通高空间有序地叠替,为使用者营造出一种呼吸般的空间节奏。
高耸的室内空间
不同透明性形成的空间层次
竹院
室内空间
悬吊的二层平台
确定了这个新的空间序列后,煤仓屋顶在不同的位置被打开以形成采光井庭院 ,让充足的光线可以扩散到不同的办公区域中。同理,我们将东立面的采光最大化,把它处理成一系列的带有落地窗的盒子,让光线能深入主层和夹层空间。玻璃采光井庭院不仅为室内提供了必要的采光,也让间隙中的自然成为漫步空间时的驻足之处。采光井在屋顶的开口将周围场地的标志物框入成景,或是呈现出蓝天映衬着的浓荫老槐树,或是聚焦在阳光点亮的教堂十字架。玻璃中庭通过一系列镜面反射将空间的感知尺度放大,同时也营造出空间之间微妙的界限。
室内材质
悬吊的二层平台
看得见教堂的安静庭院及伸向屋顶平台的楼梯
傍晚夜景
最后,一条由深色钢板构成的连续纽带将三栋建筑整合在一起。它通过折叠拉伸形成接待入口、灰空间廊道、悬挑的夹层和通向屋顶露台的楼梯。这条钢带连接了三座建筑,它不仅暗示出使用者的日常动线,也体现出这里曾经的工业印记。
发表评论
最新评论
相关阅读
投稿
.jpg)
.jpg)
.jpg)
.jpg)
.jpg)
.jpg)
.jpg)
.jpg)
.jpg)
.jpg)
.jpg)
.jpg)
.jpg)
.jpg)
.jpg)
.jpg)
.jpg)
.jpg)
.jpg)
.jpg)
.jpg)
