漯河边界住宅
来源:网友Nelly1986投稿 2019-07-19
回到三年前,那段构思《边界住宅》的日子。
遇到孙朝阳,是在2016年的冬季晚上。闲聊中得知他想在家乡为父母造一栋房子。他的家乡位于中国河南省漯河市市郊的村庄,基地在村尽头,直面田野,远处有什么?山丘、脱硫塔和不想回巢的岩雀。
夜景鸟瞰
总平面图
由南向北望
由西向东望
西立面
一棵会开花的树
第一件事是建立一道围墙,这不是我们的初衷,而是当地的约定俗成。我对此并不反感,因为围墙不意味着阻隔,在我看来,他像是细胞膜,建构了一种选择透过的机制,也为我们的设计定下起点与依据。
围合一块地, 圈出一片荒芜。
推倒破旧的红砖墙,把他们搜集起来,作为新家的建材;移去原有的盆栽植株,暂时安顿在家门口的田埂旁;松开院子里的水泥地,露出湿润的泥土和青草。
围合的这块地里,有一家人几十年的回忆。
老房子的中心原有一棵桂花树和一棵玉兰树,这棵不高的桂花树长得不错,陪伴了主人的童年时代,少年时代,一直到考上大学,毕业,工作。玉兰却在主人年少时死了,他很怀念她,说树很高,年年开花。
伴随围合这个动作出现的是内外与中心这对概念。
窗户是用来沟通内外的媒介,我们在围墙一周上安排了九扇窗,他们大部分位于行走的路径上,形态各异,有的正对内院的向日葵地,为了让花开变成一幅画,挂在墙上;有的歇斯底里得长,为的是截取白桦林的树梢;有的冲破墙角,只为望见更远处的山脉。
庭院里重新种植了玉兰,来自遥远的长春大山里一家叫做北国之春的苗木场。他们把树连根拔起,包好粗枝,减去细枝,装在卡车里连夜运到家里。
三年来,这棵玉兰树一直水土不服,不曾开花,直到去年,枝头突然绽开一丛丛白色的花,幽香扑鼻,全家人乐坏了,仿佛回到了三十年前朝阳的童年时代,孙叔的青年时代。
主入口
小庭院
庭院钢架
庭院夜景
由二层望向主庭院
小庭院夜景
主庭院的斜阳
主卧室的窗
客厅
边界建构
形体组织的逻辑围绕边界墙体而发生,入口在南侧靠近邻居三叔家,进入之后绕着边界墙体顺时针运动,经过亭子,走道,钢构架,小庭院。到西侧,或是进入客厅,或是走向二层。进入客厅,看到的是主庭院,那里有玉兰树和旧时的桂花树。
树底下有通往高处的钢楼梯,高处,也就是亭子的屋顶,是一个独立于西侧大平台的小空间,虽然面积不大,视野却异常开阔,向南向西望,都可以看见远处墨绿的树林。
二层西侧的大平台则连接着一望无际的田野。亭子、客厅、卧室,三个体量分别占据南面,西面,北面,形成对内部庭园的夹持。
以类型学的方式考量,在边界空间中,形体与围墙产生了九种空间关系,类比中国传统住宅对于边界墙体的处理,此处的九种类型分别是:房间与围墙的贴合与包含,楼梯与围墙的贴合,平台与围墙的贴合,钢架与围墙的包含与打断。其中钢架与围墙的抽象关系较少出现在中国传统住宅中,类似构造在拙政园卅六鸳鸯馆北侧廊架和留园北侧又一村廊架中出现,只是他们是连续的,线性的,此处则强调空间转折时的过渡。
透过西面的窗户可以望到远方,隔着南面的围墙能听到邻居的闲谈,或是在北面的小庭院里种植不愿见光的苔藓,在东面的院子里划出碎石的图案,在玉兰树下闻到春的气息,在南面的灌木丛里看到向日葵开的肆无忌惮。
一切都在这个不足100平米的地方发生,偶然的,却循环不止。他们在行走里被捣碎,与烟火气一起融入日常生活里,虔诚而具体。
入口亭子顶面
二层平台
入口小庭院
婆娑
二层平台向南望
钢构架
向日葵
北望
夜读
夜饮
月下
燕归来
庭院钢楼梯
两棵树
走向客厅
夜景主庭院
边界空间原型
朝阳(屋主人)说:
很久以来,自己都想给父母建一所房子,因为旧房子三十年了,现实情况已经不适宜居住了,几经翻修,也是缝缝补补,父母虽然不明说,但是想住上一所新房子是老人多年的愿望。工作以后自己有了一定的经济基础,这个愿望也越来越强烈。姐弟两人不常在家住,平时就是周末回家。对新房的希望主要集中在有足够的生活空间,容得下父母,姐姐一家,还有以后成家的自己,不过大多数时候只有父母两个人居住,小而温馨是当时考虑的主要现实因素。另外一个就是想建一所有趣的房子。
在房子进入建造阶段后,父亲的精神好得出奇,每天都在现场一起参与施工,以前每年都有一两次感冒的父亲竟然奇迹般的全年都没有生病,那种欣喜之情溢于言表。在还没有装上门窗的一天,我跟父亲通电话,当时他在二楼的阳台,电话里我能感到那个位置的夏风拂面,我问他有什么感受,不善言辞的父亲轻轻地说,像画一样,那一刻我感受到了生活的美好。
新房子造好以后,我真切的感受到了住宅对家庭的生活意义,姐姐的小女儿才一两岁,每次一到家就在院子兴奋的嬉戏,绕着房子跑来跑去,因为有丰富的路径和空间让她玩耍。父母每天都会看一看院子里的玉兰,桂花还有那些自己栽的花花草草,去菜园劳作,回到家里享受着生活的朴实。家里总有亲朋好友来串门,由于客厅和卧室的相对独立,我总是能不被打扰的安静读书。
春天,院子里的玉兰开花了,不时有鸟儿栖息在枝头,房子的侧面有田野,透过长条窗看去,绿油油的麦子如画卷般映入眼帘。夏天,父亲更多的时候都是在打理庭院,给树和花浇水,忙碌中的满是闲适,夜晚,二楼的阳台总是微风习习,父亲有时会在那里抽烟,喝茶。秋天,院子里开始多了落叶,借着圆形天窗,很容易感受到秋高气爽,偶尔甚至还能看到有飞机划过,这个季节的傍晚时分,打开室内灯光,让人感受到强烈的温馨。冬天,左邻右舍,叔伯成了家里的常客,这实在是房子光线的功劳,亲朋好友坐在客厅,阳光透过玻璃门透射进来,大家聚在一起闲聊,满是冬天的舒适。
如《我的空中楼阁》中所说,虽不养鸟,每天早晨有鸟语盈耳。无需挂画,门外有幅巨画——名叫自然。(此节文字摘自与屋主人的聊天记录)
关于驻场与失控
夏工和严师傅是我在南京大学认识的朋友,他们为这个房子做了门窗,夏工的草图表达了丰富的细节,所以玻璃与窗框的关系控制的很到位。
薛工,为这个房子做了栏杆、楼梯和门把手。这哥们儿每次干活前都要喝一斤白酒,在清醒的时候是能看懂图纸的,但是只有喝了酒才能干活。我们沟通过几次,他的语速很快,看起来很忙,而且对什么时候能出成品,什么时候能过来安装都不确定。最终成品和图纸都是有出入的,比如把手做反了,栏杆做薄了,楼梯做大了等等。但庆幸的是效果没有想象的那么糟,可见在潜意识里,他还是做了控制。
我希望这个房子一直陪伴孙家,从孙叔手里传给朝阳,朝阳传给夕阳,夕阳传给明月,明月再传给晨曦。百年之后成为那里的一处遗迹,也成为我的另一处故乡。
圆天窗
卧室南望
天窗
施工过程
手稿
总平面图
平面图
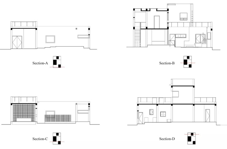
剖面图
立面图
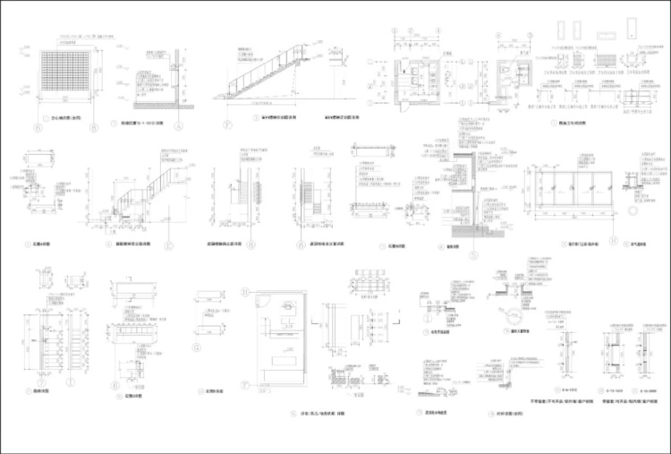
细部大样图
住宅,一曲关于生活的民谣。
而我所认为的生活,寻常却不失深意。
项目名称:边界住宅
项目地点:中国河南省漯河市召陵区孙店村
设计/建设时间:2016.12-2019.6
建筑面积:180平方米
庭院面积:95平方米
设计单位:里建筑事务所
官网:www.inarchitects.cn
主持建筑师:郦文曦
设计团队:庞梦霞、来鹏飞
主体施工:李来获施工组
门窗:严传伟、夏珩、张春雷、赵学兵、薛晓颖
栏杆、钢梯、门把手:薛艺博、李朋飞、孙登辉
摄影、摄像:映社
邮箱:inarchitects@163.com
微信:squirrelandtrain (里建筑事务所)
发表评论
最新评论
投稿



