桃园中华福音神研究学院校区教堂 | JJP
来源:网友羊毛投稿 2022-12-01
美国建筑大师奖(Architecture MasterPrize,简称AMP)日前公布2022年得奖作品,JJP设计的“中华福音神学研究学院”从众多作品中脱颖而出,荣获建筑设计类别winner大奖。
作为最具权威与最受尊敬的世界级建筑奖项之一,美国建筑大师奖(AMP)于2007年创立,以促进全球对优质建筑设计的欣赏为使命,为全球建筑和设计行业树立新的标杆,旨在表彰全球最具创造性与创新性的建筑、景观建筑和室内设计作品,展示和推广杰出的设计人才,并通过建筑艺术和科学丰富日常生活的价值与意义。
中华福音神学研究学院
CES CHAPEL / SACRED HEART OF CAMPUS

中华福音神学研究学院位于中国台湾桃园市八德区,为一所培养学员研究并实践圣经的神学教育学院,同时亦是装备职场专业人士,成为带职事奉者及教会信徒领䄂的场所。


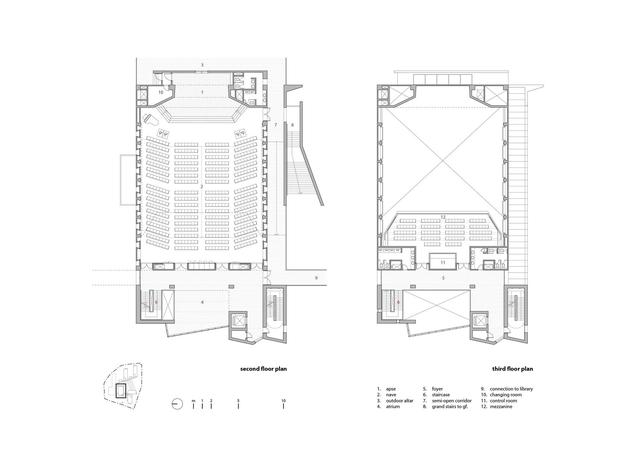
项目按照使用需求,规划有文教大楼、礼堂大楼、师生宿舍等四栋建筑物;半开放式的风雨走廊互相串联轴线上各栋建物,与校园环场步道连通,建构完整便捷之研究及生活环境。



校园核心为礼堂大楼,是紧邻校园入口广场之教堂,亦为校园内最具代表性之建筑物。教堂外观设计隐含“三一真神”之设计意象,随日照产生光影变化的十字架钟塔,静谧漫出宁静及庄严感。



教堂内部系由前厅、大堂、讲台三个序列空间组合而成。步入教堂前厅,为礼拜前后之主要缓冲空间;其后是挑空9.6米的大堂,上下两层可容纳 600个席并可弹性再增200席,是被赋予稳定且宁静的礼拜场所;讲台区则强化了整个教堂的灵性和象征意义。


大跨距的无柱空间是以哥德式教堂拱顶结构为概念,转化以现代钢结构表现,并整合天花与灯光设计,重新诠释哥德式建筑中的肋状拱顶,塑造学院特有之礼拜空间。



两侧以云杉木条镶崁而成之扩散墙面,满足礼拜堂声学所需,亦兼具空调系统功能。


与大堂空间相比,讲台呈现相对简朴,却满满传达圣洁之地及神圣居所之意涵。讲台主墙覆盖暖色天然岗石,晨光自墙面中央镂空的十字架穿透坚硬的岩石映入眼帘,真实体现圣经中“神是坚固盘石、是我的避难所、是世界的光…”。


上部天窗设计,全天候漫射光线照亮讲台,与大堂间形成明暗对比,主墙明亮的十字架投射于空间深处,教堂内氛围更显宁静安祥,尽领与神同在的真实平安。



项目图纸








建筑师:JJP Architects & Planners
面积:2983 m²
项目年份:2019
项目地址:桃园,中国台湾
摄影师:Shawn Liu, W.S. Hsieh
主持建筑师:潘冀
设计团队:叶胜钿、马法耶、欧阳钧、吴姿桦、郑泑如、林育廷、黄诗芳、杨家琳
业主:财团法人基督教华神学校
结构顾问:祥谷工程顾问股份有限公司
机电顾问:吴建兴电机空调技师事务所
音响顾问:台湾科技大学建筑系
发表评论
最新评论
投稿