浙江旅游展示中心
来源:网友Kjoliver1投稿 转载自:筑境建筑 2014-07-03
项目名称:浙江旅游展示中心
主创团队:王幼芬、殷建栋、谢维、严彦舟、骆晓怡
项目地点:杭州
设计时间:2008年
建筑面积:23260㎡
项目类型:文化
充分利用区位优势,结合项目特点,珍重自然环境,建立旅游展示中心在这一独特地段的定位,以最大限度地展示吴山及基地的自然、人文景观环境。以吴山及城隍阁景观作为设计必须围绕的中心和主体,建立环境——建筑——城市间良好而整体的关系。针对建筑地处城市与吴山自然景区的结合带这一特点,努力创造一种既融合于自然景观,又融合于城市生活,能为该地区带去生机与活力,真正提升该地区的环境与生活品质的公共性场所。

浙江旅游展示中心





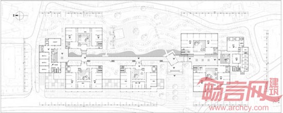
平面图

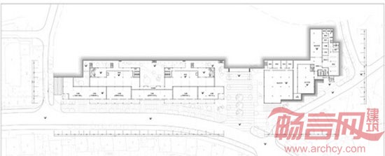
平面图

地下室平面图

立面图
发表评论
最新评论
投稿