深圳前海珑湾国际人才公寓 | Foster + Partners
其他来源:Foster + Partners投稿 2021-03-12
前海人才公寓的获奖设计已经揭晓。前海人才公寓是深圳的一个创新性住宅项目,专门针对租赁市场。该项目被设想为专门为“人才”打造的建筑物,这些人才将拥有以工作为中心的密集生活方式。他们大多是单身或远离家人居住,他们的主要愿望是私密性和排他性,同时还渴望在轻松的环境中感受到社区感。重新设计了这种新的建筑类型,设计提供了创新的布局,重新定义了居民的生活体验。
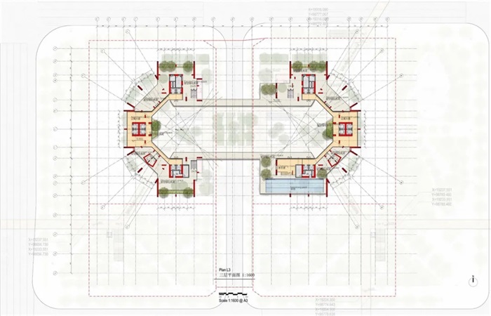
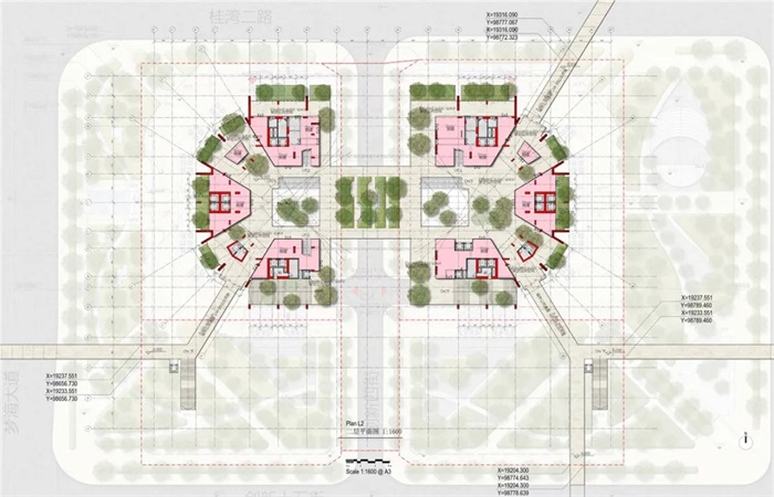
对世界上共同居住空间的广泛研究揭示了一个将人们聚集在一起的共同主题–食物。每间公寓中的一个小厨房都提供了必需品,同时将其余区域归为一类,形成了一个新的公共共享空间,用于公共烹饪。共享厨房将三个楼层的十二个住宅单元组成一个集群。在这里,人们可以做饭和分享想法。三层共享的用餐空间也享有视野,对居民而言既是文化的又是社会的心脏。
公共用餐空间位于裙房平台中,提供了一个新的宁静城市绿洲-一个让居民感到安宁和放松的地方。居民们的会所,健康和水疗中心,居民大会堂和共同工作空间等设施都坐落在空中花园中。居民可以聚在一起在公共场所和设施中举办策划的活动和聚会。
未来的灵活性是关键,模块化结构可进行预制,节省时间并确保质量控制。每两个单元布置有两个剪力墙,可以灵活组合将来使用的单元。尽管每种单元类型可能有所不同,但是这些单元中的内部元素是标准化的,可以提高建筑效率。
.jpg)
.jpg)
.jpg)
.jpg)
.jpg)
.jpg)
.jpg)
.jpg)
发表评论
最新评论
投稿



