西安中粮天悦 | 骏地设计
来源:网友鹿丹投稿 2022-10-18
在西安中粮•天悦项目设计中,设计师撷取“健康”“安全”“愉悦”“温暖”成为编织生活载体的居住空间与社区的关键词,打破都市生活中的冷漠与疏离,把温度美学融进建筑空间的细枝末节,传达生活的温度,感知家的柔软与美好。
“烟火”是西安深厚隽永的城市底色,是日常温度堆叠出的民生百态。镌刻在这片土地底子里的宽厚成为延续千年的城市性格。社区设计延续区域特征,以典正的整体布局思维塑造空间友好的温暖社区。
项目位于西安市高陵区鹿苑大道与上林二路交界,与西安国际港务区直通,未来将承接未央区与灞桥区的外溢市场需求,以“一站式生活中心”全龄化多功能健康社区的理念出发,周边丰富的资源及配套赋予场地多样化的基因,开启生活新意。
设计创造贯穿东西两地块的“十字”轴线,串联社区中的诸多公共空间,主要社区道路沿两侧延展为开放的绿化空间,塑造具有共享客厅气质的开放空间系统。城市的喧嚣转化为宁静的生活场景,黄发垂髫怡然自得,演绎社邻交融、葳蕤生香的景象。
设置于鹿苑大道交界处的展示区毗邻城市转角展示面与社区主入口成为项目对内对外重要空间节点,是塑造具有区域昭示性的城市形象重要片段。设计思路围绕着“站在城市中轴上的新都市生活”展开,更充分彰显设计师“再塑雅韵”的理念。
设计撷取盛唐风华下的建筑力与美统一的气质,以“灯”“月” 等唐诗常见的文化意向为锚点,结合现代化建筑语汇,塑造厚重与轻盈相谐的活力空间与城市展示面,充分体现了这种基于场地底色与延绵文脉的文化性空间体验。
展示区设计概念提取于灯笼,现代的视觉意向重新被传统文化赋格,圆月意向创造了建筑是自然连续性的视觉体验,在空间中感受设计理念所蕴含的先人智慧。
在建造过程中,注入精心细筑与人文雕琢的设计浓度,精致明快的细部质感,演绎人居悦动的生活美学。
景观前场巧妙利用高差,商业外延区营造丰富的业态环境和适宜的界面尺度,木质温暖座椅、临建筑的外摆活动区、临街的悬挑水景、入口的旱喷景观,泽泽生辉的水雾、斑驳无拘的光影、停僮葱翠的树、灵动生趣的装置,为每一个目之所及的生活场景带来充实的细节与视觉层次,为邻里交流提供林下空间。
除了关注基于形象的体块与展示界面塑造,展示区通过多样化、全龄友好的功能设置贯彻“千金置宅,万金买邻”的传统邻里理念,孩子、青少年、老年等人群的需求被充分纳入设计考虑,让自然的气息在室内外泛客厅空间中肆意流淌作为社区载体,鼓励更多的社区活动、公共互动及空间共享,促进邻里交流。
所有生活场景得以与社区悦动交融,社区空间成为家的延展与提升,建构全生命周期体验的社区交互场域,塑造多元场景“有温度的生活剧场”。
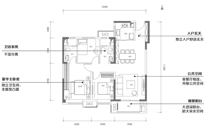
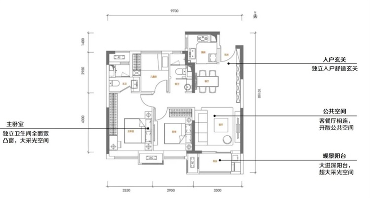
作为容纳生活的场所,西安中粮•天悦的户型设计充分放大了“厅”作为家庭生活核心的地位,以“宽、明、透、变”的理念,以当下主流的多样化家庭结构的90~140㎡面积段为主要产品,为多样化的家庭生活活动提供场所,以空间为锚点提升家庭凝聚力,并充分考虑后疫情时期健康对于空间的需求。
业主名称:大悦城控股西北区域公司
项目地点:陕西省西安市
设计/建成时间:2021年/2022年
项目总监:康雷
设计总监:申鹏
设计经理:夏晋
主创团队:徐传伟、黄岚、王杰、卿梨、陈嘉豪、万涛、王思宇、刘湘江
编辑:王思宇
摄影:知影设计
样板房设计:杰思德设计
.jpg)
.png)
.jpg)
.png)
.jpg)
.png)
.jpg)
.png)
.jpg)
.png)
.jpg)
.jpg)
.jpg)
.jpg)
.jpg)
.jpg)
.jpg)
.jpg)
.jpg)
发表评论
最新评论
相关阅读
投稿
.jpg)