深圳红岭实验小学校园 | 源计划建筑师事务所
来源:网友Kjoliver1投稿 2020-02-28
.jpg)
▲ 立体景观式中庭
设计单位 / 源计划建筑师事务所
建筑师 / 何健翔 蒋滢
地点 / 广东深圳
设计/ 2017-2018 年 / 竣工 / 2019 年
业主 / 深圳市福田区建筑工务署
设计团队
董京宇、陈晓霖(项目建筑师); 吴一飞、张婉怡、王玥、黄城强、曾维、何文康、蔡乐欢、彭伟森、何振中
结构顾问 / 广州容柏生建筑结构设计事务所
结构机电设计 / 申都设计集团有限公司深圳分公司
幕墙设计 / 广州诺科建筑幕墙技术有限公司
景观植物 / 广州尚点园林景观设计有限公司
视觉艺术 / “明天见”艺术组合
标识设计 / 广州哲外艺术设计有限公司
照明设计 / 深圳市光艺规划设计有限公司
结构超限顾问 / 深圳千典建筑与工程设计顾问有限公司
基地面积 / 1.01 hm²
建筑面积 / 3.56 万m²
结构形式 / 钢筋混凝土框架+钢结构
摄影 / 张超( 除标注外)
.jpg)
▲ 东立面运动场上水平错动的教学楼
.jpg)
▲ 学校主入口
.jpg)
▲ 东立面运动场下的社团活动空间
.jpg)
▲ 北中庭下部的户外剧场
.jpg)
▲ 立面的秩序与色彩错动
.jpg)
▲ 交错咬合的半户外活动空间(摄影:吴嗣铭)
.jpg)
▲ 层叠交错的立体复合空间
.jpg)
▲ 二层社团活动及小剧场环绕的半地下风雨球场(摄影:黄城强)
.jpg)
▲ 通透的首层开放架空公园
.jpg)
▲ 南侧教学中庭首层
.jpg)
▲ 入口庭院(摄影:吴嗣铭)
.jpg)
▲ 首层由南向北缓慢上升的架空庭园(摄影:吴嗣铭)
.jpg)
▲ 区位
.jpg)
▲ 一层平面
.jpg)
▲ 二层平面
.jpg)
▲ 三层平面
.jpg)
▲ 四层平面 / 五层平面
.jpg)
▲ 南北向剖面
.jpg)
▲ 东西向剖面
.jpg)
▲ 轴测分析
从户牖到都市苍穹
—— 深圳红岭实验小学校园设计笔记
何健翔
源计划建筑师事务所
常年在南方工作让自己已经习惯于不停息的设计和建设。正如亚热地带的湿热环境中见缝插针生长的植被,南方城市中暗藏的建造冲动无时不蠢蠢而动,城市之中的间隙一旦显现便会以难以言状的方式和形态占领并成长。在丛林般连绵的珠江三角洲城市蔓延(urban sprawl)中,纯粹的空间建造和理论化研究早已让位于直观的计量和生产,建筑师无需、也无暇获得思想和理论的滋养。自然和生猛的建筑实践固然朴实、可贵,但专业的智力被长久纠缠于短视的空间生产之中亦绝非健康的状态。源计划(O-office)的实践也不例外地深陷于快速建造和从不间断的变化之中,只是在深度参与的同时,竭力在与现实的缠斗当中留出必要的思考和批评空间。我们把每次的设计和建造活动看作为对自身文化和知识结构的代谢和重组,以使自身可以在快速的城市流变状态当中不断调整和自我修复。本文便是在红岭实验小学(原名安托山小学)项目实践结束后的重新思考和整理,因而它不是常规意义上对设计的说明和介绍,亦非项目的经验和总结,而是我们所称为的具延续性的地域实践中设计的“后理论”—— 一种速生城市之中建筑学思辨的特殊文本。
1 高密度
“深圳”,作为名词,是这座于大陆南端奇迹般崛起的城市的名字,而这个奇迹显然已将“深圳”一词动词化,指代一种前所未有的城市实践进程,并且在比以前任何时代更宏大的时空中进行。
时间倒退到39年前,深圳经济特区第一版城市总体规划雏形呈现,它是我国大陆上首个按照国际式现代主义生产和人居原则规划、建设的水平延展城市。该规划讲求生产和交通的线性效率,以科学发展为城市建设的基础,它为深圳城市开创了纯粹空间生产的城市发展机制。第一轮城市化建设基本按照这个原则实施,珠江出海口西翼很快出现了一个多中心模式的新型带状城市,其西端是借助外来资金和技术、在旧有渔村之上平地而起的蛇口现代工业区以及港口设施,东端是在传统商业街区和通香港的罗湖口岸基础上建立的罗湖商业区。此后东部盐田深水港的建设让城市向东延伸,以及深圳机场的建设带来的城市往西北蔓延,最终将深圳交织为一个东西向超过80km的巨型多中心带状城市。此轮城市化建设当中的“现代性理想”色彩使得一种基于新型的南方建筑(学)实践在城市的公共性与生产性的张弛之间获得成长,并催生了一批在新型城市空间观念下的大陆式南方建筑实验。
第二轮城市化在第一轮城市化的成功以及巨大的产业和人口增长驱动下,对原有的城市建设原则进行了修正,在带状城市的基础上进行网格化叠加。城市建造加速、加密进行。原有的几个中心之间出现了成簇的“曼哈顿化”的高密度聚集,城市整体变为一个新旧中心相互胶合和挤压的动态密度都市群。二次城市化挣脱了原有水平城市的理想色彩的教条化束缚,应用了更加合乎资本和生产效率要求的网格图式,为更高速的资本运动在城市间留出充足的空间和自由。而曾经获得成长空间的新南方建筑(学)迅速在纯粹生产运动的挤压中丧失自身的在地逻辑和自主性,让位于垂直向度空间的抽象读写,以及妆容表皮的欢愉。垂直(verticality)和天空成为了深圳的代名词,水平向度的合法性被局限于资本效率和建筑规范的约束之内,简言之,只存在于标准楼层之中。城市在巨大的密度和速度的需求下,进一步脱离传统建筑和城市基于土地和人的运动尺度和速度的制约,诞生了凌驾于一切传统城市机制的尺度之上的“超量都市化”(Hyper Urbanism)进程。
“发展”的潘多拉之盒一旦被开启便无法关闭,城市化的发动机也不存在暂停键。深圳的第三轮城市化在前一轮城市化仍在持续进行时已悄然起动,它反过来对第一轮城市化区域的更新加密和以城市后工业场地为主的城市间隙的再城市化,以及对此轮城市扩张中缺失的公共空间作补偿性建设,此举被视为对巨型网格化城市的人性化修补。位处深圳城市带中部、常住人口密度高达2.08万人/km²的福田区正是上述城市实验的核心区域。作为多个城市中心里工业空间占比较低、而商业和人居空间占比较高、有着大片被规划的“公共空间”的福田区,已被当作新一轮城市化的提升重点。当中,人口增长压力下的公共设施,以及巨大的学位缺口压力之下的中小学校园的建设量和规模,远超可见的任何城市和任何阶段。快速城市化生产、建筑的无意识“读写”和“复制”之风以及“妆容建筑学”(ornamented architecture)所带来的后遗症,让快速建造的公共建筑也无法免疫。本应在教育和空间理论的创新支持下的高密度的深圳校园建设,在运动式的建设速度之下沦为程式化的绘图加快速砌造,孩子们连同他们使用的课桌椅被机械地填充于连排的方盒子教室以及行列式的长廊之中。红岭实验小学项目的缘起——福田区的“新校园行动”便是在这种背景下被提上城市发展的议事日程。
人本地理学家段义孚在他所著的《苍穹与炉台》(Cosmos & Hearth)一书中,将人的存在看作在无限世界和具体住家之间的往返历程和体验。在深圳(包括其他超量发展的中国城市),空间的复制和增殖获得了前所未有的动力和自由,但作为个体的“人”家中的“炉台”却难以寻觅。因此校园的再造不仅是传统的建造和规范的问题,它是一个如何在巨大“都市苍穹”之下建构可以容纳、养育和激发儿童幼小的学习和交往行为的微缩世界的社会文化议题。我们所处的亚热带地区,“门窗”是一个可称之为“家”的环境对内居住与对外交往的基本中心(边缘式中心,一个很南方的概念),大抵如寒冷地区(尤其是西方)炉台(hearth)对于家和家庭的中心作用。我们无法想象南方的孩子们在连户外风景都无法看到的冰冷教室中学习和居住。对我们而言,红岭实验小学新校园(图1、2)的设计就是在巨大的都市苍穹之下构建出孩子们可共同游戏、学习的“家”和“风景”,营造出属于他们的小天地、小宇宙(cosmos),建立一座真正属于孩童们的微型都市(micro-city)。
2 “家”,与生物学
城市的基本细胞单元是“家”。新校园建构的根本是如何将校园的基本学习单元(传统上为教室)构建为小学生们学习和交往的校园之“家”。其建构因此被定义为一个“类生物学”议题。红岭实验小学项目所承载的超高建筑密度和需遵循的严格建设周期,极大地增加了校园之“家”以及校园“风景”营建的难度。而且越高的建筑密度、越高的学生容量,越需要对与之对应的空间社群机制进行更新。“类生物学”的空间构建机制不同于机械的空间和建造逻辑,它必须重新定义城市和人的关系,以及在城市网格中创建都市微生态。相对于1960年代我们的东亚近邻日本在其快速城市化期间所提出的可关联其城市传统的“新陈代谢”理论,我们快速成长的城市规划和设计显然缺乏一种对机械主义和纯理性的反思,因而有必要重新考察一种与生物/生命机制相关的城市观念和构想。珠三角传统城乡的肌理并无日本城市中空间单元模数的精确和恒定,但其通过近代商贸活动所形成的空间肌理对应着某种相对稳定的与机体组织类似、并与在地环境(通常是河川与丘陵的交织)自然结合的有机聚落形态。这种融于自然之中的独特城市生产组织大体上构筑了南方近代的市镇空间传统,它们广泛体现在古地图、外销画以及实物的城市留存之中。正是这套有机组织搭建了在“家”或“家的工作单元”所限定的场所(place)到地方(locus)再到外界商贸网络所指向的无限空间(space)三者之间的连续时空关系。当传统生产方式和产权模式被彻底打破,新的生产法则获得无上的合法性后,城市的有机性状便迅速被简化的经济理性所取代,城市从此失去其时空和尺度上的连续性以及个体的可感知性。
新校园的“微都市”机制是对速生城市机械性状的反思和重建,流动的空间形态和有序的生态组织将取代传统校园对学生“监管”的观念之下形成的硬核式的连排教室。家庭式的共享氛围在红岭小学的实验性教育理念下被鼓励:在这个孩子们共同学习和游戏的新“家”中,3位老师和25位小学生会一同度过至少3年时光。借鉴细胞生物学中的组织和交换机制,新的有机空间机制的基本性状通透且富有张力,保护而鼓励交往。红岭小学的“学习单元”相对传统教室有如下重大革新:形态上由原来简单的矩形扩充为瓮形平面,在原来核心的行列式桌椅区域之外扩充出弹性的活动和交流区域,老师的工作空间也设置在此域内。扩大的瓮形单元让儿童们学习和游戏的形式更加多元,富有弹性的空间可支持各种创新的课堂和活动聚集形式。学习单元对外的墙体隔断也由传统带窗洞口的单壁,扩充为具备功能性厚度的、类似生物学上的“细胞壁”的有机结构。此结构中容纳了结构、设备管线、教学单元的收纳,以及每侧一个与外部世界进行沟通和交往的“户牖”(门户和格窗)单元装置—— 一榀落地钢格门窗。正是这个“户牖”装置的开放部分定义了校园之“家”内外的行为学交往基础。它是反向的“炉台”,一个南方的“家”的边界核心,为湿热的南方之“家”提供了凉风、光线、风景,以及与外部世界的交往。“瓮室”和“户牖”便是这个微缩“世界”中的巢穴和眼睛。瓮形学习单元两两配对,单元之间的可折叠的移动墙体为两个学习单元提供了更多的组织和交往可能,双“瓮形”结构构成了校园水平楼层的基本单元(图3~5)。单元的外墙由半椭圆形截面的深灰色陶棍编织而成,模拟并强化了“细胞”空间单元的有机特性。并排陶棍所构成的深灰色曲面肌理与“户牖”装置相间,构成了微都市中的街道和景园背景,从而带出校园的第二个空间层级。
3 “校”,与建筑学
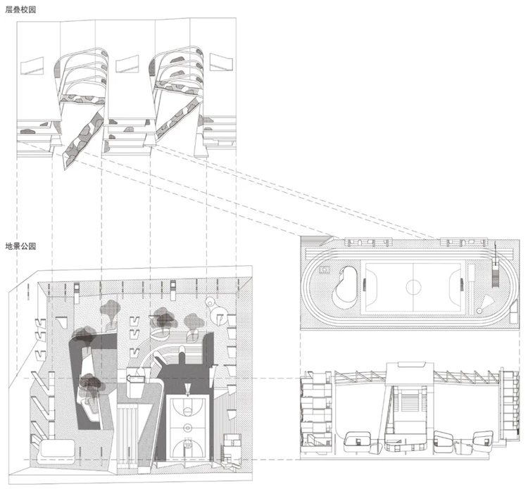
在校园建设密度不断提升的压力之下,为了能维持设计和建造的便捷性,深圳的中小学建筑早已展现向空中发展的趋势,局部突破24m限高的策略已被广泛采用。但这种策略带来过多依赖垂直交通以及日常使用的楼梯被封闭等问题,极不利于儿童的使用和空间体验(图6)。虽然身处早已垂直化的高密度城市,我们依然坚信,一个作为儿童们成长的微缩世界,应尽可能根植土地、最大限度地在水平向度延展并亲近自然。土地、自然和充足的户外空间仍然是童年最宝贵的经验。校园建筑依然应该遵循“水平的建筑学”(architecture of horizontal),而规避盛行的“垂直建筑学”。在各国的经验中,现代中小学校园规划的初始模式均为依附大地水平延伸的模式,而且城市中的校园往往与城市有机相依。学生的学习和生活不仅与户外和自然为友,也与周边社区为邻,从课室到街道、从街道到家都是连续的邻里空间体验。儿时上学课间小朋友们蜂拥至户外运动设施去游戏,以及放学路上所途经的街道和巷道中的情景,至今仍历历在目。而在新的网格式垂直城市当中,出于快速交通连接日照以及建筑退缩等物理和生产要求,道路尺度巨大,街道生活缺失,邻里关系消亡,城市的地表完全让位于交通道路与观赏用绿化的拼贴。红岭实验小学则希望在接近3的容积率密度要求下依然保持充足的水平地面,维系校园与土地的亲近(图7)。
水平方向的流通和自由正是现代主义建筑相对于传统建筑的重要革新。为了争取立体校园的最大水平向度,校园微都市建筑基本满铺可建区域,中间留出规范所规定的教学用房的日照间距而形成两个山谷状的立体绿化庭园。层叠的水平街道平面在“山谷”之中错动,营造一个绿化与光影交织的儿童活动场所。师生们日常的学习和活动空间被安排在基地西半区,分5层布置。其中2~4层的教学层每层布置了6组成对的教学单元,12个教学单元均匀布置在一个E形水平层板之上(图8)。我们把这一容纳两个年级E形的水平楼层,看作一个介于学习单元和整体校园之间中间尺度的水平“街区”、一个小小的校园。每个年级6个班,围合在一个水平庭园周边。平层楼板上散布耐阴绿植,层板之间的通透性保证了良好的遮阳和自然通风效果(图9)。校园的东半区设置两层功能区,与西半区的2、3层连接成为一个更大的约80m见方的水平校园楼层。一二年级的小朋友所在的二层连接东半区的演艺小礼堂和架空游戏空间;而三四年级所在的三层则直通东半区屋面上的200m户外田径运动场,成为最开阔的一层平层校园(图10)。西半区的4、5、6层分别为五六年级的教学单元、特殊教室和老师的办公楼层。六层顶上还有一个水平的屋面花园,俯瞰东半区的运动场,远眺西面的安托山仅存的小山包。6层水平叠加的校园利用了场地本身的高差使由南向北的3排教学单元之间各有1m的高差,制造了有趣的地表起伏,增加的水平楼层的空间趣味,引申出了校园的景园地理学。
4 “园”,与地理学
为了抵抗垂直城市的孤岛性和离散性,新校园需要在基地可建范围内营造微型城市的整体自治。网格式垂直城市正在清理一切原生多样的地理和景物状态,自然的山川水网和自然地貌所构成的地理学上的“粗糙度”被视为对城市发展和建设效率的障碍,平直、同质和无差异被视为城市生产最充分的保障。现代化工具的高度发展使移山和填海的行动成为高效和智慧的体现。红岭小学所在的用地原本是福田区西北部一座名为安托山的玄武岩地质的丘陵,地质学上的特殊性加上地理位置的便捷,使它成为深圳填海造城的重要石料输出地。经过近30年的挖掘,原有的安托山如今仅剩在校园以西300m处的一个小山包作其地理学遗存,其余场地已被平整并规划为新的城市网格,供未来垂直城市发展之用。校园建设之初,基地的南侧和东侧已经被拔地而起的150m超高层住宅所占领。原有的地理状态被彻底格式化后,建筑能做的似乎仅剩重塑对原有地质和自然地理状态缅怀的选项。设计以游戏式的连续变化的地理学园景取代常规学校中开阔草坪和户外运动场的纪念性场景,以不间断的立体游园的叙事式空间取代层级化的和规训化的传统学校组织,强化场所的时间特征。正如我们在深圳明德学院的更新改造当中所尝试的将“校园”(campus)理解为一系列自然风景中的地理学体验,创建一种非实体和非纪念性的自由连接和思辨行进,使身体与环境融合,找寻我们在现代化过程中所遗失的都市和风景传统(图11)。
强调不间断游园行走的地理学机制是瓦解僵化的城市网格、重建人与环境关联以及织造空间和时间的最佳工具。校园微观地理学试图在那一扇扇看得见风景的格子窗到整体校园的“小世界”之间建立游历和体验的连续性。地理学的“造园”尝试从回归土地、重塑场地的地景和增加场地的粗糙度开始。“新校园行动”对未来校园向周边社区开放的要求也契合了我们城市地表立体化和公共化设计目标。高密度和高复合度也要求校园机能向下生长,半地下的艺体活动空间与场地有机融合,成为从地表到地下的一体化儿童地景乐园,并可能成为未来的社区公园。通常给街道生活带来诸多负面影响的建筑退缩带在设计中被改造为下沉地貌的边坡花园,为半地下的艺体空间提供极佳景观和通风采光。对应上层相扣的两个对称的E形楼面,地景公园也分为南北两个下沉庭园,南侧庭园连接主入口的架空层,北庭园与地面标高以下的架空风雨球场相接(图12、13)。架空层地面顺时针沿规划地貌缓缓上行,将南北庭园相连。两个庭园之上便是寓意安托山的层叠式山谷地景,自山谷底部的地景花园仰视天空,交叉连接不同水平楼层的钢结构空中绿廊在“山谷”的上空悬置了一份独特的观赏和游戏体验。“山谷”庭院、上下错动的水平层板、疏松的细胞组织,以及有机的绿化植入系统,最终构筑了根植于南方、锚固于巨大的垂直流变城市之中的真实的时空体验(图14、15)。
5 结语
我们所身处的珠江三角洲城市群,原本丰富的地理和文化连续性已被彻底打破,尽管隐性和显性的传统依然渗透其中。超级现代的外表下潜藏着巨大的复杂性和矛盾性,当中不同的历史和事件、相互冲突的信条,被压缩和叠合于同一时空区间之中,持续涌动、流变。城市化的原因和结果均是抽象化的空间生产和再生产。城市既是巨大的生产空间和实体,也是空间生产的产物。在此条件下,营造城市公共性和公共领域的首要职责是重建人的主体性,建立都市中新的时空自治领域。城市新公共性设施需抵御无处不在的经济生产,回归本体的居住和体验,为身处茫茫都市中的人们谋得立足和思考之所。校园空间更是孩子们长久成长和学习的公共场所,校园营建更迫切需要摆脱纯生产和(短视)效率的控制,以及监管式传统校园的观念惯性,回归校园的场所本源,重建与户外园景的亲近,为孩子们构建一方自由畅想的小世界(图16~20)。红岭实验小学校园所构筑的“非精致的混合性”正是上述新都市建筑学思考之下的“南方机制”的营造。
发表评论
最新评论
投稿