深圳后海金融总部基地 | Aedas
其他来源:Aedas投稿 2021-01-22
后海中心区作为深圳六大总部基地中唯一的金融定位,正处大湾区几何中心,毗邻深圳湾,云集了阿里、百度等一众企业。Aedas从国际竞赛中脱颖而出,在这个总部林立的地块,以“绿谷之门”为概念,打造了一座体现企业理念的地标性办公社区。
.jpg)
绿谷之门
地块毗邻后海文化商业轴线及中心河生态景观带,远眺深圳湾,周边环绕着华润大厦、安邦财险总部大厦等超高层建筑,临近地铁11号线及2号线。面对复杂的城市肌理,Aedas全球设计董事刘程辉表示 ,“高度并不是建筑成为地标名片的唯一考量。在快节奏、高密度的深圳,我们希望为市民带来的不只是一个办公总部,而是一个兼备绿色亲人空间与社交互动的办公社区。”
兼备绿色亲人空间与社交互动的办公社区
Aedas基于因地制宜及绿色生态设计策略,构建出造型独特的“绿谷之门”,营造高密度中的绿色开放办公花园。设计根据功能需求,从上至下形成逐渐开放的形态,如面向大海的大门,一展开放、包容的企业理念,并在塔楼中间的开放区域植入绿化休闲平台、屋顶花园,以及方盒子、艺术楼梯等创意特色空间,在延续的垂直绿化中形成公共互动空间,与内部的交互式办公,一同诠释出“诚筑空间,智创未来”的核心价值观。
设计概念
生态开放的“绿谷之门”
地块场地界面复杂,基于景观视野与城市延展界面考量,团队提出以多维界面与城市深层互动的设计策略。塔楼底部为双层商业空间,上方为办公空间,分为低区和高区两部分。设计将与城市连接更为密切的塔楼低区,旋转面向城市文化广场,丰富的退台及错动空间形成“软界面”,可尽享城市绿廊景观;而拥有开阔视野的塔楼高区则向东倾斜面向海景,眺望深圳湾美景。

多维界面构建与城市的深层互动
.png)
塔楼底部为双层商业空间,上方为办公空间,分为低区和高区两部分
团队采用注入多层级交互空间的设计策略,力图打造于交互中高效办公的新一代工作场所。塔楼内部采用灵活开放的布局方式,打造极具适应性的办公环境。设计在楼层间穿插盒子空间,以满足小型会议、商务洽谈等私密空间需求。局部设置通高空间,以一目了然的通透设计,提供了大量互动空间,并注入不同尺度的公共区域,以满足日益多样化的发展需求,让社交在此发生。同时,融合多种交通形式,以垂直电梯、楼梯及成环形的步行流线构成的多层级交通组织,让人们可以便捷到达各功能分支,形成多层级有机共生的工作体系。
曲形艺术楼梯,即成为亮点又满足功能需求
.png)
多层级交通网络
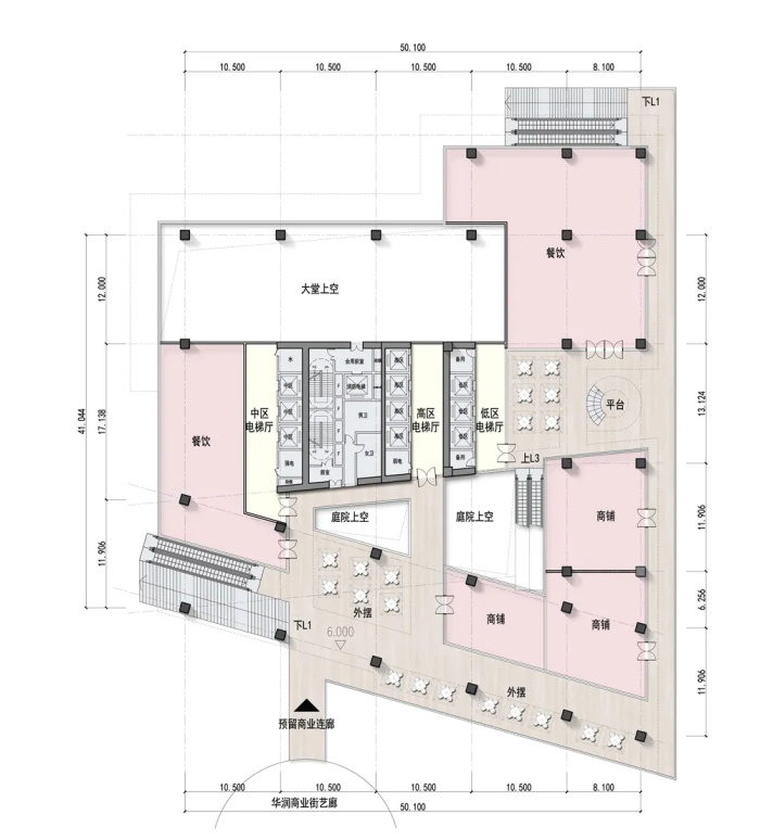
设计以多层级交通构建城市立体通达,实现城市功能与办公功能的有机融合。为实现室内外的快速通达,设计根据不同目的地打造多方位入口,并以曲形艺术阶梯和外部直梯构建商业双首层的连接。同时,地下一层及二层设有两条通廊,去往华润及其他地块,商业二层可与南侧人行连廊直接连接。
.png)
多层级立体交通网络

城市功能与办公功能的有机融合
“我们希望可以实现使用者需求、建筑表现及建筑语言的相互平衡,从友好协作出发,为深圳打造又一可持续发展总部办公建筑范例。”刘程辉如是说。
二层、办公低区、办公中高区平面图
位置:中国深圳
业主:深圳市建工宝鹰大厦开发管理有限公司
设计及项目建筑师:Aedas
建筑面积:72,333平方米
竣工年份:2022年
主要设计人:刘程辉,全球设计董事
发表评论
最新评论
投稿



