IF创意工厂 深圳南头古城废弃厂房改造 | MVRDV
来源:网友桥投稿 2020-08-18
南头曾是一座历史悠久的古城,如今成为深圳市的一个城市村落,被摩天大楼环绕。市政府近年来尝试将南头打造为文化创意中心,并于2017年在这里举办了深港城市\建筑双城双年展(深圳)。
近日,MVRDV公布了其在南头古城设计的IF工厂方案。这座为深圳南山区建筑工务署和深圳万科改造的办公建筑总面积11000平方米,是万科提出的多项改造工程中规模最大的一项。该设计为MVDRV与万科城市研究院、万路设计咨询和深圳博万建筑设计公司合作完成。
.jpg)
△ 建筑效果图 ©MVRDV
设计方案并不是对废弃厂房的拆除和重建,而是对其进行可持续性的翻新,将其改造为一个“创意工厂”,办公空间由万科城市研究院自用,也可租赁给其他创意公司。设计以一座公共楼梯为核心,使访客可以看到内部的活动,并通向一个风景优美的公共屋顶露台——“绿色之家”。
.jpg)
△ 方案生成步骤 ©MVRDV
主要改造措施是对旧建筑进行简单的清洗和翻新。使用新的透明涂料技术,并对旧结构进行抗老化处理。这保留了建筑物的历史痕迹,使由于残破而暴露的混凝土框架实现了可持续性和循环经济的原则。新办公室的外墙缩进框架内,形成与同事邂逅交流的外围阳台流线。外墙是玻璃的,阳台的部分地板也采用玻璃砖,成为建筑的入口标识。
.jpg)
△ 建筑效果图 ©MVRDV
新增加的设计中最引人注目的部分是一个大型公共楼梯,由木板包裹的楼梯设计将其从混凝土和玻璃中区分开来。楼梯在建筑中雕刻出一条独特路径,从地面通到屋顶,在四层的位置突出外立面。透过楼梯内置的窗户,人们可以瞥见办公室内的活动,形成通透感,加强与南头社区生活的联系。在楼梯内部,镜面玻璃和充满活力的霓虹灯标牌让人联想起深圳城市化早期的视觉美感。
.jpg)
△ 室内效果图 ©MVRDV
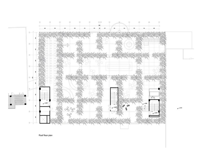
第三个改造措施是屋顶上的“绿色之家”。从楼梯出来,绿色的竹林映入眼帘,其中设置了各种便利设施和活动。“竹林迷宫”的设计在屋顶形成不同的功能分区,绿色功能区包括舞蹈室、餐厅、阅读室及许多其他用于休闲聚会的主题场所。
.jpg)
△ 屋顶图解 ©MVRDV
.jpg)
△ 建筑效果图 ©MVRDV
临时的帆布立面便于在施工过程中使用。临时立面展示了建筑完工后的外观,并采用大拉链设计,拉开帆布可通往底层,目前正在举办“万化同源”献礼深圳特区40周年的展览。一旦不再需要,帆布将被回收并制作为手提袋,使这种临时措施成为配合该项目循环经济考虑的另一个要素。MVRDV也与Studio Boris Maas合作,为展览“漫游.南头延生”特别设计了椅子,将在南头新生场展出。
.jpg)
.jpg)
△ 施工过程中的帆布立面 ©Gao Yu 高钰
Winy Maas表示:“南头是一个特别而迷人的地方,对于深圳市非常重要。”“设计在为深圳创意发展愿景作出贡献的同时,也与南头居民亲近,满足他们的需求,保留了这里的历史。”
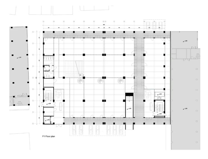
设计图纸 ▽
.jpg)
.jpg)
△ 平面图 ©MVRDV
.jpg)
△ 立面图 ©MVRDV
.jpg)
△ 剖面图 ©MVRDV
发表评论
最新评论
投稿



