南京雅达 · 子罗城 | line+建筑事务所 gad
其他来源:line+建筑事务所投稿 2022-10-08
子罗城位于南京高淳雅达健康休闲旅游产业园——一个集酒店、餐饮、休闲娱乐、文化展示等多业态的主题度假园区内。按规划方案,用地三面环水,一侧为园区辅路,环境条件优越。
项目经历了多次任务书的变更,功能从最初泛泛的儿童乐园,最终确定为涵盖黑匣子剧场、主题蹦床公园、培训教室/多功能厅、咖啡馆、文创售卖等复合业态的童玩馆。
然而,各功能空间,尤其是黑匣子剧场、蹦床公园、多功能厅均需高大无柱空间,与根据最初方案所划定的点状用地边界发生了天然矛盾。三个大空间无法叠放,使用面积已经占到总用地面积的近60%,再加上其他功能及必要的服务空间等,用地条件显得尤其紧张。
基于这一限制,方案从三大功能体块及辅助空间在场地中的布局入手,按准确具体的尺寸需求,先布置三大体量,再将其他相对灵活的辅助功能拆解组织到边角空间,寻求合理的图底关系可能性。
综合考虑门厅、咖啡厅、文创售卖、培训室等业态的要求,结合三个大空间的入口及疏散、黑匣子剧场候场及跑场等交通组织,统筹项目周期和成本控制等现实条件,我们经过多方案比较确定最终布局,并采用体块化的造型构建一座高低叠合的乐活集盒。
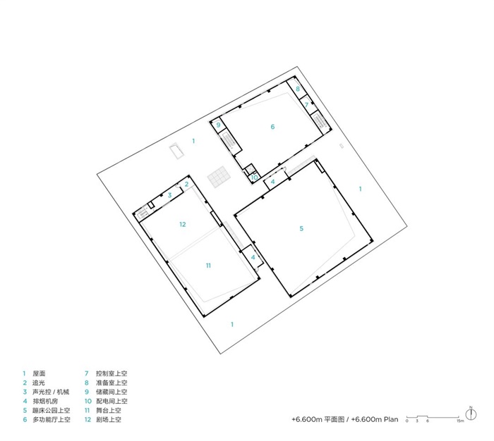
首先将功能相对独立的三个大空间置入场地,再将其他层高要求较低且差别不大的辅助体量填充进红线内的边角空间,引入一个大平台去串联三个体量并覆盖辅助功能,形成屋顶活动空间和底层灰空间,并通过对平台进行掏洞形成庭院和天窗。
为加强大平台的漂浮感,底层增加片墙的立面语汇,同时结合水面,下沉咖啡厅并放大外摆节点,充分融合环境,得到漂浮在水面上的儿童乐园,最后将三个主体量赋予不同的色彩强化概念。
在交通组织上,三大体量在中间位置腾挪形成的负空间恰好形成前厅,同时也实现了进入三个主要功能的流线组织,黑匣子剧场与蹦床公园之间的走廊形成剧场的跑场道和观众的候场区,教室/多功能厅与蹦床公园之间的走廊则串联了卫生间、寄存间等一系列辅助功能。
前厅右手边的咖啡厅外摆区用架空地板与室内做平,通过连续打开的折叠门容纳水面景观,主入口人流在片墙的引导下也可直接到达外摆区。辅路一侧布置园区变电房及面向园区的公共卫生间,直接为园区服务。
在结构选型上,综合结构、周期、成本的要求,项目主体框架采用钢筋混凝土结构选型,蹦床公园与黑匣子剧场采用轻钢屋面实现大跨。大平台的出挑由于内外标高的不统一,只能做单边悬挑结构,这也一定程度上限制了出挑距离只做到了两米。
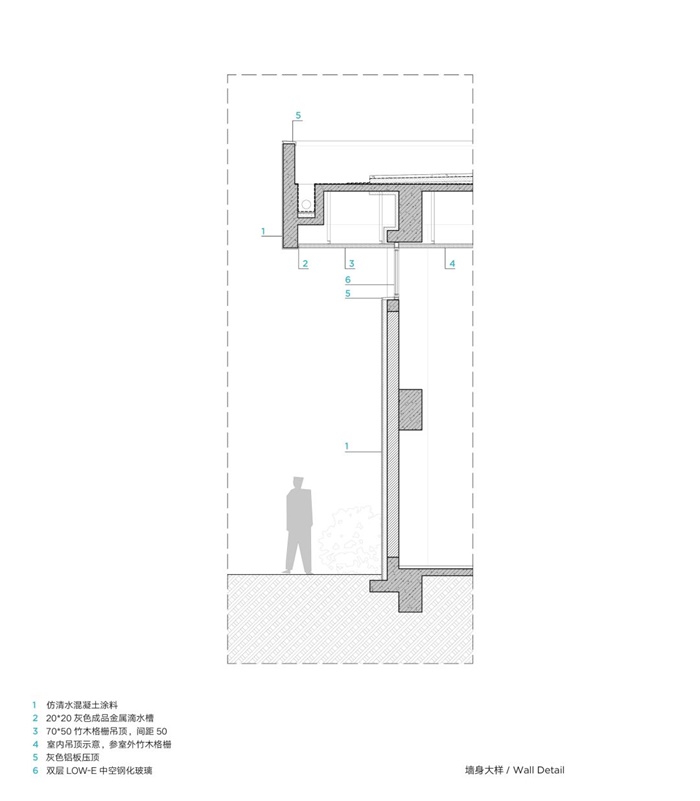
在立面材料选择上,由于严格的成本控制,再加上黑匣子剧场与蹦床公园无须自然采光,工业建筑常用的波纹板成为了这两大体量的首选,大平台和底层片墙选用仿清水混凝土涂料处理,表达清晰的形体逻辑,教室/多功能厅选用穿孔板做双层皮,兼顾立面造型与采光通风效果。
在色彩上,三个盒子分别选用蓝、橙、黄(内表皮),呈现出十足的活力与童趣。
在节点处理上,方案为实现概念的完整性,在设计初期就考虑了室内外的衔接,力图通过室外材料的延伸强化三个彩色盒子与大平台穿插的概念,因此在室内空间尺度上预留了所对应的室外面层厚度,室外的格栅吊顶标高也考虑了室内暖通设备的净高要求。
子罗城项目从设计到交付再到开业,短短一年多的周期中历经了多次修改。出于建设周期和成本的综合考量,大屋面改为了不上人屋面,多个庭院也悉数取消,仅保留了三处天窗,咖啡馆可全部打开的折叠门也被平开门取代。建筑从设计到落成过程复杂,周期较长,每个建筑难免会留有一些遗憾,这也注定了它是一门遗憾的艺术。
整个设计过程,我们抓大放小,在解决主要矛盾、保证基本的空间品质的前提下做了一定程度的妥协退让,这也是职业建筑师面对现实条件下的一种应对策略。
今天的子罗城已建成投入使用,成为周边居民和外来游客的亲子乐活中心。在极限的用地、周期和成本控制下,项目从理性和逻辑出发,将问题逐个解决,最终的整体呈现也基本符合预期。我们相信,童年的纸飞机将在这里重新起航。
项目名称:南京雅达 · 子罗城
项目地点:江苏 南京 高淳
设计单位:line+建筑事务所、gad
主持建筑师/项目主创:孟凡浩
设计团队:李昕光、袁栋
建筑面积:4538平方米
设计时间:2020年5月—2020年10月
建设时间:2020年10月—2022年5月
业主:江苏雅达置业有限公司
施工图合作单位:南京市建筑设计研究院有限责任公司
结构:钢筋混凝土、轻钢屋面
材料:波纹板、穿孔板、仿清水混凝土涂料
摄影:吴清山、line+、陈曦(模型)
.jpg)
.jpg)
.jpg)
.jpg)
.jpg)
.jpg)
.jpg)
.jpg)
.jpg)
.jpg)
.jpg)
.jpg)
.jpg)
.jpg)
.jpg)
.jpg)
.jpg)
.jpg)
.jpg)
.jpg)
.jpg)
发表评论
最新评论
投稿
