深圳华侨城大厦 | KPF
来源:网友Lady_Mcbeth投稿 2022-08-30
.jpg)
1 项目概况
华侨城大厦是由深圳华侨城房地产有限公司投资的建设项目,作为华侨城集团有限公司在深圳市开发26年的里程碑式建筑,其定位为涵盖甲级办公、商务配套和商业三部分功能,并融合华侨城生态、艺术、文化特色的绿色建筑。项目基地位于深圳市华侨城中部,南临深圳城市东、西向主干道——深南大道,西临芳华苑住宅区,北临沃尔玛超市,东临汉唐大厦,建设用地面积为14 119 ㎡,总建筑面积为202 983 ㎡,地上总建筑面积为149 254 ㎡,建筑高度为300 m。
.jpg)
2 绿色建筑设计应用
项目地段位于华侨城正中心,是南、北向城市绿地系统和开放空间系统的重要环节。目前,项目已获得LEED金级认证及三星级绿色建筑设计标识证书。本文主要从室外环境、造型与结构、幕墙设计、室内环境及节水利用等方面,说明项目在绿色建筑设计上的应用。
2.1 室外环境
在室外环境处理上,项目总体布局强调与周边环境相融合。各单体之间留有足够的间距和自然通风口,并且与公共广场连通,这使得主导风流向顺畅,有利于夏季自然通风。针对深圳市夏长冬短的亚热带季风气候,设计团队通过对商业裙房的体量设计,结合地形高差的景观元素,制造一系列具有丰富灰空间的室外广场,并营造出极具地域气候特点的活力商业街道。项目场地交通便捷,距用地东南角的地铁1号线出口不到100 m,在进行裙房布局时,对场地的步行交通枢纽进行合理地组织和拓展,形成上下连通的步行网络,连接现有的公交站、地铁站等公共交通,提高场地的可达性。同时,项目注重地面空间的利用率,通过建筑的围合、错动,其空间属性逐渐由北部商业向南部绿色景观过渡,并在南面结合原有公园的特性,把公共交通人流、周边社区人流和景观雕塑等元素结合在一起,提高了项目的开放度和城市性。
各单体之间留有足够的间距和自然通风口
.jpg)
活力商业街道
.jpg)
商业裙房
2.2 造型与结构
楼设计尊重周围环境。设计团队基于日照分析,让周边的建筑避免阴影遮挡,确保周边住宅小区在冬日仍拥有充足的日照。塔楼的造型简洁,没有多余的建筑语言且有利于抗震,同时其体型系数较小,符合节能标准。在材料资源利用方面,设计团队通过合理选用高性能建筑材料,采用钢筋混凝土核心筒、型钢混凝土柱和周边带斜撑的钢结构框架体系,在保证安全和经济合理的前提下,对剪力墙的厚度及带斜撑的框架结构设计做出优化,为钢梁与混凝土和压型钢板组成的组合楼盖提供较轻的结构系统,如此既可以减小柱的面积与墙的厚度,又能增加建筑使用面积。由于建筑的基础受力减小,基础材料用量也能节省,这起到了有效减轻塔楼自重和最大化得房率的作用。而将结构斜撑钢和结构桁架安排在设备层,不占用塔楼使用空间的设计方案,充分体现了“形体—结构—功能—设备”的和谐统一。同时,设计采用的钻石型平面核心筒内筒、外围巨型桁架体系外框及不规则多边形斜立巨柱巧妙地契合了建筑的不规则造型,充分释放了建筑的内部空间,最大限度地提高了结构的刚度,节约了成本。
.jpg)
结构体系分析图
2.3 幕墙设计
深圳地区太阳辐射强烈,尤其水平面太阳辐射照度最大,其次是东、西向的太阳辐射照度,所以做好屋顶和东、西外墙面隔热对节能尤为重要。塔楼幕墙设计遵循结构简单、绿色节能的原则,控制各朝向窗墙比在0.7以内,采取动态的遮阳型幕墙,通过遮挡日照实行参数优化,加强建筑物的外遮阳,减少建筑能耗。设计既能满足夏季遮阳的要求,又能满足冬季传热的要求。主要幕墙的格网采用1 800 mm的单元模数,让建筑具有前所未有的宽阔视野。基本幕墙单元由隐框的玻璃单元和外置“L”形遮阳板组成,玻璃采用中空双银Low-E夹胶安全玻璃,垂直于立面的遮阳板,既不遮挡室内视野,又能达到理想的遮阳效果。幕墙遮阳板单元的出挑范围为70~500 mm,由参数化设计控制,并根据立面的太阳辐射强度,调整立面的遮阳构件尺寸,如立面太阳辐射强度较大的部位,采用尺寸较大的外遮阳构件,从而减少进入室内的太阳辐射热量,起到节能的作用。同时,结合自然通风,采用开启扇,有利于进一步加强建筑物的外遮阳,减少阳光直射的热量,从而降低空调能耗。
.jpg)
幕墙细部
2.4 室内环境
建筑内部空间布置合理,标准办公层平面周边的柱网采用适用于办公空间及幕墙单元的12 m间距,使得结构经济高效,办公布置灵活,为未来租户提供了多种布置的可能性。同时,设备布置在对结构最经济高效的中心核心筒及设备层,不仅提高了空间的使用率,而且有效地控制了设备的噪声和振动,减少相邻空间的噪声干扰。华侨城大厦把公共空间引入塔楼,形成地面大堂、空中大堂、中庭等一系列高质量空间。设计利用中庭的烟囱效应,组织自然通风,降低过渡季节的运营能耗,提高室内的舒适度。办公人士可以在此休憩、观景,交流、沟通,从城市及深圳湾远望,均可获得不同的精彩视觉体验,从而真正地实现内部景观与外部景观的对话。
一层大堂
2.5 节水利用
项目合理规划地表与屋面雨水径流,控制场地外排总量,使场地年径流总量控制率达到70%,并在场地范围内尽可能多地布置绿化空间,增强雨水渗透效果。项目设置雨水收集系统及中水回用系统:雨水收集系统包含回收屋面雨水和空调冷凝水两部分,收集裙房屋面雨水并回收利用,处理流程为“屋面雨水收集—初期弃流—沉淀—过滤—雨水收集池—消毒设备—水泵输水回用”;中水回用系统收集办公区域 32% 的优质杂排水,即收集塔楼办公区域18层优质杂排水并回收利用,收集的非传统用水则用于绿化灌溉、水景补水、车库冲洗、道路浇洒及冲厕。项目给水根据不同的使用功能,设有水表计量,如冷却塔、空调机房、雨水回收机房、中水回收机房等地均设水表,高效利用水资源。在室外绿化浇灌上,设计采用微喷灌和滴灌相互结合的方式,达到很好的节水效果。
2.6 其他绿色节能应用
项目采用多种绿色、高效能的设备来降低建筑能耗,主要有冰蓄冷系统,高效冷水机组,高效输配系统,风机、水泵变频设置,其中风机单位风量耗功率满足公共建筑节能标准要求,冷却水泵ER值比规范要求低20%,极大地减少能耗。选用高效能的低压交流电机和低损耗、低噪声的配电变压器,符合现行国家标准的节能评价值的规定。此外,在照明上采用高效光源、高效灯具、节能型镇流器,并采取相应的节能控制措施,可有效降低建筑照明能耗。
3 结语
华侨城大厦在绿色建筑设计应用上,与周边的环境有机协调,充分利用天然环境的优势,整合景观、商务、休闲等资源,并通过新技术、高性能材料的合理应用,为建筑用户创造节能、生态、自然、和谐的建筑环境,提升了建筑环境的整体舒适度。作为本土设计院,悉地国际设计顾问(深圳)有限公司(CCDI)在恰当的时机介入本项目,与KPF建筑事务所保持良好的合作关系,在社会各方的共同努力下,使项目高质量落地,并得到业主的认可。华侨城大厦不但是城市性的,更是社区性的,它作为华侨城的点睛之笔,是南山区,乃至深圳市的高品质城市视觉地标和城市生活坐标。■
.jpg)
.jpg)
总平面图
.jpg)
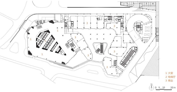
一层平面图
.jpg)
三十一层平面图
.jpg)
塔楼剖面
项目名称 | 华侨城大厦
业 主 | 深圳华侨城房地产有限公司
建设地点 | 广东省深圳市华侨城深南大道北侧
方案设计 | KPF建筑事务所
设计单位 | 悉地国际设计顾问(深圳)有限公司
用地面积 | 14 119 ㎡
建筑面积 | 151 100 ㎡
建筑高度 | 300 m
建筑专业 | 王浪,李璐瑛,罗俊松,高学友,刘人健,高芳,兰淑文,李燕琪
结构专业 | 吴国勤,谭伟,黄用军,孙素文,刘加美,黄建羽,欧阳明磊,吴孟隆
机电专业 | 朱永斌,孙福梁,杨德志,杨德位,王可湛,李亚姿,焦培荣
设计时间 | 2013年
建成时间 | 2021年
图纸版权 | 悉地国际设计顾问(深圳)有限公司
摄 影 | 曾天培
发表评论
最新评论
投稿



