苏州东山瑞相院民宿改造 | 右见建筑
其他来源:右见建筑投稿 2022-08-30
.jpg)
民宿入口
.jpg)
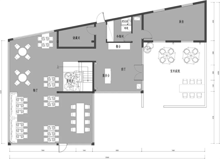
概念平面
作为一个占地十亩,有着数棵很多年的银杏古树且位于苏州东山太湖之畔的餐饮、住宿、娱乐等复合型功能的载体,我们在本案项目整体设计中采用自然包裹的手法去设计,如树木、小溪、石桥、雾森、石雕、草坪、墙蔓植物等,并用黑色碳化木做建筑外立面的包裹,用大量的植物去包裹建筑、用时间去把建筑与自然融为一体,用时间的变化去改变建筑。
生长的建筑是另外一个思想主题,会慢慢地产生变化。阳光照射也会改变建筑的形状,四季也会改变建筑的形状。或许二十年后的建筑已经不是现在的建筑,而我们也不再是我们。
.jpg)
酒店大堂鸟瞰
.jpg)
酒店大堂
.jpg)
位置变化产生的视觉变化。室外的现有场地、分散的小体量单体建筑,各自孤立,说大不大,说小不小的地块。如何让建筑之间产生联动是我们需要探索的问题。作为太湖边的建筑,我们考虑用水与桥去连接这些建筑,用时间的痕迹去做这些建筑的纽带。石板、石雕、青瓦、石柱,用水从桥下过、从房屋下过、丛树下流动。听水的声音,看晃动的光影,鸟的跳跃与鱼的游动,或许这才是生活的样子。
.jpg)
.jpg)
.jpg)
.jpg)
枕流、和声、枕溪、听涧、清欢、念秋、拾忆、忘忧、久栖、良憩、尘外--单体建筑的命名与自然有关,与情绪有关,与人的行为有关。在这样的建筑内向外看去,自然的视觉引发的情绪与思考才是建筑本身存在的价值。
内空间的设计思想以「空」字作线。「空」字应该是一个中性字,无具体指向,做空与放空其实特别难。身体接触什么,你在一个空间呆这二十四小时需要什么,你的身体形状会是什么样。装饰主义的目的性又是什么,如何去满足不同群体的需求,审美的、精神的、诱导性的,或许,我们在短时间内的空间体验会改变数年来形成的习惯,然后又返回固定模式。
.jpg)
.jpg)
.jpg)
.jpg)
.jpg)
这个项目有一个共性的选料要求:旧物、历史、肌理、质感、自然、回收。在地化的材料上的使用,是项目设计的根本。
宅中有园,园中有屋,屋中有院,院中有树。
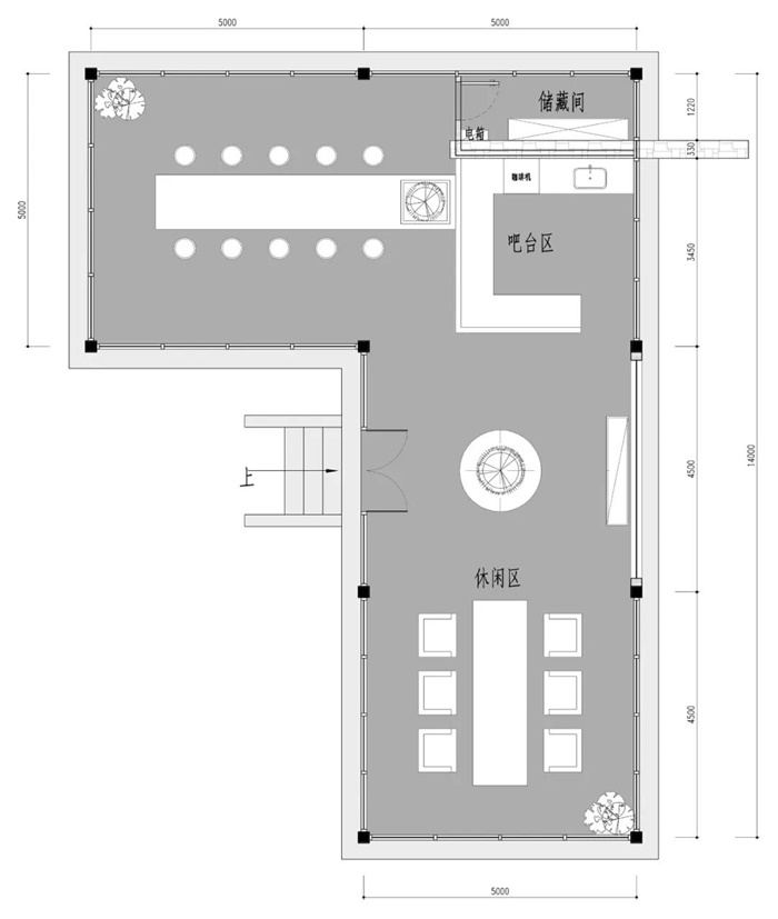
项目图纸
.jpg)
.jpg)
.jpg)
项目名称
苏州东山瑞相院民宿改造项目
项目地址
江苏省苏州市东山镇启园路106号
项目设计
苏州右见建筑装饰设计工程有限公司
设计时间
2020年10月
完成时间
2022年5月
设计团队
金倩倩、汪拓、朱书君、陈旗、纪鑫娟、王星明
建筑面积
1400㎡
摄影版权
张坤(繁玺建筑摄影)
发表评论
最新评论
投稿