日本:女川临时性集装箱住宅
来源:匿名网友投稿 2012-09-28

在2011年3月的日本大地震发生后,Shigeru Ban建筑事务所开始筹备“女川临时性集装箱住宅”设计,同时设计的还有位于宫城县女川镇的一个社区中心和艺术工作室。项目旨在为受灾居民提供重建时期的临时住所,项目初期计划是建造1800套2米*2米尺寸的住房,并为之配备了50间洗手间设施。其后,项目方了解到女川镇当地的平整土地资源匮乏的现实。

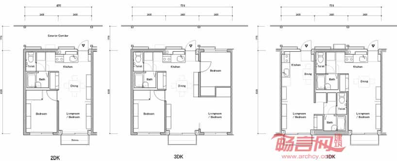
为了解决场地实际的困难,建筑设计公司选取了一个巧妙的方案——将20尺集装箱叠成三层棋盘样式。方案给予了宽敞和开阔的居住空间,并提供了政府并未考虑的储存空间。由于许多区域具有类似的景观特征,建筑可以在其他受灾地区复制,因其良好的抗震功能,可以用作长期住宅。建筑提供了三种户型,分别是用于1到2人居住的19.8平米住房,适合3到4人居住的29.7平米住房,以及适合4人以上的39.6平米住房。







发表评论
最新评论
投稿


