澳大利亚:Abbotsford仓库公寓
来源:匿名网友投稿 2012-09-12

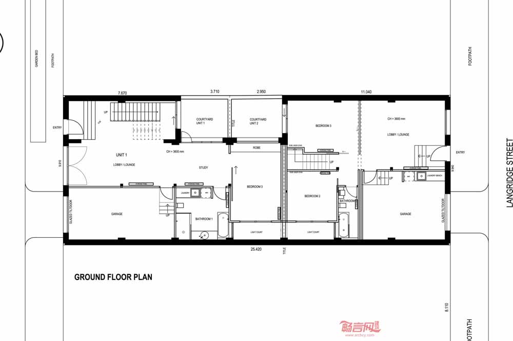
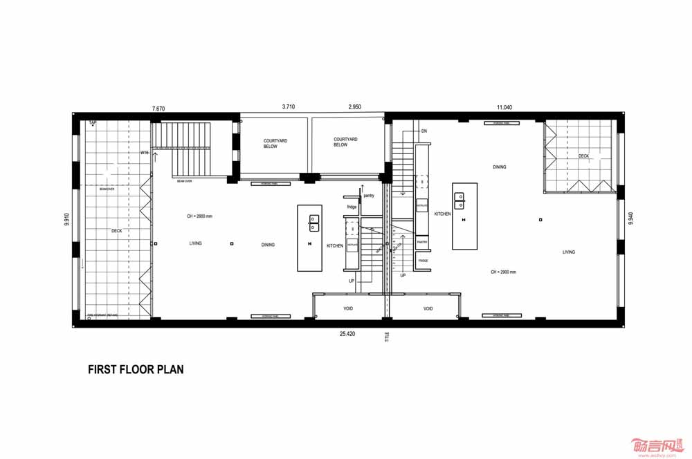
ITN建筑事务所将一所天主教大学建筑改造成两套三层仓库公寓。原有建筑屋顶被拆除,一层得到了保留,并在屋顶上营造出平屋顶和阳台。

原有工业建筑的多个细节都被保留下来,同时维持原样的还有外墙及一层区域。新的材料和设计元素与故有部分和谐并存,营造出具有古旧魅力的当代风格公寓。设计师给旧木质工作台添加了现场浇筑混凝土台面,形成了新的厨房中央操作台。

设计师将4米高的窗户替换成钢玻璃前门以及电子车库门,使入口效果与4米层高的天花相匹配。同时,移除并修复了旧木质立柱,并添加了钢柱,以增强其强度。

新的功能设施——铜煤气管、电导管都以自然状态裸露在外;整栋公寓地板和楼梯都使用了新的Blackbutt硬木材料,同时采用了不锈钢栏杆柱和玻璃扶手。
项目地点:澳大利亚墨尔本
项目年代:2012
项目面积:590 sqm



发表评论
最新评论
投稿


