日本:“微风”房屋设计
来源:匿名网友投稿 2012-10-15

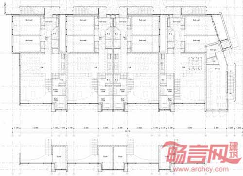
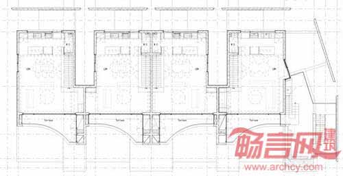
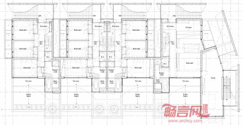
日本Artechnic事务所完成了东京Setagaya的一处名为“微风”的房屋设计,设计主旨是在城市环境中创造出类似私人海滩度假所的建筑。建筑外形如同坚实的混凝土贝壳,花瓣形曲面结构几乎支撑了整个居住单元,向南面敞开,而将北面的视野和光线阻隔。

室外缓冲屏障容纳了二层的入口,与室内部分的间隔处形成了停车空间。公寓南端包含了一个倾斜花园,使一层生活空间变得开敞,同时给室内区域带来了大量的自然光线。建筑各部分包含的天窗使卧室更为明亮,同时赋予空间私密度。建筑结合了地下辐射制冷/供暖设施及外墙保温结构,因而同时具备了商业吸引力和住宅舒适性,并满足了降低维护成本的目的。




发表评论
最新评论
投稿


