墨西哥:Amsterdam大厦
来源:匿名网友投稿 2013-03-14

Amsterdam大厦集合了六块开发场地,属于混合用途城市综合体,功能涵盖停车、零售、办公和住宅。开发理念是为现有场地添加新建筑,开发出临近Colonia Condesa居住区的新住宅项目,同时兴建通向Insurgentes大道的商业项目,这条道路是墨西哥城最为重要的道路之一。因此,通往住宅楼的道路总是穿越居住区,而通向其他商业或公共项目道路穿过了Insurgentes大道。设计师考虑到包括Qi中信和El Molino糕点店在内的临近建筑,设计出商业和停车空间,能够与现有建筑完美配合。

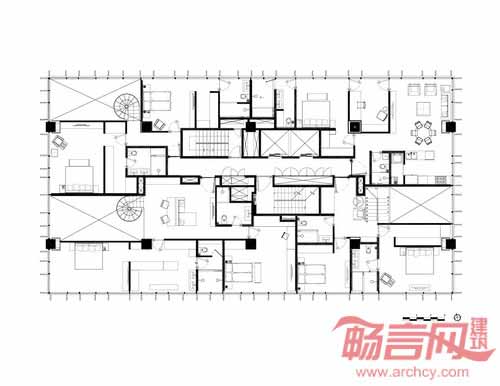
Amsterdam大厦是混合用途综合体的一部分,总体包含两栋面向Amsterdam路的建筑,两栋面向Insurgentes大道的建筑,其间有一个共用的广场。大厦共有19层,成为Insurgentes大道上最高的建筑。大厦的一二层设有停车场,三至五层是办公空间,六层及以上空间供住宅使用。公寓设计最大程度照顾了朝向和视野,公寓基本朝南向和Condesa艺术区。
建筑设计:JSa Archirectura
项目地点:墨西哥城
项目面积:12281sqm
项目年代:2012




发表评论
最新评论
投稿

