日本:脚手架形状的透明房子
来源:匿名网友投稿 2012-05-10
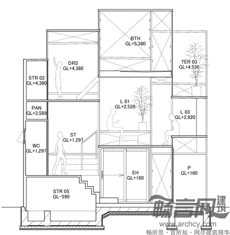
日本建筑设计单位Sou Fujimoto近期设计了一座全透明的房子,这座房子几乎没有墙壁,看上去就像是一个脚手架。
房子将选址在东京市中心的一片住宅区内,总体分为3层,而这3层又可细分为很多错层空间。
为了增加室内各个空间之间的联系,设计师在保障安全的前提下尽可能地减少了墙壁,而且这些少有的墙壁绝大多数都是玻璃做的,使得整个房子看上去非常通透。
设计师将这座房子比喻成一棵树,而各个生活空间则仿佛一根根树枝,人们可以从一根“树枝”跳到另一根“树枝”上,在这样稠密的居住空间里也能找到沟通的乐趣。
连接各个错层区域的台阶还可以当作桌子和凳子使用,也可以当作不同区域之间的隔断,整体看起来,这些台阶就像大树上飘落的一片片叶子一样。
房子的钢制骨架则与树形结构不太相似,而更像是一座脚手架。







发表评论
最新评论
投稿