盐冢隆生建筑事务所 | 斋木市混凝土综合建筑
来源:网友荒漠星空投稿 2020-01-09
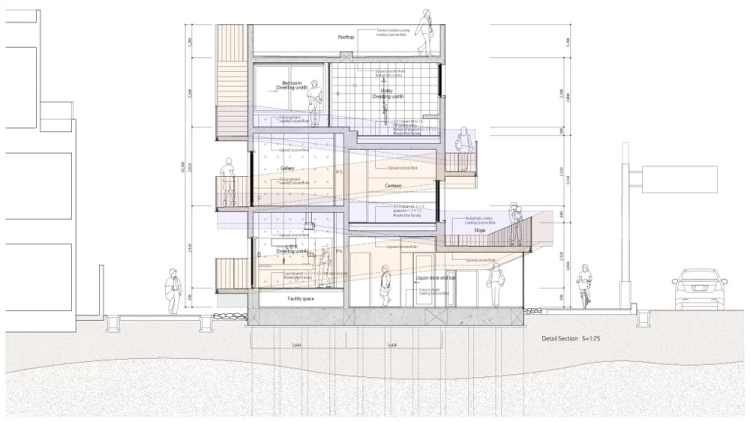
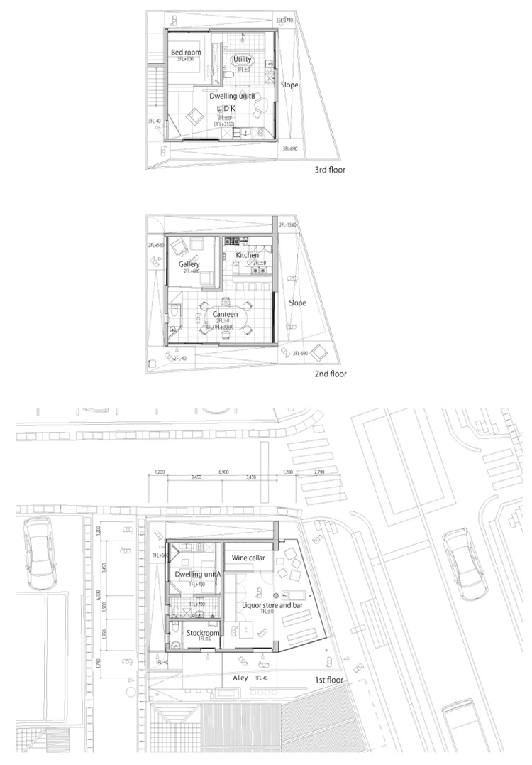
由盐冢隆生建筑事务所设计了一座三层混凝土结构建筑,位于日本大田县斋木市,包含葡萄酒店、食堂和两栋房屋。建筑结构类似于三维联排别墅,包含连接不同房间和楼层的室外坡道,室内不设其他形式的垂直楼梯。虽然建筑不同功能构成独立空间,但由于住户生活的有机联系,多层建筑可以看作是统一的整体。
设计师从斋木市神社十字路口修建了这座三层钢筋混凝土综合楼。这里曾经是一家酒类商店,为礼拜者供应清酒。为了创造向内外空间开敞的建筑,建筑内部特意没有建造楼梯,当人爬上螺旋形斜坡,可以从不同方向和高度欣赏小镇风景。
发表评论
最新评论
投稿



