澳大利亚:Blackburn住宅
来源:匿名网友投稿 2017-05-25
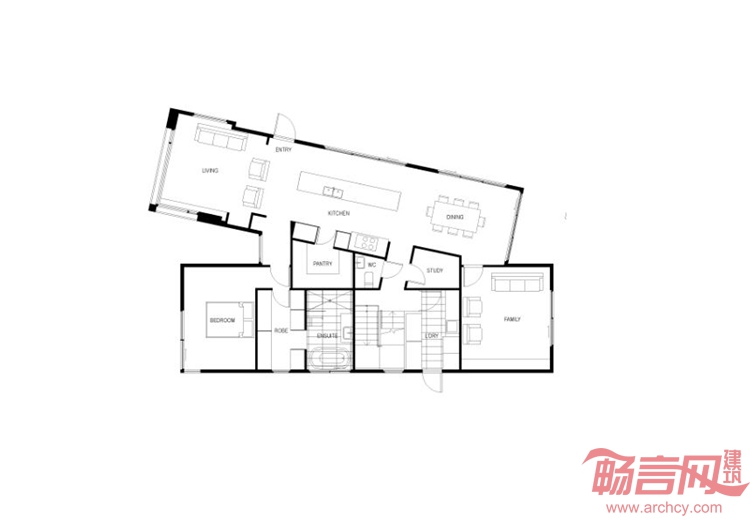
ArchiBlox设计了位于澳大利亚墨尔本的Blackburn住宅。项目面积194平米,于2015年完工。这一家庭住宅设有悬挑结构,位于一个山坡上,和普通住宅相比,更像是一座树屋。项目享有朝向Gardiners溪保护区的视野,这一模块化建筑同自然环境和谐相融,两侧均有很好的视线。
本站申明:网友阅读本站内容,视为认同本站协议,协议详情请点击查看
标签:澳大利亚建筑设计Blackburn住宅
发表评论
最新评论
投稿



