英国折叠房 | AR Design Studio
来源:网友步行者投稿 2021-04-29
Folding House是位于英国Ringwood的私人定制新建房屋,由屡获殊荣的AR Design Studio完成。受场地环境和地貌特征的启发,Folding House通过将房屋嵌入山坡一侧,以最大程度地减少对位置和周围风景的影响。
住宅设计理念始于现有的“zig zag”路径。该路径以折叠的丝带状呈现,从地势低位开始延伸至住宅建筑。
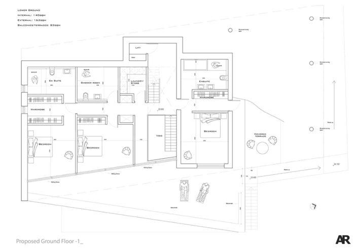
别墅分为三层,最上层突出于斜坡顶部平面。较低的两层随着景观的坡度错落到场地的下方,将用户带到较低的花园和河流。一楼的布局包含大多数必需的开放式起居室,并享有河流壮丽景色。
.jpg)
.jpg)
.jpg)
.jpg)
.jpg)
.jpg)
.jpg)
.jpg)
.jpg)
本站申明:网友阅读本站内容,视为认同本站协议,协议详情请点击查看
标签:住宅设计英国建筑设计
发表评论
最新评论
投稿



