土耳其: Halide Edip Adivar纪念堂
来源:网友安迪投稿 2012-08-24
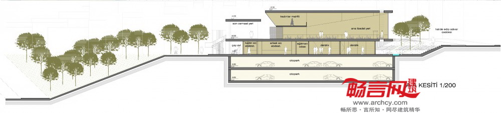
Halide Edip Adivar纪念堂及社会建筑综合体项目公布了竞赛的第一名设计方案,由Kolektif Mimarlar建筑事务所提供,主要的设计理念是建造一栋与周边环境和居民完美融合的建筑,并且在宗教建筑以外添加其他的功能要素。
项目位于Halide Edip Adivar路和Piyale Pasa大道之间,设计过程中的关键一点在于使庭院连接起其周围的功能单元。庭院和Halide Edip Adivar路设置了楼梯,从而使城市街道平滑地过渡到纪念建筑中。另外,项目场地和Piyale Pasa大道之间的区域将被规划建成城市公共空间。
建筑的机会空间建在与Halide Edip Adivar路齐平的位置,使人们能直接进入建筑的前廊,中间不存在视觉阻挡。此外,主要的祷告空间设在建筑的夹层上。服务设施及综合体其他区域设在地下3.5米的位置。
发表评论
最新评论
投稿