西班牙:AILAIC展览厅
来源:匿名网友投稿 2012-08-03
项目原址位于西班牙巴塞罗那圣家堂附近一处狭窄的过道里,原先是个铝框架工厂,其后被改造成一个传统功能的停车场。
项目目的是将这个工业化空间重新改造成新型的展览厅。
空间的最大优势是它强烈的工业化气氛,这种气氛来自超高的天花、混凝土结构、透过天窗的明亮光线,水银泻地般布满光洁的混凝土地板上。设计师希望使用最低的预算成本,使原本空间的风格更加强烈。
原有天窗透过的光线足够使空间变得个性十足,所以只要将其打扫干净,最大限度低利用自然光。
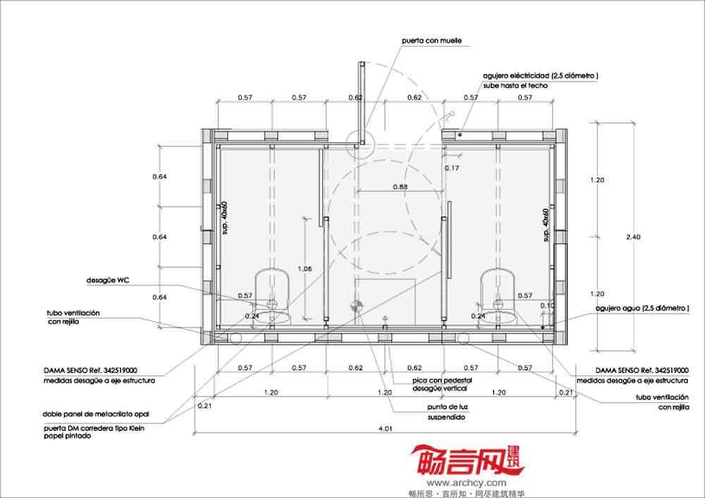
甲方只提出了基本的项目要求,空间内只有三个公共卫生间;正中央设置了三个木头箱。
木箱的外表面是粗糙、二次使用的木托盘,遵循了房间的工业特征。然而,木箱的内部却隐藏着玄机——一个温暖安全的空间,配备了古旧家具。
发表评论
最新评论
投稿