意大利尼古拉学院改造更新 | MoDusArchitects
来源:网友willis投稿 2021-03-25
MoDus 建筑事务所近日完成了意大利布里克森 (Brixen)尼古拉学院(Cusanus Academy)的改造更新和扩建项目。该学院旨在为宗教和世俗世界的交流和灵感碰撞提供一个实体空间。为了让这所学院更好地融入所处的城市肌理,建筑师将异质的研讨会空间和宿舍设施完美地结合在一起,以让周边的社区居民更好地参与其中。
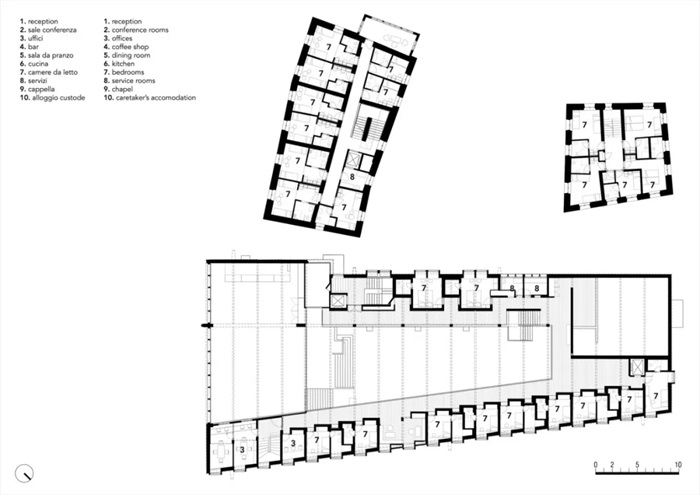
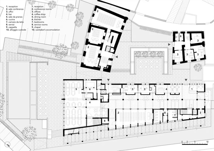
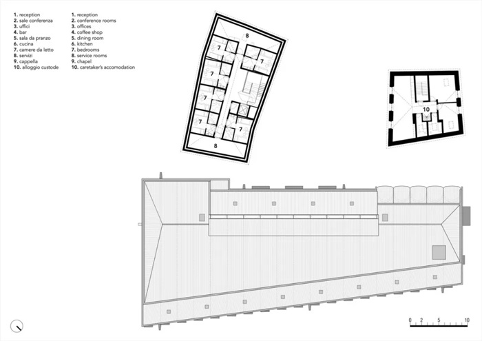
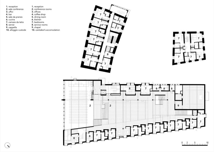
建筑师受托在保证学院建筑完整性的前提下对其进行修缮更新,尤其是原有空间在垂直和水平流线上的再设计和公共空间的开发。建筑师基于巴尔特原有的线条比例和对应关系,进行了全新的空间呈现,以实现可见与不可见之间的世纪对话。最显著的两个空间调整部分是Haupthaus主楼地面层的中轴线和地下层会议室的重新赋能。
.jpg)
.jpg)
.jpg)
.jpg)
.jpg)
.jpg)
.jpg)
.jpg)
.jpg)
.jpg)
.jpg)
.jpg)
.jpg)
.jpg)
.jpg)
.jpg)
.jpg)
.jpg)
.jpg)
发表评论
最新评论
投稿



