阿富汗:国家博物馆
来源:匿名网友投稿 2012-08-06
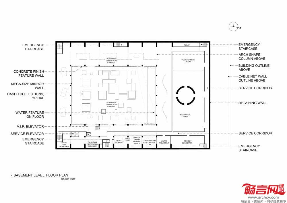
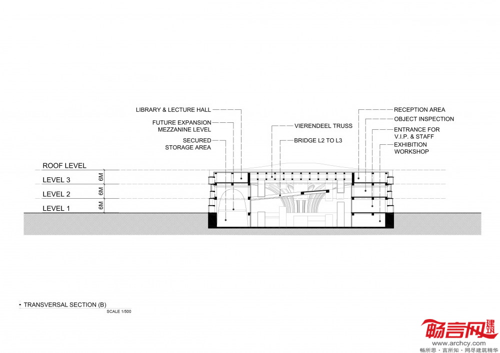
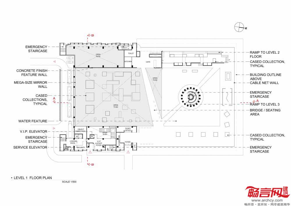
阿富汗国家博物馆的设计理念围绕阿富汗花纹装饰拱顶展开,TheeAe LTD建筑事务所利用这次设计机会,将失落的建筑遗产重新带到现实中。建筑师的关注点不仅在于空间集合,还在于空间涉及的情感范畴。
目前尚存的阿富汗文化遗产其中很大部分都受到了损毁或遭到废弃。新国家博物馆希望能拾回过去的辉煌,而随着文化遗物的恢复,在历史文化领域给予阿富汗人民希望和激励。建筑设计旨在通过强调自然环境属性——巨大的雕像、开阔的山谷、穿过花纹边框照射的灿烂阳光,表现出文物遗址的文化已经历许多个世纪。
建筑设计:TheeAe LTD
地点:阿富汗喀布尔
场地面积: 16,000 sqm
总建筑面积:18,000 sqm
高度: 18m ( B1层至三层)
年代: 2012
发表评论
最新评论
投稿