荷兰:Fontys体育学院
来源:网友Windy71投稿 2013-09-22
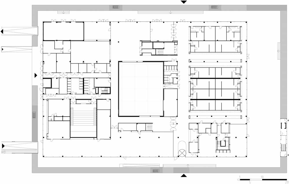
Fontys体育学院位于荷兰埃因霍温,其黑灰色外墙上的穿孔组成了运动员的图形。Mecanoo建筑事务所完成了位于Genneper公园内的建筑项目,容纳了泳池、室内体育设施、15米高的攀岩墙壁和学生教室。建筑师表示,“体育综合体的流通空间较为复杂,方便最大程度的跨学科体育和教育交流。”
同时,可以将教学区域完全封闭起来,从而使体育馆成为唯一能够进入的区域,这方便体育赛事或其他体育活动期间的管理。自行车手、体操选手和其他运动员的图形装饰了建筑的三个立面,而室内颜色鲜艳的墙面上出现了更多运动员的英姿。部分器械和设施上装饰了运动口号。
发表评论
最新评论
投稿