瑞士:Skullcandy耳机公司总部
来源:网友各自安好゛Elope投稿 2012-11-08

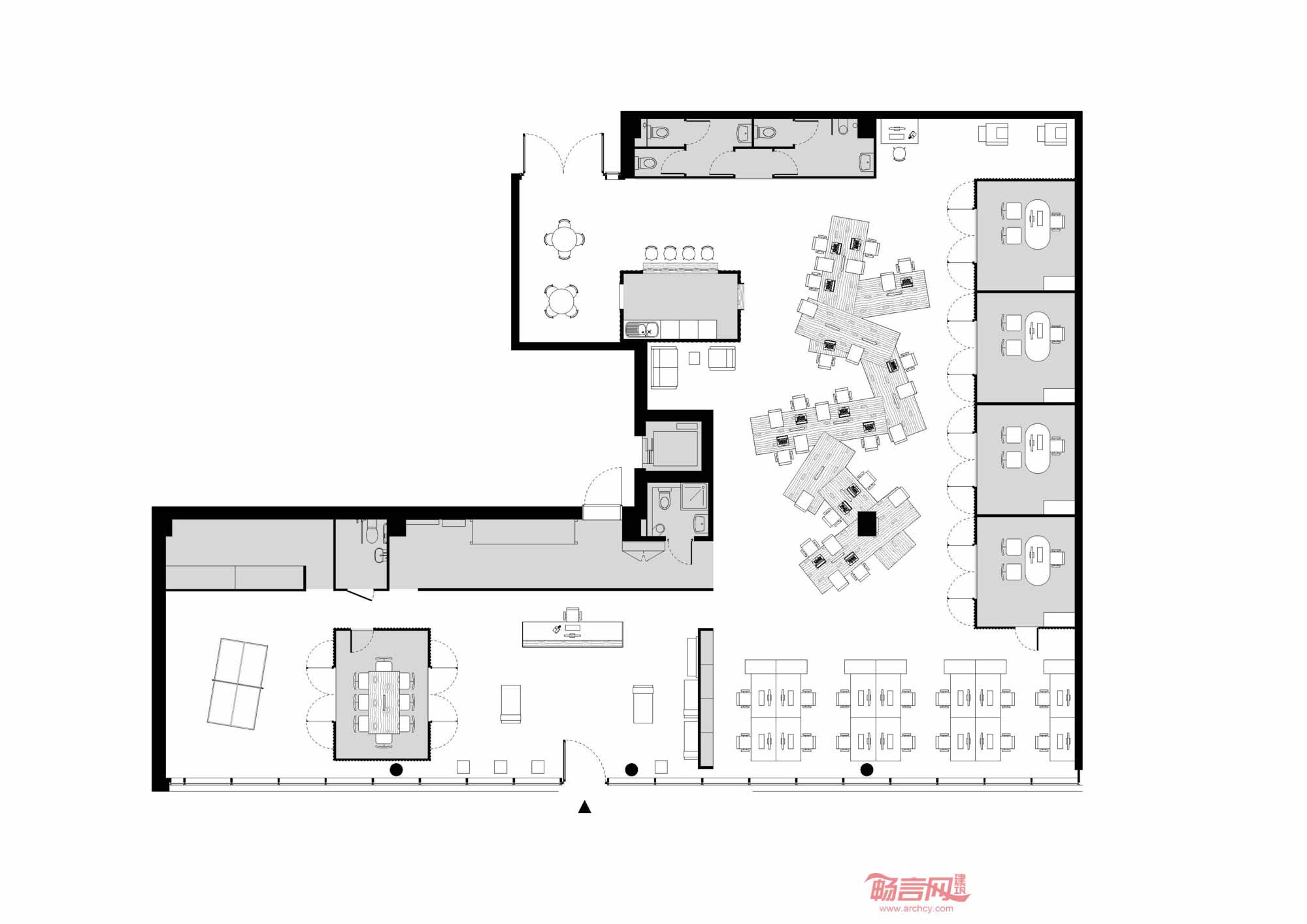
Skullcandy耳机公司总部位于位于瑞士苏黎世Escher Wyss区一栋现代办公楼的一层。公司总部总面积达440平米,具有5.5米层高,空间面对开阔街道。

办公室和展示厅的开敞空间是城市空间的延伸,设计符合Skullcandy公司的特点。空间设计类似集装箱结构,容纳了个人办公室、会议区和厨房。

项目多个构件布局非常合理,考虑到了使用适应性。会议区采用了多边形结构,起到了补充会议室、展示厅延伸区功能,此外还能将这些空间连接起来,方便活动的组织。

Skullcandy是个异常活跃的品牌,在视觉表达、滑板运动和街头艺术方面具有丰富创造力。项目设计做到了简化,便于Skullcandy发挥自身创造性。项目使用了有限的色彩和材料,包括:波纹钢、蜂窝聚碳酸酯、多层云杉板。
项目设计:Arthur de Chatelperron + Hugo Hélène
项目地点:瑞士苏黎世
项目预算:22万欧元
项目面积:440sqm
项目年代:2012


发表评论
最新评论
投稿
