荷兰:Dordrecht消防站
来源:匿名网友投稿 2012-07-26
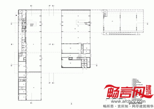
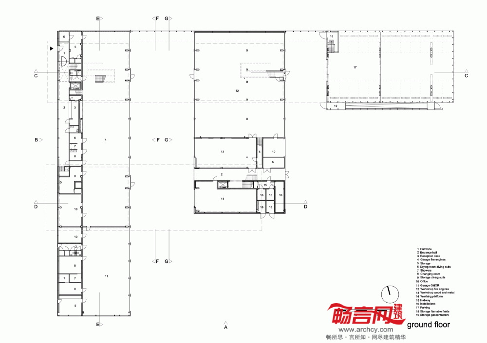
荷兰Dordrecht市最近划出一块建筑用地,用于建设第二消防站。这个“多功能站”位于一个教育地区的边缘位置,场地呈三角形,前端边界线为锯齿状。城市规划要求消防站的高度至少达到12米,充当其倚靠的校园和对面3号公路之间的噪音屏障。
项目主要组成成分有救火车车库、两间工场、24小时社会活动区和一个办公区域,总占地面积为5560平米。此外,项目为24名工作人员设置了停车场,还有一个占地400平米的空间,用于特殊救护服务和辅助功能。项目中面积最小的组成部分是一个占地190平米的地区训练中心,容纳了若干教室和实践检验室。
发表评论
最新评论
投稿